Menu
Groot Hoefblad 14 Grootegast - Hoofdafbeelding.jpg
A+

Tonen op kaart

Verkocht: Groot Hoefblad 14, Grootegast

Grootegast Groot Hoefblad 14

146 m² woonoppervlakte

491 m² perceeloppervlakte

5 kamers, waarvan 4 slaapkamers

Verkocht

Geïnteresseerd in dit object?

Vraag eenvoudig een bezichtiging aan!

Interesse in woning

Omschrijving

Groot Hoefblad 14 is een prachtig goed onderhouden, uitgebouwde twee-onder-een-kapwoning met aangebouwde serre, een vrijstaande stenen garage en een besloten tuin waar je volop privacy ervaart.

De woning is gebouwd in 1997, volledig geïsoleerd, voorzien van HR-glas en maar liefst 15 zonnepanelen. Dankzij het zuinige energielabel A+ en de goed onderhouden HR-combiketel van Intergas uit 2015 woon je hier comfortabel én energiezuinig.

Je komt binnen via de zijkant. In de hal vind je het moderne toilet, de trap naar boven en de deur naar de woonkamer. De L-vormige living is door de grote ramen heerlijk licht en wordt stijlvol gescheiden door een moderne wand met dubbele deuren. De open keuken heeft een lichte opstelling met diverse inbouwapparatuur. In de uitbouw aan de achterzijde verbindt een schuifpui de woonruimte met de aangebouwde serre, waardoor je een prachtige overgang hebt naar de achtertuin en al vroeg in het jaar het buitengevoel creëert, de bijkeuken met witgoedaansluitingen, de cv-opstelling en achterentree.

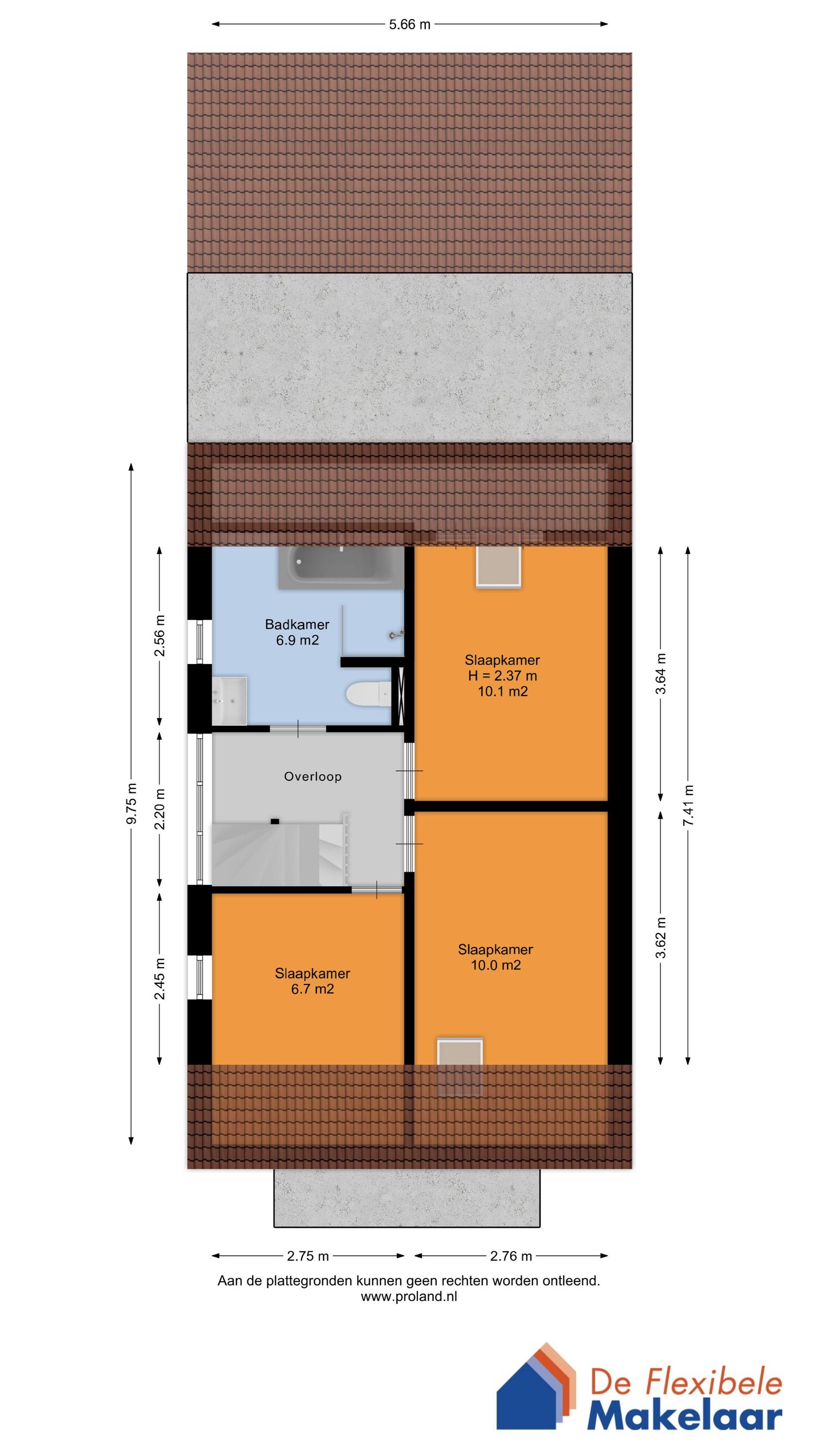
Op de eerste verdieping geeft de overloop toegang tot drie slaapkamers en een complete badkamer met ligbad, inloopdouche, toilet en vaste wastafel. Via een vaste trap kom je op de tweede verdieping, waar een extra slaapkamer is gerealiseerd. Hiermee beschik je over verrassend veel leefruimte en flexibele indelingsmogelijkheden.

Naast het huis staat de vrijstaande stenen garage. Aan de achterzijde is hier een verwarmde thuiswerkplek ingericht, die zich ook uitstekend leent voor uiteenlopende hobby’s. Die garage beschikt bovendien over een ruime zolderverdieping voor extra opslag.

De achtertuin met overkapping is geheel omsloten en biedt je hierdoor veel privacy, waardoor je optimaal van je tuin en het buitenleven kunt genieten. Aan de achterzijde staat de houten berging met volière/kippenren waardoor elke morgen een vers eitje tot de mogelijkheden behoort.. De voortuin is onderhoudsvriendelijk ingericht en de bestrate oprit biedt ruim voldoende parkeergelegenheid op eigen terrein.

Grootegast is een geliefd dorp en ligt in het midden van de gemeente Westerkwartier. Met de A7 in de buurt is het een perfecte uitvalsbasis tussen Groningen en Drachten/Leeuwarden. Grootegast is bovendien een geliefde woonplaats met een hoog voorzieningenniveau. De omgeving nodigt uit tot het maken van wandel- en fietstochten. Alle voorzieningen liggen binnen handbereik, zoals winkels, (basis)scholen, park Notaristuun en sportaccommodaties.

Benieuwd hoeveel comfort en leefruimte deze woning je biedt? Maak een afspraak en ontdek het zelf aan Groot Hoefblad 14 in Grootegast. We heten je alvast van harte welkom.

Kenmerken

Soort Eengezinswoning, Twee-onder-een-kapwoning
Vraagprijs Prijs op aanvraag
Aangeboden 5 maanden geleden
Status Verkocht
Aanvaarding In overleg

Bekijk alle kenmerken...

Interesse?

Vraag een bezichtiging aan

Bekijk de omgeving

Ontdek de ligging van deze woning

Alle kenmerken

Bouw

Bouwvorm Bestaande bouw
Bouwjaar 1997
Bouwjaar omschrijving Bouwjaar 1997
Onderhoud (binnen) Goed
Toelichting Het woonhuis is goed onderhouden.
Onderhoud (buiten) Goed
Toelichting Het woonhuis is goed onderhouden.
Dak Zadeldak
Dak materialen Pannen
Dak toelichting Een met pannen gedekt zadeldak.

Buitenruimte

Ligging Aan rustige weg, In woonwijk
Tuin Achtertuin, Voortuin (Normaal)
Tuin oppervlakte 266 m²
Achtertuin 233 m² (15.64m diep en 14.88m breed)
Ligging Gelegen op NOORD (bereikbaar via achterom)
Parkeren Openbaar parkeren, Op eigen terrein
Parkeren Voldoende parkeergelegenheid op eigen terrein.

Energie

Energielabel A+
Einddatum 2035-10-29
Isolatie Dakisolatie, Muurisolatie, Vloerisolatie, Dubbel glas, Volledig geïsoleerd
Verwarming CV-ketel
Warm water CV-ketel
C.V.-ketel HR combiketel Intergas Gas gestookte combiketel uit 2015 eigendom

Garage

Garage soort Vrijstaand (steen)
Voorzieningen Elektra
Isolatie Volledig geïsoleerd
Oppervlakte 21 m² (5.2m diep en 4.11m breed)
Capaciteit 1 auto(s)
Aantal 1

Indeling

Woonlagen 3 woonlagen
Kamers 5 kamers, waarvan 4 slaapkamers
Badkamers 1 badkamer(s) en 1 aparte toilet(ten)
Badkamervoorzieningen Ligbad, Toilet, Wastafel, Inloopdouche
Voorzieningen Mechanische ventilatie, TV-kabel, Schuifpui, Dakraam, Glasvezelkabel

Oppervlakken en inhoud

Perceeloppervlakte 491 m²
Woonoppervlakte 146 m²
Inhoud 508 m³
Oppervlakte externe bergruimte 57 m²

Schuur / berging

Schuur / berging soort Aangebouwd (hout)
Voorzieningen Voorzien van elektra
Isolatie Geen isolatie
Aantal 1

Bestemming

Huidig gebruik Woonruimte
Huidige bestemming Woonruimte
Permanente bewoning Ja

Kadaster GROOTEGAST D 4101

Oppervlakte 491 m²
Omvang Geheel perceel

Vergelijkbaar in de buurt

...