Menu
Hanenburg 24 Tytsjerk - Hoofdafbeelding.jpg
D

Tonen op kaart

Verkocht: Hanenburg 24, Tytsjerk

Tytsjerk Hanenburg 24

87 m² woonoppervlakte

279 m² perceeloppervlakte

5 kamers, waarvan 4 slaapkamers

Verkocht

Geïnteresseerd in dit object?

Vraag eenvoudig een bezichtiging aan!

Interesse in woning

Omschrijving

Deze 2-onder-1-kapwoning in het groene Tytsjerk (Tietjerk) biedt volop mogelijkheden voor de doe-het-zelver onder ons. Ondanks dat de woning wat liefde en zorg nodig heeft, zijn er al meerdere energiebesparende maatregelen getroffen om je een goede start te geven. De Hanenburg 24 in Tytsjerk staat te koop!

Het huis beschikt over een ruime en lichte doorzonwoonkamer met een sfeervolle open haard en 4 slaapkamers. Daarnaast biedt de vrijstaande stenen garage extra ruimte en mogelijkheden.
De ligging? Super beschut met een speeltuin om de hoek en aan een groene strook. Dit alles aan de rand van recreatiepark De Groene Ster en het Bos van Ypey.

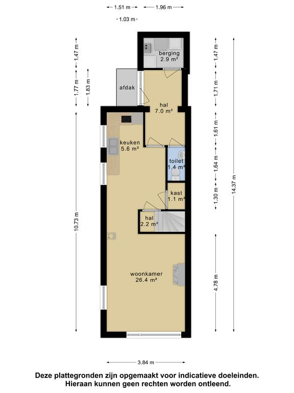
De indeling van deze woning is als volgt:
Begane grond:
Entree onder overkapping, ruime hal, toegang tot de L-vormige keuken. Een lichte doorzonwoonkamer van 26 m² met sfeervolle houthaard en bergingsruimte. Tevens bereik je vanuit de hal de bergruimte met was- en stookruimte en het toilet met fontein.

Provisieruimte:
Te bereiken via een deur in de kelder.

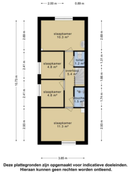
1e etage:
Overloop, 4 slaapkamers (waarvan 2 voor twee personen), een badkamer met douche en wastafel en een aparte toiletruimte.

2e etage:
Bergzolder.

Buiten:
Aan de buitenkant vind je een prachtig aangelegde tuin die door de ligging de hele dag zon- en schaduwplekjes biedt. De vrijstaande stenen garage, uitgerust met elektra, en extra parkeerruimte op eigen terrein zijn ideaal voor je auto en opslagbehoeften.

Tytsjerk, een heerlijk groen plekje in Friesland, brengt je dichtbij de natuur terwijl je ook geniet van stedelijke gemakken. Op nog geen 5 kilometer afstand liggen Gytsjerk en Hurdegaryp voor je dagelijkse boodschappen. Een korte rit van 10 minuten brengt je naar het bruisende hart van Leeuwarden waar je kunt winkelen, dineren en cultuur kunt snuiven. Ook natuurliefhebbers kunnen hun hart ophalen in 'De Grote Wielen', park Vijversburg of op de stranden van 'De Groene Ster'.

Tytsjerk (Tietjerk)
Tytsjerk zelf heeft ook keurige faciliteiten zoals basisschool 'OBS De Romte', diverse sportverenigingen en een kinderopvang. Ervaar de rust van het landelijke leven met stedelijke voorzieningen binnen handbereik in dit prachtige huis, gelegen in een uniek stukje Nederland. Begin je nieuwe leven in Tytsjerk - waar het goede leven thuis is!

Dit prachtige huis dat te koop staat in Tytsjerk aan de Hanenburg 24 een keer grondig bekijken? Maak een afspraak met een flexibele makelaar, zij helpen je graag verder!

Kenmerken

Soort Eengezinswoning, Twee-onder-een-kapwoning
Vraagprijs Prijs op aanvraag
Aangeboden 2 jaar geleden
Status Verkocht
Aanvaarding In overleg

Bekijk alle kenmerken...

Interesse?

Vraag een bezichtiging aan

Bekijk de omgeving

Ontdek de ligging van deze woning

Alle kenmerken

Buitenruimte

Ligging Aan rustige weg, In woonwijk, Vrij uitzicht
Tuin Achtertuin, Voortuin, Zijtuin (FRAAI_AANGELEGD)
Tuin oppervlakte 210 m²
Voortuin 74 m² (9m diep en 8.22m breed)
Ligging Gelegen op ZUID
Parkeren Openbaar parkeren, Op eigen terrein
Parkeren Ruim voldoende parkeergelegenheid, zowel in de parkeerhavens als op de grote oprit.

Bouw

Bouwvorm Bestaande bouw
Bouwjaar 1958
Onderhoud (binnen) Matig tot redelijk
Onderhoud (buiten) Matig tot redelijk
Dak Zadeldak
Dak materialen Bitumineuze dakbedekking

Energie

Energielabel D
Einddatum 2033-07-03
Isolatie Dakisolatie, Muurisolatie, Vloerisolatie, Dubbel glas, Gedeeltelijk dubbel glas, HR-glas
Verwarming CV-ketel
Warm water CV-ketel
C.V.-ketel Atag Gas gestookte combiketel uit 2019 eigendom

Oppervlakken en inhoud

Perceeloppervlakte 279 m²
Woonoppervlakte 87 m²
Overige ruimten 3 m²
Inhoud 334 m³
Oppervlakte externe bergruimte 19 m²
Gebouwgebonden buitenruimte 2 m²

Garage

Garage soort Vrijstaand (steen), Parkeerplaats
Voorzieningen Elektra
Isolatie Geen isolatie
Oppervlakte 19 m² (7.52m diep en 2.5m breed)
Capaciteit 1 auto(s)
Aantal 1

Indeling

Woonlagen 4 woonlagen
Kamers 5 kamers, waarvan 4 slaapkamers
Badkamers 1 badkamer(s) en 2 aparte toilet(ten)
Badkamervoorzieningen Douche, Wastafel
Voorzieningen TV-kabel

Bestemming

Huidig gebruik Woonruimte
Huidige bestemming Woonruimte
Permanente bewoning Ja

Schuur / berging

Schuur / berging soort Inpandig
Voorzieningen Voorzien van elektra, Voorzien van water
Aantal 1

Kadaster HARDEGARIJP A 3813

Oppervlakte 279 m²
Omvang Geheel perceel

Vergelijkbaar in de buurt

...