Menu
Hoofdstraat 18 Niezijl - Hoofdafbeelding.jpg
D

Tonen op kaart

Verkocht: Hoofdstraat 18, Niezijl

Niezijl Hoofdstraat 18

70 m² woonoppervlakte

295 m² perceeloppervlakte

3 kamers, waarvan 2 slaapkamers

Verkocht

Geïnteresseerd in dit object?

Vraag eenvoudig een bezichtiging aan!

Interesse in woning

Omschrijving

Wat een uitzicht, en dat in het centrum van Niezijl? Welkom bij Hoofdstraat 18, een bijzondere vrijstaande woning vol met karakteristieke details. Deze woning, gehuisvest in het hart van dit prachtig gelegen, toch vrije dorp, combineert moeiteloos historische charme met modern comfort.

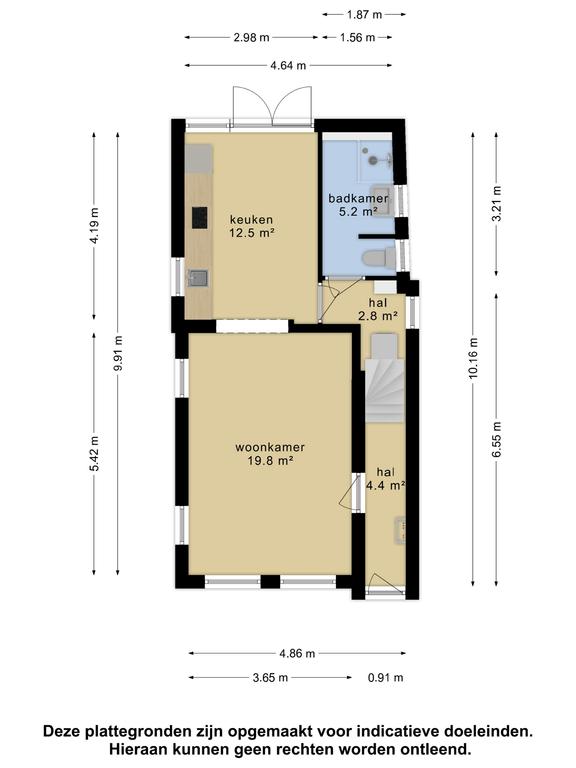
Bij binnenkomst worden bezoekers begroet door een uitnodigende entree die leidt naar een gezellige woonkamer met vele details als een balkenplafond van ca. 20m², waar een uitgestrekt uitzicht over de weilanden uw blik zal vangen. De open keuken van ca. 13m², uitgerust met een moderne keukenopstelling, is de perfecte ruimte voor het bereiden van heerlijke maaltijden. Bovendien bieden de openslaande deuren toegang tot de prachtige zuidgerichte achtertuin, ideaal voor zomerse BBQ's of om simpelweg te ontspannen en te genieten van het rustige leven in Niezijl.

De woning is volledig gerenoveerd en geïsoleerd, met bijzondere aandacht voor comfort. De vernieuwde badkamer is uitgerust met een inloopdouche, wastafel en toilet.

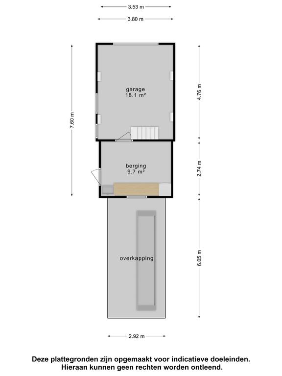
De eerste verdieping biedt twee ruime slaapkamers die u rust en privacy bieden. Naast het hoofdgebouw vindt u een vrijstaande garage van 18m² met een handige bergzolder, ideaal voor het opbergen van al uw bezittingen. Achter de garage bevindt zich een overdekt terras, ideaal om het hele jaar door van te genieten en een berging van ca. 10m².

De woning ligt aan een rustige weg, midden in de woonwijk met een vrij uitzicht, wat bijdraagt aan het landelijke gevoel dat Niezijl uitstraalt. Parkeergelegenheid is nooit een probleem met voldoende openbare parkeergelegenheid en een eigen oprit.

Bijzonderheden zijn onder meer de vloerverwarming in de badkamer en keuken en de vrijwel de gehele woning die is voorzien van HR++ glas. Ook is er een waterontharder aanwezig voor extra comfort.

Indeling:
Begane grond:
Hal/entree met meterkast; woonkamer; keuken met moderne keukenopstelling en openslaande dubbele tuindeuren; badkamer met inloopdouche, toilet en wastafel.

1e etage:
Overloop; 2 slaapkamers met extra bergruimte achter de knieschotten.

Bergingen/garage:
Garage met elektra en bergzolder; berging met extra werkruimteopstelling en wateraansluiting + elektra en een royale overkapping.

Niezijl:
Niezijl, een sfeervol dorp gelegen tussen Zuidhorn en Grijpskerk, is perfect gepositioneerd op ongeveer 15 km afstand van de stad Groningen. Dankzij de gunstige ligging aan de N355 is het dorp uitstekend bereikbaar, zowel met de auto als met het openbaar vervoer.

In Niezijl zelf ervaart u de gezelligheid van een hechte dorpsgemeenschap met faciliteiten zoals een dorpshuis, kinderopvang en zelfs een museum. Voor de dagelijkse behoeften en meer uitgebreide voorzieningen hoeft u slechts een kort ritje te maken naar de naburige dorpen Zuidhorn en Grijpskerk. Hier vindt u supermarkten, winkels, basisscholen en middelbare scholen, sportverenigingen, en een trein- en busstation met verbindingen naar Groningen en Leeuwarden, die twee keer per uur vertrekken.

Bovendien biedt Niezijl een extra bonus voor watersportliefhebbers. Met water voor de deur dat direct verbonden is met het Van Starckenborghkanaal en het Lauwersmeer, is Niezijl een uitnodigend thuis voor diegenen die genieten van de nautische levensstijl. Kortom, Niezijl biedt een aantrekkelijke mix van landelijke charme, moderne gemakken en uitstekende bereikbaarheid.

Als u op zoek bent naar een karakteristieke woning die modern comfort combineert met landelijke charme, maar toch nabij alle voorzieningen dan is deze woning aan de Hoofdstraat in Niezijl de perfecte keuze. Onze flexibele makelaars kunnen dan ook niet wachten om u te ontmoeten bij de Hoofdstraat 18 in Niezijl!

Kenmerken

Soort Eengezinswoning, Vrijstaande woning
Vraagprijs Prijs op aanvraag
Aangeboden 2 jaar geleden
Status Verkocht
Aanvaarding In overleg

Bekijk alle kenmerken...

Interesse?

Vraag een bezichtiging aan

Bekijk de omgeving

Ontdek de ligging van deze woning

Alle kenmerken

Bouw

Bouwvorm Bestaande bouw
Bouwperiode VANAF_1945_TM_1959
Onderhoud (binnen) Goed
Toelichting Het woonhuis is goed onderhouden.
Onderhoud (buiten) Goed
Toelichting Het woonhuis is goed onderhouden
Dak Zadeldak
Dak materialen Pannen
Dak toelichting Het zadeldak is gedekt met pannen.

Buitenruimte

Ligging Aan rustige weg, In woonwijk, Vrij uitzicht, Open ligging, Landelijk gelegen
Tuin Achtertuin (FRAAI_AANGELEGD)
Tuin oppervlakte 108 m²
Achtertuin 108 m² (10.72m diep en 10.12m breed)
Ligging Gelegen op ZUID (bereikbaar via achterom)
Parkeren Openbaar parkeren, Op eigen terrein
Parkeren Er parkeergelegenheid op eigen terrein.

Energie

Energielabel D
Einddatum 2033-07-14
Isolatie Dakisolatie, Muurisolatie, Vloerisolatie, Dubbel glas, Volledig geïsoleerd, HR-glas
Verwarming CV-ketel, Vloerverwarming (gedeeltelijk)
Warm water CV-ketel
C.V.-ketel CV-ketel Remeha Gas gestookte combiketel uit 2013 eigendom

Garage

Garage soort Vrijstaand (steen)
Voorzieningen Elektra
Isolatie Geen isolatie
Oppervlakte 18 m² (4.76m diep en 3.79m breed)
Capaciteit 1 auto(s)
Aantal 1

Indeling

Woonlagen 2 woonlagen
Kamers 3 kamers, waarvan 2 slaapkamers
Badkamers 1 badkamer(s)
Badkamervoorzieningen Toilet, Douche, Wastafel, Wastafelmeubel
Voorzieningen TV-kabel, Dakraam

Oppervlakken en inhoud

Perceeloppervlakte 295 m²
Woonoppervlakte 70 m²
Inhoud 270 m³
Oppervlakte externe bergruimte 39 m²

Bestemming

Huidig gebruik Woonruimte
Huidige bestemming Woonruimte
Permanente bewoning Ja

Schuur / berging

Schuur / berging soort Vrijstaand (steen)
Voorzieningen Voorzien van elektra
Aantal 1

Kadaster GRIJPSKERK C 1619

Oppervlakte 141 m²
Omvang Geheel perceel

Vergelijkbaar in de buurt

...