Menu
Hoofdstraat 72 Niezijl - Hoofdafbeelding.jpg
C

Tonen op kaart

Verkocht: Hoofdstraat 72, Niezijl

Niezijl Hoofdstraat 72

59 m² woonoppervlakte

106 m² perceeloppervlakte

3 kamers, waarvan 2 slaapkamers

Verkocht

Geïnteresseerd in dit object?

Vraag eenvoudig een bezichtiging aan!

Interesse in woning

Omschrijving

Aan de Hoofdstraat in het centrum van Niezijl staat deze goed onderhouden, uitgebouwde en vernieuwde hoekwoning met vrijstaande berging en achtertuin op het zuiden op een perceel van 106 m2 eigen grond.

Het woonhuis gebouwd in 1945, is in de loop der jaren gemoderniseerd tot de goede woning die het nu is. Zo zijn er in 2017 nieuwe kozijnen geplaatst, is het in 2019 aan de achterzijde voorzien van een dakkapel en is de badkamer vernieuwd en dit jaar is de gehele keuken vernieuwd. Het geheel wordt verwarmd door een HR combi ketel van Remeha uit 2012. Het schilderwerk is keurig bijgehouden.

De indeling van de woning is als volgt:
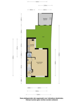
Begane grond: Entree, hal met meterkast en trapopgang; ruime lichte doorzonwoonkamer van ca. 25 m²; open keuken met een nieuwe moderne keukenopstelling voorzien van inbouwapparatuur en een achterentree; toiletruimte met wandcloset en fontein.

Eerste verdieping: Overloop met aansluitend 2 slaapkamers en de nieuwe badkamer met een ruime inloopdouche, wandcloset en wastafel.

De tweede etage is een vliering, te bereiken via een vlizotrap.

De zonnige tuin is onderhoudsvrij ingericht, gelegen op het zuiden en biedt voldoende privacy door de indeling. In de achtertuin staat een ruime, vrijstaande stenen berging met electra-aansluiting.

Niezijl is een gezellig en centraal gelegen dorp tussen Zuidhorn en Grijpskerk op ca. 15 km van de stad Groningen. Het is gelegen aan de N355 waardoor het goed bereikbaar is met de b.v. de auto of het openbaar vervoer. In het dorp zelf zijn voorzieningen zoals het dorpshuis, een kinderopvang en een museum. In de nabij gelegen dorpen Zuidhorn en Grijpskerk zijn o.a. een divers winkelaanbod, scholen en een treinstation aanwezig.

Zoekt u een nette, comfortabele woning gelegen op een korte afstand van diverse voorzieningen? Dan is dit geheel aan Hoofdstraat 72 te Niezijl zeker de moeite waard om te bekijken!

Kenmerken

Soort Eengezinswoning, Hoekwoning
Vraagprijs Prijs op aanvraag
Aangeboden 4 jaar geleden
Status Verkocht
Aanvaarding In overleg

Bekijk alle kenmerken...

Interesse?

Vraag een bezichtiging aan

Bekijk de omgeving

Ontdek de ligging van deze woning

Alle kenmerken

Bouw

Bouwvorm Bestaande bouw
Bouwjaar 1945
Bouwjaar omschrijving Keurig vernieuwd, uitgebouwd en onderhouden.
Onderhoud (binnen) Goed
Toelichting Het geheel is van binnen goed onderhouden
Onderhoud (buiten) Goed
Toelichting Het geheel is van buiten goed onderhouden
Dak Samengesteld dak
Dak materialen Pannen, Bitumineuze dakbedekking
Dak toelichting Dit samengestelde dak bestaat uit pannen en bitumineuze dakbedekking

Buitenruimte

Ligging Aan rustige weg, In centrum
Tuin Achtertuin (VERZORGD)
Tuin oppervlakte 61 m²
Achtertuin 25 m² (5m diep en 5m breed)
Ligging Gelegen op ZUID (bereikbaar via achterom)
Parkeren Openbaar parkeren
Parkeren Er is voldoende parkeergelegenheid aan de straat.

Energie

Energielabel C
Einddatum 2030-10-01
Isolatie Dakisolatie, Muurisolatie, Vloerisolatie
Verwarming CV-ketel
Warm water CV-ketel
C.V.-ketel Rehema Gas gestookte combiketel uit 2012 eigendom

Indeling

Woonlagen 3 woonlagen
Kamers 3 kamers, waarvan 2 slaapkamers
Badkamers 1 badkamer(s) en 1 aparte toilet(ten)
Badkamervoorzieningen Toilet, Douche, Wastafel, Inloopdouche
Voorzieningen TV-kabel

Oppervlakken en inhoud

Perceeloppervlakte 106 m²
Woonoppervlakte 59 m²
Inhoud 223 m³
Oppervlakte externe bergruimte 10 m²

Schuur / berging

Schuur / berging soort Vrijstaand (steen)
Voorzieningen Voorzien van elektra
Isolatie Geen isolatie
Aantal 1

Bestemming

Huidig gebruik Woonruimte
Huidige bestemming Woonruimte
Permanente bewoning Ja

Kadaster GRIJPSKERK C 1835

Oppervlakte 106 m²
Omvang Geheel perceel

Garage

Garage soort Geen garage

Vergelijkbaar in de buurt

...