Menu
It Mienskar 14 Surhuizum - Hoofdafbeelding.jpg
A

Tonen op kaart

Brochure

Verkocht: It Mienskar 14, Surhuizum

Surhuizum It Mienskar 14

116 m² woonoppervlakte

507 m² perceeloppervlakte

5 kamers, waarvan 3 slaapkamers

Verkocht
Referentie door verkoper: "Contact met makelaar was goed. Tijdens zijn vakantie werd dit super goed opgepakt door collega's. We werden steeds goed geïnformeerd van wat er komen ging."
Geschreven op 03-07-2024

Deskundigheid9

Prijs/kwaliteit9

Marktkennis9

Service9

Meer reviews bekijken op Funda

Geïnteresseerd in dit object?

Vraag eenvoudig een bezichtiging aan!

Interesse in woning

Omschrijving

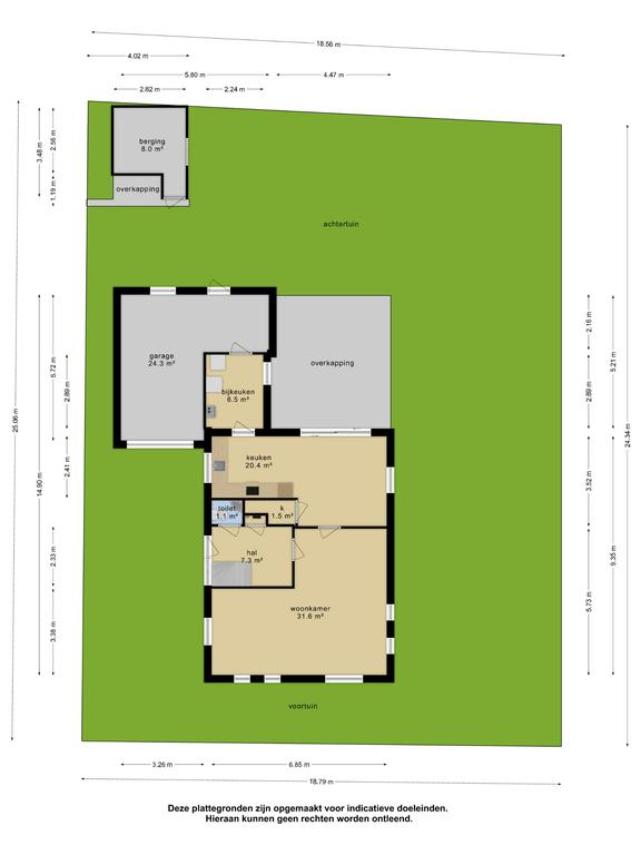
Op een riant perceel van 507m² bevindt zich deze keurig onderhouden vrijstaande woning aan It Mienskar 14 in Surhuizum. De omliggende tuin, met overkappingen, vijverpartij, terrassen en gazons, biedt je veel privacy. Ook de buurt is rustig, autoluw en groen, waardoor je kunt genieten van een vrij en ontspannen leefomgeving.

Het huis is niet alleen prachtig gelegen, maar ook energiezuinig. Dankzij optimale isolatie, isolerende beglazing HR(++) en zonnepanelen heeft de woning een energielabel A.

De aangebouwde, ruime L-vormige garage biedt extra ruimte en de stenen muren en geluidsarme betonvloeren op de begane grond en eerste etage zorgen voor extra wooncomfort (en stilte met spelende kinderen op de 1e etage of begane grond). De aangebouwde overkapping aan de keuken en de royale bijkeuken dragen bij aan het woonplezier. De woning is door de grote aanbouwen eenvoudig om te bouwen tot een levensloopbestendige woning.

Begane grond:
Op de begane grond vind je een ruime hal/entree met uitgebreide meterkast en toiletruimte met wandcloset en fontein. De L-vormige woonkamer is lichtovergoten, ruim en voorzien van een houtkachel, terwijl de dichte woonkeuken (waarvan de muur eenvoudig te verwijderen is) een royale provisiekast en schuifdeuren naar de aangebouwde overkapping heeft. De bijkeuken beschikt over witgoedaansluitingen en een cv-opstelling, en biedt toegang tot de royale garage met bergruimte.

1e etage:
Op de eerste etage zijn er drie ruime slaapkamers, waarvan de ouderslaapkamer eenvoudig op te splitsen is in twee kleinere kamers. Deze slaapkamer heeft ook een grote schuifkastenwand. Er is mogelijkheid om een vergrootte dakkapel te plaatsen, om de slaapkamers nog ruimer te maken. De badkamer is vernieuwd en voorzien van een inloopdouche, wandcloset en wastafel met meubel.

2e etage:
Via een vlizotrap bereik je de royale zolderberging op de tweede etage.

Buiten:
Buiten vind je prachtige overkappingen en een zeer verzorgde tuin met zitplekken en terrassen, waar je volop van je privacy kunt genieten. Ook is er een tuinberging aanwezig.

Surhuizum is een levendig dorp met circa 1.275 inwoners, een basisschool en diverse sportverenigingen. Voor uitgebreide voorzieningen kun je terecht in het nabijgelegen Surhuisterveen, met een gevarieerd aanbod aan winkels, horeca en een gezellige winkelstraat.

Ben je nieuwsgierig geworden naar deze vrij gelegen, vrijstaande woning aan It Mienskar 14 in Surhuizum? Maak dan snel een afspraak voor een bezichtiging met onze flexibele makelaars!

Kenmerken

Soort Eengezinswoning, Vrijstaande woning
Vraagprijs Prijs op aanvraag
Aangeboden 1 jaar geleden
Status Verkocht
Aanvaarding In overleg

Bekijk alle kenmerken...

Interesse?

Vraag een bezichtiging aan

Bekijk de omgeving

Ontdek de ligging van deze woning

Alle kenmerken

Bouw

Bouwvorm Bestaande bouw
Bouwjaar 1996
Onderhoud (binnen) Goed tot uitstekend
Toelichting Keurig onderhouden en (deels) vernieuwd.
Onderhoud (buiten) Goed tot uitstekend
Toelichting Keurig onderhouden en (deels) vernieuwd.
Dak Dwarskap
Dak materialen Pannen
Dak toelichting Met pannen gedekt

Energie

Energielabel A
Einddatum 2034-05-03
Isolatie Dakisolatie, Muurisolatie, Vloerisolatie, Dubbel glas, HR-glas
Verwarming CV-ketel, Mogelijkheid voor open haard, Houtkachel
Warm water CV-ketel
C.V.-ketel Remeha Gas gestookte combiketel uit 2013 eigendom

Oppervlakken en inhoud

Perceeloppervlakte 507 m²
Woonoppervlakte 116 m²
Overige ruimten 31 m²
Inhoud 546 m³
Oppervlakte externe bergruimte 8 m²
Gebouwgebonden buitenruimte 23 m²

Buitenruimte

Ligging Aan rustige weg, In woonwijk
Tuin Tuin rondom (FRAAI_AANGELEGD)
Tuin oppervlakte 400 m²
Ligging Gelegen op (bereikbaar via achterom)
Parkeren Openbaar parkeren, Op eigen terrein
Parkeren Ruim voldoende parkeergelegenheid, ook op eigen oprit.

Indeling

Woonlagen 3 woonlagen
Kamers 5 kamers, waarvan 3 slaapkamers
Badkamers 1 badkamer(s) en 1 aparte toilet(ten)
Badkamervoorzieningen Douche, Wastafel, Wastafelmeubel, Inloopdouche
Voorzieningen TV-kabel, Dakraam, Zonnepanelen, Natuurlijke ventilatie

Garage

Garage soort Aangebouwd (steen)
Voorzieningen Elektra, Water, Elektrische deur
Oppervlakte 24 m² (5.72m diep en 5.8m breed)
Capaciteit 1 auto(s)
Aantal 1

Bestemming

Huidig gebruik Woonruimte
Huidige bestemming Woonruimte
Permanente bewoning Ja

Schuur / berging

Schuur / berging soort Inpandig
Voorzieningen Voorzien van elektra
Aantal 3

Kadaster SURHUIZUM A 3115

Oppervlakte 507 m²
Omvang Geheel perceel

Vergelijkbaar in de buurt

...