Menu
It Oerset 1 Augustinusga - Hoofdafbeelding.jpg
A

Tonen op kaart

Brochure

Augustinusga

It Oerset 1

157 m² woonoppervlakte

582 m² perceeloppervlakte

5 kamers, waarvan 3 slaapkamers

Royale gezinswoning met prachtig uitzicht op de jachthaven!

€ 550.000

k.k.

Beschikbaar

Geïnteresseerd in dit object?

Vraag eenvoudig een bezichtiging aan!

Interesse in woning

Omschrijving

Ruime gezinswoning met prachtig uitzicht op de jachthaven van Augustinusga! Op een prachtige hoeklocatie in Augustinusga staat deze royale en uitstekend onderhouden vrijstaande woning met aangebouwde garage, carport en zonnige tuin op het zuiden. Met een woonoppervlakte van ca. 157 m², een perceel van 582 m² en diverse extra’s is dit een heerlijke plek om te wonen.

De woning is in 1998 gebouwd en in 2012 uitgebreid met een sfeervolle eetkamer met openslaande deuren naar de tuin. Dankzij energielabel A en diverse duurzame voorzieningen woon je hier niet alleen comfortabel, maar ook toekomstbestendig. Zo is de woning volledig geïsoleerd, voorzien van HR++ glas, een WTW-systeem (2024), airco-unit, hetelucht- en vloerverwarming, de verwarmingsketel is van 2024, 19 zonnepanelen (2021) en een waterontharder. Het buitenschilderwerk is nog in 2023 uitgevoerd.

Indeling:
Begane grond; zijentree, ruime hal met plavuizenvloer en toilet, lichte woonkamer (ca. 42 m²) met erker, trapkast en fraai uitzicht op de jachthaven, keukenruimte met complete inbouwkeuken (ca. 2012) met natuurstenen blad en diverse inbouwapparatuur en een spoeleiland, tuingerichte eetkamer (ca. 23 m²) met openslaande deuren naar het zonneterras, ruime bijkeuken met witgoedaansluiting, aangebouwde garage (ca. 27 m²) met elektrische garagedeur en aparte loopdeur

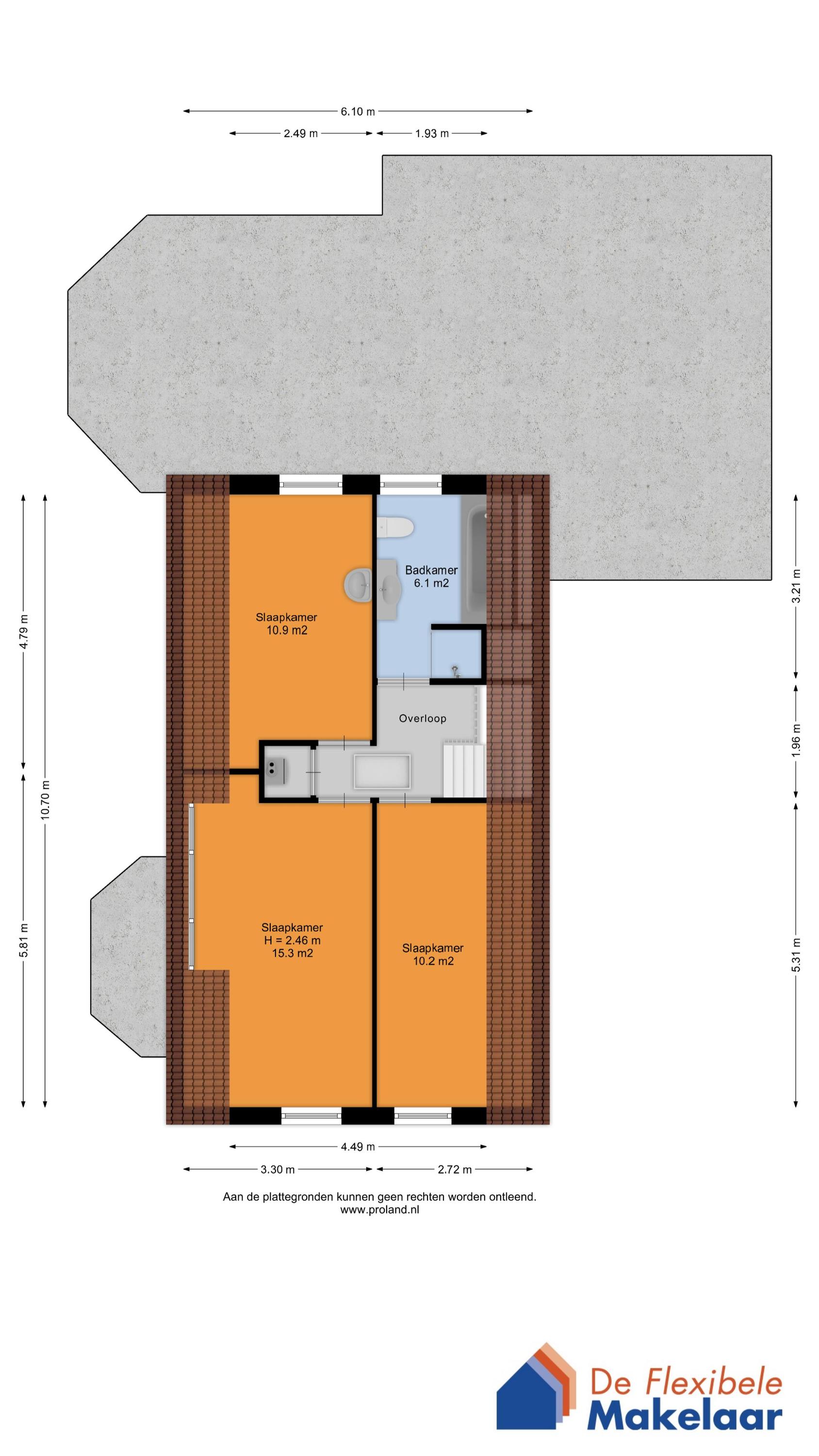
Eerste verdieping; overloop, c.v. ruimte, drie ruime slaapkamers, waarvan één met vaste wastafel, moderne badkamer (ca. 2010) met ligbad, douche, tweede toilet en wastafelmeubel met wastafel.

Tweede verdieping; vlizotrap naar handige zolderberging

Rondom de woning ligt een verzorgde tuin. De achtertuin op het zuiden is ingericht met een gazon, groot zonneterras en twee houten tuinbergingen met overkapping. Via de ruime oprit, met afsluitbare poort en carport, is volop parkeergelegenheid op eigen terrein.

De ligging is uniek: je kijkt uit over de jachthaven van Augustinusga en hoeft alleen de weg over te steken om te zwemmen, vissen of met een bootje te varen. Het dorp zelf biedt een basisschool, een actief verenigingsleven en veel natuur in de directe omgeving. Voor winkels en treinstation kun je terecht in Surhuisterveen en Buitenpost, beiden dichtbij gelegen. Bovendien ben je in 15 minuten in Drachten en in ongeveer 30 minuten in Leeuwarden.

Kortom: een royale, duurzame en instapklare woning op een unieke locatie, waar ruimte, comfort en genieten van het buitenleven samenkomen. Nieuwsgierig geworden? Maak snel een afspraak voor een bezichtiging met onze flexibele makelaars en laat je verrassen door de ruimte en sfeer die deze woning aan It Oerset 1 te Augustinusga te bieden heeft!

Kenmerken

Soort Eengezinswoning, Vrijstaande woning
Vraagprijs 550.000 k.k.
Aangeboden 2 maanden geleden
Status Beschikbaar
Aanvaarding In overleg

Bekijk alle kenmerken...

Interesse?

Vraag een bezichtiging aan

Bekijk de omgeving

Ontdek de ligging van deze woning

Alle kenmerken

Bouw

Bouwvorm Bestaande bouw
Bouwjaar 1998
Bouwjaar omschrijving Gerealiseerd in 1998
Onderhoud (binnen) Goed tot uitstekend
Toelichting Goed tot uitstekende staat van onderhoud
Onderhoud (buiten) Goed tot uitstekend
Toelichting Goed tot uitstekende staat van onderhoud
Dak Samengesteld dak
Dak materialen Pannen, Bitumineuze dakbedekking
Dak toelichting Zadeldak en deels plat dak

Buitenruimte

Ligging Aan water, Aan rustige weg, In woonwijk, Vrij uitzicht, Aan vaarwater
Tuin Achtertuin, Voortuin, Zijtuin, Tuin rondom, Zonneterras (Fraai aangelegd)
Tuin oppervlakte 400 m²
Achtertuin 101 m² (5.5m diep en 18.4m breed)
Ligging Gelegen op ZUID (bereikbaar via achterom)
Parkeren Openbaar parkeren, Op eigen terrein
Parkeren Voldoende parkeren op eigen oprit en in de straat

Energie

Energielabel A
Einddatum 2035-07-08
Isolatie Dakisolatie, Muurisolatie, Vloerisolatie, Gedeeltelijk dubbel glas, HR-glas
Verwarming CV-ketel, Hete-luchtverwarming, Vloerverwarming (gedeeltelijk), Warmteterugwininstallatie
Warm water CV-ketel
C.V.-ketel Atag c.v ketel en Brink heteluchtketel Gas gestookte uit 2024 eigendom

Oppervlakken en inhoud

Perceeloppervlakte 582 m²
Woonoppervlakte 157 m²
Overige ruimten 27 m²
Inhoud 653 m³
Oppervlakte externe bergruimte 16 m²
Gebouwgebonden buitenruimte 24 m²

Garage

Garage soort Aangebouwd (steen)
Voorzieningen Elektra, Elektrische deur
Isolatie Geen isolatie
Oppervlakte 26 m² (6.9m diep en 3.74m breed)
Capaciteit 1 auto(s)
Aantal 1

Indeling

Woonlagen 3 woonlagen
Kamers 5 kamers, waarvan 3 slaapkamers
Badkamers 1 badkamer(s) en 1 aparte toilet(ten)
Badkamervoorzieningen Ligbad, Toilet, Douche, Wastafel, Wastafelmeubel
Voorzieningen Mechanische ventilatie, Airconditioning, Zonnepanelen, Natuurlijke ventilatie

Bestemming

Huidig gebruik Woonruimte
Huidige bestemming Woonruimte
Permanente bewoning Ja

Schuur / berging

Schuur / berging soort Vrijstaand (hout)
Aantal 2

Kadaster DROGEHAM C 2200

Oppervlakte 582 m²
Omvang Geheel perceel

Vergelijkbaar in de buurt

...