Menu
It Sud 15 Surhuizum - Hoofdafbeelding.jpg
D

Tonen op kaart

Brochure

Verkocht: It Sud 15, Surhuizum

Surhuizum It Sud 15

160 m² woonoppervlakte

1.640 m² perceeloppervlakte

7 kamers, waarvan 5 slaapkamers

Verkocht

Geïnteresseerd in dit object?

Vraag eenvoudig een bezichtiging aan!

Interesse in woning

Omschrijving

Aan de rand van Surhuizum en onder de rook van Surhuisterveen is gelegen deze ruime en uitgebouwde vrijstaande woning met maar liefst 5 slaapkamers. Ook is er een grote vrijstaande loods aanwezig en is de oprit exta ruim en klaargemaakt voor zwaarder transport. Het geheel is gelegen op ca. 1.640 m2 eigen grond en heeft naast de grote loods met 2 overheaddeuren (ca. 7m hoogte) ook nog twee vrijstaande tuinbergingen.

Tevens is er aan uw gemak en aan energiezuinigheid gedacht. Zo is de woning zeer onderhoudsarm uitgevoerd met kunststof kozijnen, werzalit gevelbekleding en is er HR(++) glas geplaatst. Ook is het dak grotendeels nageïsoleerd, is het platte dak voorzien van hoogisolerende PIR-platen en zijn de topgevels o.a. geïsoleerd.

De indeling is als volgt:

Begane grond:
Hal/entree; uitgebreide meterkast met krachtstroomaansluitingen; doorzonwoonkamer met vloerverwarming en uitbouw; woonkeuken met koelkast, combi-magnetron en vaste kast; bijkeuken met c.v.opstelling (Intergas HRE combiketel uit 2016), witgoedaansluiting; toilet met wandcloset; badkamer met hoekbad en wastafel met wastafelmeubel.

Eerste etage:
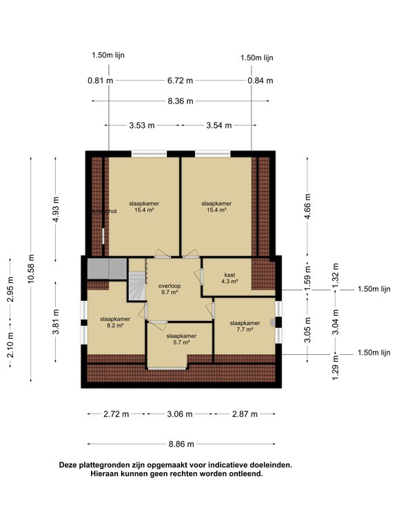
Overloop met zeer ruime inloopkast (overloopkast), 5 ruime slaapkamers, te weten: zeer ruime ouderslaapkamer met elektrische screens, zeer ruime tweepersoonsslaapkamer met elektrische screens, tweepersoonsslaapkamer, en 2 eenpersoonsslaapkamers, waarvan 1 met dakkapel.
Overig en tuin:
Grote en keurige tuin rondom de woning met bestrating en zonneterras. De tuin is zo aangelegd dat u geniet van optimale privacy met zowel zon- als schaduwplekken.

Een grote dubbelegarage/loodsruimte van ca. 104.2 m2 met geisoleerde sandwichpanelen dak, elektrische overheaddeuren en eigen groepenkast voorzien van krachtstroom.
Een houten tuinhuis/berging van 6,3 m2 (met eigen groepenkast) en een uitgebouwde en geïsoleerde containerberging.

Surhuizum ligt op een zeer korte afstand van het dorp Surhuisterveen (waarvan deze woning bijna aan Surhuisterveen grenst), die alle faciliteiten omtrent scholen, winkels en sport heeft te bieden.

Bent u nieuwsgierig en wilt u graag vrijblijvend een kijkje nemen bij deze woning? Maak dan snel een afspraak om e.e.a. van binnen én buiten te bekijken!

Kenmerken

Soort Eengezinswoning, Vrijstaande woning
Vraagprijs Prijs op aanvraag
Aangeboden 5 jaar geleden
Status Verkocht
Aanvaarding In overleg

Bekijk alle kenmerken...

Interesse?

Vraag een bezichtiging aan

Bekijk de omgeving

Ontdek de ligging van deze woning

Alle kenmerken

Bouw

Bouwvorm Bestaande bouw
Bouwjaar 1925
Bouwjaar omschrijving Vrijwel geheel verbouwd en uitgebouwd.
Onderhoud (binnen) Goed
Toelichting Binnen grotendeels uitgebouwd
Onderhoud (buiten) Goed tot uitstekend
Toelichting O.a. vrijwel geheel kunststof, vernieuwd dak en HR++ glas
Dak Schilddak
Dak materialen Pannen, Bitumineuze dakbedekking
Dak toelichting Schilddak met pannen gedekt

Buitenruimte

Ligging Vrij uitzicht, Open ligging, Buiten bebouwde kom, Landelijk gelegen
Tuin Achtertuin, Voortuin, Zijtuin, Tuin rondom (FRAAI_AANGELEGD)
Tuin oppervlakte 1.225 m²
Achtertuin 1.150 m² (42.5m diep en 27.5m breed)
Ligging Gelegen op ZUID
Parkeren Openbaar parkeren, Op eigen terrein
Parkeren Extra verstevigde opritten en parkeergelegenheden bij bestrating

Energie

Energielabel D
Einddatum 2030-03-27
Isolatie Dakisolatie, Muurisolatie, Dubbel glas, HR-glas
Verwarming CV-ketel, Vloerverwarming (gedeeltelijk)
Warm water CV-ketel
C.V.-ketel Intergas HRE Gas gestookte combiketel uit 2016 eigendom

Garage

Garage soort Vrijstaand (steen), Garage mogelijk, Parkeerplaats
Voorzieningen Verwarming, Elektra, Water, Vliering
Isolatie Dakisolatie, Muurisolatie
Oppervlakte 104 m² (9.3m diep en 11.18m breed)
Capaciteit 3 auto(s)
Aantal 1

Indeling

Woonlagen 2 woonlagen
Kamers 7 kamers, waarvan 5 slaapkamers
Badkamers 1 badkamer(s) en 1 aparte toilet(ten)
Badkamervoorzieningen Ligbad, Wastafel
Voorzieningen TV-kabel, Buitenzonwering, Dakraam

Oppervlakken en inhoud

Perceeloppervlakte 1.640 m²
Woonoppervlakte 160 m²
Inhoud 587 m³
Oppervlakte externe bergruimte 136 m²

Schuur / berging

Schuur / berging soort Vrijstaand (kunststof)
Voorzieningen Voorzien van elektra
Isolatie Dakisolatie
Aantal 2

Bestemming

Huidig gebruik Woonruimte
Huidige bestemming Woonruimte
Permanente bewoning Ja

Kadaster SURHUIZUM D 868

Oppervlakte 1.640 m²
Omvang Geheel perceel

Vergelijkbaar in de buurt

...