Menu
Jan Binneslaan 15 Surhuisterveen - Hoofdafbeelding.jpg
D

Tonen op kaart

Brochure

Verkocht: Jan Binneslaan 15, Surhuisterveen

Surhuisterveen Jan Binneslaan 15

113 m² woonoppervlakte

366 m² perceeloppervlakte

4 kamers, waarvan 3 slaapkamers

Verkocht
Referentie door verkoper: "Uitstekende kennis van de lokale markt. Prettig contact met de de medewerkers van het kantoor. Goede informatievoorziening en snelle afhandeling."
Geschreven op 21-01-2024

Deskundigheid10

Prijs/kwaliteit10

Marktkennis10

Service10

Meer reviews bekijken op Funda

Geïnteresseerd in dit object?

Vraag eenvoudig een bezichtiging aan!

Interesse in woning

Omschrijving

Ben je op zoek naar een prachtige woning in een gewilde woonomgeving? Op loopafstand van het bruisende centrum van Surhuisterveen bieden we je een royale, goed onderhouden helft van een dubbele woning aan. Met een garage en een schitterend ingerichte tuin staat dit pareltje op 366m² eigen grond te wachten op een nieuwe bewoner.

Het huis, dat stamt uit 1961, straalt zorg en aandacht uit. De dubbele en HR-beglazing zorgen voor een prettig binnenklimaat, en de woning wordt warm gehouden door een jonge HR-combiketel van Vaillant. De dakbedekking van het platte dak is vernieuwd in 2022.

Bij binnenkomst tref je een ruime hal aan met een toilet voorzien van van wandcloset en fontein, meterkast en de trapkast/kelder. De lichte doorzonwoonkamer van ongeveer 327m² straalt gezelligheid uit en grenst aan een dichte keuken voorzien van een nette opstelling. Daarnaast is er een praktische bijkeuken met witgoedaansluitingen en achterentree en aansluitend een berging van 10m².

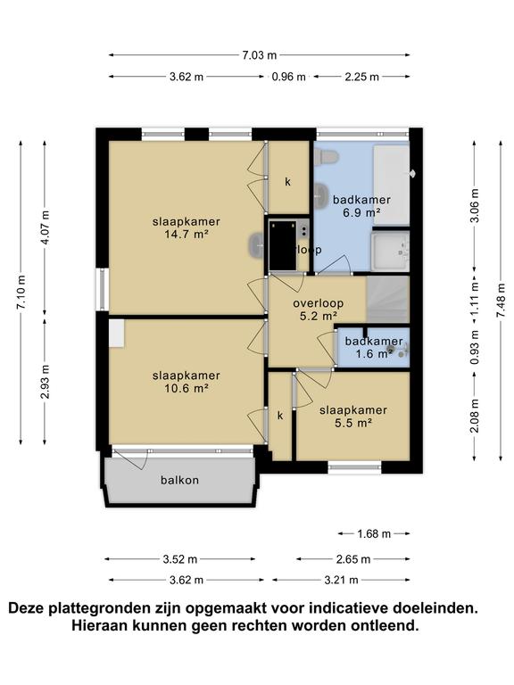
Op de eerste verdieping vind je een overloop die toegang biedt tot drie ruime slaapkamers. Alle slaapkamers zijn uitgerust met inbouwkasten en één ervan heeft een eigen balkon. Een badkamer met douche en de uitgebreide badkamer die van alle gemakken is voorzien: een douchehoek, ligbad, wastafelmeubel en wandcloset.

De zolderverdieping biedt verrassend veel ruimte en is bereikbaar via een vlizotrap, waar ook de cv-opstelling te vinden is.

Aan de achterzijde van de woning vind je een garage van zo'n 16m² en een houten berging. De voortuin is voorzien van een fris gazon en de verzorgde achtertuin biedt veel privacy. Hier kun je genieten van een prachtig aangelegd gazon, sfeervolle plantenborders en een prettige bestrating.

De locatie van de woning is ideaal: in een gewilde buurt en dicht bij het uitgebreide winkelcentrum van Surhuisterveen. Ook andere voorzieningen, zoals scholen, de bibliotheek, sportaccommodaties, het openluchtzwembad en openbaar vervoer, zijn binnen handbereik. Met de nabijgelegen A7 ben je bovendien in een mum van tijd in steden als Groningen, Drachten, Heerenveen en Leeuwarden.

Zie jij jezelf al wonen aan de Jan Binneslaan 15 in Surhuisterveen? Wacht dan niet langer en plan je bezichtiging. Onze flexibele makelaars staan voor je klaar om je rond te leiden in wat misschien wel jouw nieuwe droomhuis wordt!

Kenmerken

Soort Eengezinswoning, Twee-onder-een-kapwoning
Vraagprijs Prijs op aanvraag
Aangeboden 2 jaar geleden
Status Verkocht
Aanvaarding In overleg

Bekijk alle kenmerken...

Interesse?

Vraag een bezichtiging aan

Bekijk de omgeving

Ontdek de ligging van deze woning

Alle kenmerken

Bouw

Bouwvorm Bestaande bouw
Bouwjaar 1961
Bouwjaar omschrijving Volgens BAG
Onderhoud (binnen) Goed
Toelichting Het woonhuis is goed onderhouden.
Onderhoud (buiten) Goed
Toelichting Het woonhuis is goed onderhouden.
Dak Zadeldak
Dak materialen Pannen, Bitumineuze dakbedekking
Dak toelichting De platte daken zijn gedekt met bitumineuze dakbedekking.

Buitenruimte

Ligging Aan drukke weg, In centrum, In woonwijk
Tuin Achtertuin, Voortuin, Zijtuin (FRAAI_AANGELEGD)
Tuin oppervlakte 290 m²
Achtertuin 120 m² (17.05m diep en 7.05m breed)
Ligging Gelegen op ZUIDWEST (bereikbaar via achterom)
Parkeren Openbaar parkeren
Parkeren Voldoende parkeergelegenheid in de directe omgeving.

Energie

Energielabel D
Einddatum 2033-10-12
Isolatie Dubbel glas, HR-glas
Verwarming CV-ketel
Warm water CV-ketel
C.V.-ketel HR Combiketel Gas gestookte combiketel uit 2011 eigendom

Oppervlakken en inhoud

Perceeloppervlakte 366 m²
Woonoppervlakte 113 m²
Overige ruimten 25 m²
Inhoud 465 m³
Oppervlakte externe bergruimte 22 m²
Gebouwgebonden buitenruimte 3 m²

Garage

Garage soort Garagebox
Voorzieningen Elektra, Elektrische deur
Isolatie Geen isolatie
Oppervlakte 16 m² (5.1m diep en 3.04m breed)
Capaciteit 1 auto(s)
Aantal 1

Indeling

Woonlagen 3 woonlagen
Kamers 4 kamers, waarvan 3 slaapkamers
Badkamers 1 badkamer(s) en 1 aparte toilet(ten)
Badkamervoorzieningen Ligbad, Toilet, Douche, Wastafel, Wastafelmeubel
Voorzieningen TV-kabel, Natuurlijke ventilatie

Bestemming

Huidig gebruik Woonruimte
Huidige bestemming Woonruimte
Permanente bewoning Ja

Schuur / berging

Schuur / berging soort Vrijstaand (hout)
Isolatie Geen isolatie
Aantal 1

Kadaster SURHUIZUM B B

Oppervlakte 366 m²
Omvang Geheel perceel

Vergelijkbaar in de buurt

...