Menu
Kaatsveld 1 Drachten - Hoofdafbeelding.jpg
D

Tonen op kaart

Verkocht: Kaatsveld 1, Drachten

Drachten Kaatsveld 1

89 m² woonoppervlakte

375 m² perceeloppervlakte

4 kamers, waarvan 4 slaapkamers

Verkocht

Geïnteresseerd in dit object?

Vraag eenvoudig een bezichtiging aan!

Interesse in woning

Omschrijving

Deze op korte afstand van het centrum gelegen verzorgde woning met aangebouwde overkapping, een diepe achtertuin met vrijstaande houten berging en aangebouwde serre staat op een perceel van 375 m2 aan eigen grond.

Het woonhuis traditioneel gebouwd in 1950 is in de loop der jaren gemoderniseerd en verbeterd. Zo is het voorzien van spouwmuurisolatie, deels vloerisolatie en dubbele beglazing. Het geheel wordt verwarmd door een HR combiketel van Intergas uit 2013. Het schilderwerk is goed onderhouden.

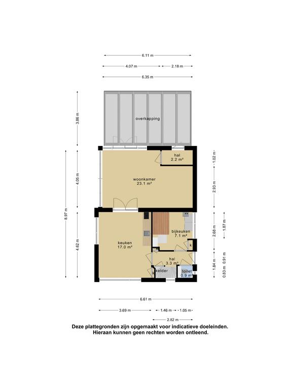
De indeling van deze woning is als volgt:
Zijentree, hal met een modern toilet voorzien van een hangcloset, meterkast, kelder en trapopgang, de woonkeuken met een nette keukenopstelling, de lichte woonkamer van ca. 23 m2 met openslaande deuren naar het overdekte terras, bijkeuken met sauna, witgoedaansluitingen en cv-opstelling, achterhal met achterentree.

Eerste verdieping: overloop met kastruimte, drie slaapkamers en de nette badkamer met douche en vaste wastafel.

Tweede verdieping: middels vlizotrap te bereiken bergzolder.

De voortuin en achtertuin zijn onderhoudsvriendelijk ingericht. De achtertuin is gelegen op westen. Deze is fraai ingericht met een overdekt terras, een groot gazon met prachtige dakplatanen, een grote houten berging met een aangebouwde serre, deze biedt u een mooi uitzicht over de tuin. Het groene omsloten karakter van deze tuin zorgt ervoor dat u optimaal van uw tuin en privacy kunt genieten.

De oprit biedt voldoende parkeergelegenheid op eigen terrein.

De geliefde woonplaats Drachten is een groot dorp (qua grootte, werkgelegenheid en voorzieningenniveau eigenlijk een stad) waar u alle voorzieningen zoals vele soorten scholen, meerdere winkelcentra en vele sportgelegenheden vindt.
Deze woning is qua ligging ideaal ten opzichte van "de driehoek" Groningen, Leeuwarden en Heerenveen. De uitvalswegen A7 liggen op ongeveer een minuut rijden, maar ook ten opzichte van de N356, deze is op enkele autominuten gelegen.

Bent u nieuwsgierig geworden naar deze keurige vrijstaande woning? Maak dan snel een afspraak voor een bezichtiging!

Kenmerken

Soort Eengezinswoning, Vrijstaande woning
Vraagprijs Prijs op aanvraag
Aangeboden 3 jaar geleden
Status Verkocht
Aanvaarding In overleg

Bekijk alle kenmerken...

Interesse?

Vraag een bezichtiging aan

Bekijk de omgeving

Ontdek de ligging van deze woning

Alle kenmerken

Bouw

Bouwvorm Bestaande bouw
Bouwjaar 1950
Onderhoud (binnen) Goed
Toelichting De woning is goed onderhouden.
Onderhoud (buiten) Goed
Toelichting De woning is goed onderhouden.
Dak Zadeldak
Dak materialen Pannen
Dak toelichting Het platte dak is gedekt met bitumineuze dakbedekking

Energie

Energielabel D
Einddatum 2032-04-25
Isolatie Muurisolatie, Dubbel glas
Verwarming CV-ketel
Warm water CV-ketel
C.V.-ketel Intergas HR combi Gas gestookte combiketel uit 2013 eigendom

Oppervlakken en inhoud

Perceeloppervlakte 375 m²
Woonoppervlakte 89 m²
Overige ruimten 6 m²
Inhoud 325 m³
Oppervlakte externe bergruimte 45 m²
Gebouwgebonden buitenruimte 24 m²

Buitenruimte

Ligging Aan rustige weg, In woonwijk
Tuin Achtertuin, Voortuin (FRAAI_AANGELEGD)
Tuin oppervlakte 225 m²
Achtertuin 114 m² (12.04m diep en 9.48m breed)
Ligging Gelegen op WEST (bereikbaar via achterom)
Parkeren Openbaar parkeren, Op eigen terrein

Indeling

Woonlagen 4 woonlagen
Kamers 4 kamers, waarvan 4 slaapkamers
Badkamers 1 badkamer(s) en 1 aparte toilet(ten)
Badkamervoorzieningen Douche, Wastafel
Voorzieningen TV-kabel, Dakraam, Natuurlijke ventilatie

Schuur / berging

Schuur / berging soort Aangebouwd (hout)
Voorzieningen Voorzien van elektra
Isolatie Geen isolatie
Aantal 1

Bestemming

Huidig gebruik Woonruimte
Huidige bestemming Woonruimte
Permanente bewoning Ja

Kadaster DRACHTEN A 13671

Oppervlakte 375 m²
Omvang Geheel perceel

Garage

Garage soort Geen garage

Vergelijkbaar in de buurt

...