Menu
Klysterstrjitte 41 De Westereen - Hoofdafbeelding.jpg
D

Tonen op kaart

Brochure

Verkocht: Klysterstrjitte 41, De Westereen

De Westereen Klysterstrjitte 41

140 m² woonoppervlakte

242 m² perceeloppervlakte

7 kamers, waarvan 5 slaapkamers

Verkocht

Geïnteresseerd in dit object?

Vraag eenvoudig een bezichtiging aan!

Interesse in woning

Omschrijving

Maar liefst 5 slaapkamers, een grote oprit en een eigen vrijstaande garage, en dat op loopafstand van het uitgebreide centrum en de sneltrein, maar toch in een gezellige woonbuurt. Deze twee-onder-één-kapwoning aan De Klysterstrjitte 41 in De Westereen ziet er misschien een beetje gedateerd uit, maar hij heeft vele pluspunten! Vele zaken zijn ook al een keer vernieuwd, dit geldt bijvoorbeeld voor de dure dingen als een toiletruimte en de keuken.

De Westereen is een dorp met een hoog voorzieningen niveau, meerdere basisscholen, uitgebreid winkelcentrum, veel sportfaciliteiten en goede ontsluiting op autowegen richting Leeuwarden, Dokkum, Groningen en Drachten. Daarnaast beschikt dit dorp over een eigen treinstation met verbinding naar Leeuwarden en Groningen, zijn er watersportmogelijkheden en is een jachthaven aanwezig.

Begane grond:
Entree aan de zijkant van de woning met uitgebreide meterkast en bergkast; toiletruimte met wandcloset en fontein; dichte keuken met L-vormige inbouwkeuken; woonkamer met eetkamer overladen met licht door de doorzonfunctie; bijkeuken met witgoedaansluitingen en werkblad.

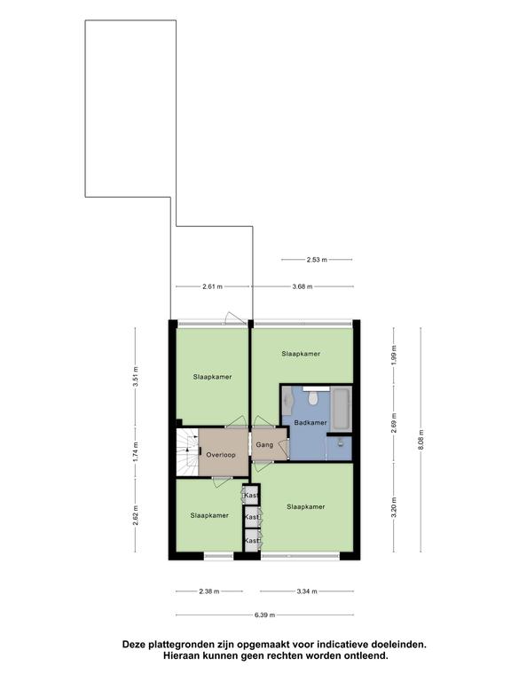
1e etage:
Overloop; 4 slaapkamers, waarvan 2 met vaste kast; badkamer met ligbad, wastafel met wastafelmeubel, wandcloset en douche.

2e etage:
Overloop met veel bergruimte; slaapkamer met bergruimte en een stookruimte met cv-opstelling.

3e etage:
Luik naar bergzolder op 3e etage.

Buiten:
De achtertuin is zonnig en gelegen op het zuid-oosten. De tuin is heerlijk onderhoudsarm en alles is altijd netjes bijgehouden. De garage is vrijstaand en voorzien van elektra.

Graag alles van binnen en van buiten uitgebreid bewonderen? Neem dan snel contact op met onze flexibele makelaars, zij laten je graag de Klysterstrjitte 41 in De Westereen zien!

Kenmerken

Soort Eengezinswoning, Twee-onder-een-kapwoning
Vraagprijs Prijs op aanvraag
Aangeboden 1 jaar geleden
Status Verkocht
Aanvaarding In overleg

Bekijk alle kenmerken...

Interesse?

Vraag een bezichtiging aan

Bekijk de omgeving

Ontdek de ligging van deze woning

Alle kenmerken

Buitenruimte

Ligging Aan rustige weg, In woonwijk, Beschutte ligging
Tuin Achtertuin, Voortuin, Zijtuin (NORMAAL)
Tuin oppervlakte 150 m²
Achtertuin 108 m² (12m diep en 9m breed)
Ligging Gelegen op ZUIDOOST (bereikbaar via achterom)
Parkeren Openbaar parkeren, Op eigen terrein
Parkeren Ruim voldoende parkeergelegenheid. Ook op grote eigen oprit

Bouw

Bouwvorm Bestaande bouw
Bouwjaar 1972
Onderhoud (binnen) Goed
Onderhoud (buiten) Goed
Dak Samengesteld dak
Dak materialen Pannen, Bitumineuze dakbedekking

Energie

Energielabel D
Einddatum 2034-09-18
Isolatie Dakisolatie, Muurisolatie, Vloerisolatie, Dubbel glas
Verwarming CV-ketel
Warm water CV-ketel
C.V.-ketel HR107 Gas gestookte combiketel uit 2010 eigendom

Oppervlakken en inhoud

Perceeloppervlakte 242 m²
Woonoppervlakte 140 m²
Inhoud 501 m³
Oppervlakte externe bergruimte 19 m²
Gebouwgebonden buitenruimte 3 m²

Indeling

Woonlagen 4 woonlagen
Kamers 7 kamers, waarvan 5 slaapkamers
Badkamers 1 badkamer(s) en 1 aparte toilet(ten)
Badkamervoorzieningen Ligbad, Toilet, Douche, Wastafel, Wastafelmeubel, Inloopdouche
Voorzieningen TV-kabel, Glasvezelkabel, Natuurlijke ventilatie

Garage

Garage soort Vrijstaand (steen), Parkeerplaats
Voorzieningen Elektra
Oppervlakte 19 m² (6.13m diep en 3.03m breed)
Capaciteit 1 auto(s)
Aantal 1

Bestemming

Huidig gebruik Woonruimte
Huidige bestemming Woonruimte
Permanente bewoning Ja

Schuur / berging

Schuur / berging soort Inpandig
Voorzieningen Voorzien van verwarming, Voorzien van elektra, Voorzien van water
Aantal 1

Kadaster VEENWOUDEN G 4406

Oppervlakte 242 m²
Omvang Geheel perceel

Vergelijkbaar in de buurt

...