Menu
Koeplein 33 Leeuwarden - Hoofdafbeelding.jpg
C

Tonen op kaart

Brochure

Verkocht: Koeplein 33, Leeuwarden

Leeuwarden Koeplein 33

74 m² woonoppervlakte

67 m² perceeloppervlakte

4 kamers, waarvan 2 slaapkamers

Verkocht
Referentie door verkoper: "Het eerste contact bij de waardebepaling was al een geweldige indruk. Had een huis op het oog en de makelaar had al erg veel informatie al verzameld over dat huis. Ook van mijn eigen woning had hij al heel veel informatie op papier meegenomen. Waardebepaling van de woning werd netjes op papier onderbouwd. In tegenstelling tot een andere makelaar, die eigenlijk vrij snel al begon over dat mensen graag een achtertuin willen."
Geschreven op 15-10-2024

Deskundigheid10

Prijs/kwaliteit9

Marktkennis10

Service9

Meer reviews bekijken op Funda

Geïnteresseerd in dit object?

Vraag eenvoudig een bezichtiging aan!

Interesse in woning

Omschrijving

Deze keurig gerenoveerde, kunstof kozijnen, en authentieke hoekwoning uit 1930 ligt in een rustig en gezellig hofje met een speeltuin voor de deur en parkeergelegenheid in de buurt Oud-Oost. Op slechts 5 minuten (loopafstand) van de binnenstad van Leeuwarden, biedt deze woning vrijwel alles op korte afstand, maar toch in de rust. De woning is voorzien van een keurig groen energielabel C.

Op fietsafstand vind je diverse voorzieningen zoals een overdekt winkelcentrum, gezellige terrasjes, en verschillende winkels. De uitstekende openbaar vervoersverbindingen en de nabijheid van uitvalswegen maken deze locatie extra aantrekkelijk.

De woning biedt niet alleen parkeergelegenheid aan de voorzijde, maar via de achterom heb je toegang tot nog meer parkeermogelijkheden, ideaal voor bezoekers of extra voertuigen. De half open keuken zorgt voor een gezellige en verbonden leefruimte. Daarnaast beschikt de woning over twee comfortabele slaapkamers van beiden ongeveer 9m². Verder is er een ruime bergzolder, perfect voor extra opslag, een hobbyruimte of een werkplek.

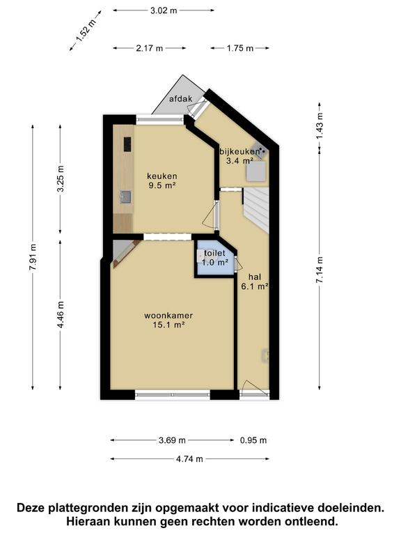
Begane grond:
Op de begane grond vind je de entree/hal met meterkast, trapopgang en toiletruimte. De keuken, voorzien van een inductiekookplaat, combimagnetron en koel-vriescombinatie, heeft een open doorgang naar de woonkamer. Aangrenzend aan de keuken is een praktische bijkeuken, die toegang biedt tot de achtertuin en de achterom.

Eerste verdieping:
Via de overloop heb je toegang tot twee slaapkamers van beiden ca. 9m², evenals de badkamer, die is uitgerust met een wastafel, toilet en douche. Op de verdieping bevinden zich tevens inbouwkasten, die zorgen voor extra bergruimte.

Zolder:
De ruime bergzolder biedt volop mogelijkheden voor extra opslag, een hobbyruimte of een werkplek.

Buiten:
Keurige voortuin en een besloten achtertuin aan de achterzijde, alsmede een fijne en royale achterom.

Ben je nieuwsgierig geworden en wil je dicht bij het centrum van Leeuwarden wonen, maar toch genieten van rust? Neem dan contact op met onze flexibele makelaars en plan je bezichtiging in bij de Koeplein 33 in Leeuwarden!

Kenmerken

Soort Eengezinswoning, Hoekwoning
Vraagprijs Prijs op aanvraag
Aangeboden 1 jaar geleden
Status Verkocht
Aanvaarding In overleg

Bekijk alle kenmerken...

Interesse?

Vraag een bezichtiging aan

Bekijk de omgeving

Ontdek de ligging van deze woning

Alle kenmerken

Bouw

Bouwvorm Bestaande bouw
Bouwjaar 1930
Bouwjaar omschrijving Gebouwd in 1930 en naderhand grondig gerenoveerd
Onderhoud (binnen) Goed
Onderhoud (buiten) Goed
Dak Schilddak
Dak materialen Pannen

Buitenruimte

Ligging Aan rustige weg, In woonwijk
Tuin Achtertuin, Voortuin (NORMAAL)
Tuin oppervlakte 25 m²
Voortuin 15 m² (2.81m diep en 5.34m breed)
Ligging Gelegen op OOST
Parkeren Openbaar parkeren
Parkeren Voldoende parkeergelegenheid. Ook in de parkeerhavens.

Energie

Energielabel C
Einddatum 2034-05-22
Isolatie Dubbel glas, Grotendeels dubbel glas, HR-glas
Verwarming CV-ketel
Warm water CV-ketel
C.V.-ketel Vaillant Gas gestookte combiketel uit 2013 eigendom

Oppervlakken en inhoud

Perceeloppervlakte 67 m²
Woonoppervlakte 74 m²
Overige ruimten 5 m²
Inhoud 279 m³
Gebouwgebonden buitenruimte 2 m²

Indeling

Woonlagen 3 woonlagen
Kamers 4 kamers, waarvan 2 slaapkamers
Badkamers 1 badkamer(s) en 1 aparte toilet(ten)
Badkamervoorzieningen Toilet, Douche, Wastafel, Wastafelmeubel
Voorzieningen Mechanische ventilatie, TV-kabel, Glasvezelkabel, Natuurlijke ventilatie

Bestemming

Huidig gebruik Woonruimte
Huidige bestemming Woonruimte
Permanente bewoning Ja

Schuur / berging

Schuur / berging soort Inpandig
Voorzieningen Voorzien van elektra
Aantal 1

Kadaster LEEUWARDEN F 4420

Oppervlakte 67 m²
Omvang Geheel perceel

Garage

Garage soort Geen garage

Vergelijkbaar in de buurt

...