Menu
Langelaan 5 Surhuisterveen - Hoofdafbeelding.jpg
F

Tonen op kaart

Brochure

Verkocht: Langelaan 5, Surhuisterveen

Surhuisterveen Langelaan 5

125 m² woonoppervlakte

423 m² perceeloppervlakte

5 kamers, waarvan 4 slaapkamers

Verkocht

Geïnteresseerd in dit object?

Vraag eenvoudig een bezichtiging aan!

Interesse in woning

Omschrijving

Aan de rand van het centrum van Surhuisterveen en in een rustige kindvriendelijke buurt staat deze vrijstaande uitgebouwde woning met vrijstaande stenen garage. Het geheel staat op maar liefst 423m² aan eigen grond en heeft alle centrumvoorzieningen op loopafstand.

Het bouwjaar van deze traditioneel gebouwde woning gaat terug tot 1950. Het is in de jaren 80 aan de achterzijde uitgebouwd, waardoor het je veel leefruimte op de begane grond biedt. Hoewel de woning deels is uitgerust met dubbele beglazing en wordt verwarmd door een HR 107 combiketel, biedt hij jou de unieke kans om hem helemaal naar jouw smaak te moderniseren en er een echt thuis van te maken.

De indeling van de woning is als volgt: Zijentree, hal met kelder en meterkast, de lichte woonkamer van ca. 28m², met aansluitend een slaapkamer van ca. 11m², de tuingerichte woonkeuken van ca. 17m² met schuifpui naar de achtergelegen tuin, bijkeuken met witgoedaansluitingen, cv-opstelling, toilet met fontein, badkamer met douche en vaste wastafel.

Eerste verdieping: Overloop, bergruimte, drie slaapkamers en de tweede badkamer met ligbad, douchehoek, toilet en vaste wastafel.

Tweede verdieping: Een middels vlizotrap te bereiken zolderverdieping.

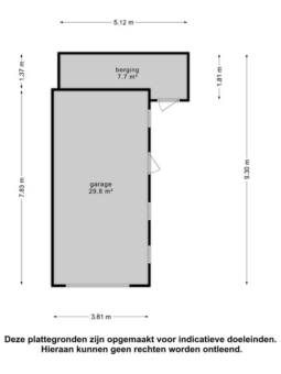
Buiten: De tuin is ingericht met een groot gazon, fraaie beplanting en hagen. Aan de achterzijde bevindt zich een ruime vrijstaande garage van ca. 30m² met aangebouwde berging. De bestrate oprit biedt ruim voldoende parkeergelegenheid op eigen terrein.

Surhuisterveen zelf is een uiterst aangenaam dorp, van alle gemakken voorzien: vier grote supermarkten, tal van winkels, een groot openluchtzwembad, diverse sportfaciliteiten, bruisende horecagelegenheden en een multifunctioneel centrum met onder andere een bibliotheek en diverse ontmoetingsplekken. Dankzij de nabijgelegen A7 zijn steden als Groningen, Drachten en Heerenveen uitstekend bereikbaar, en ook Leeuwarden is slechts een korte rit verwijderd via de Wâldwei.

Wij kunnen ons voorstellen dat je deze woning en de mogelijkheden die het biedt eens van binnen wilt bekijken. Wanneer je een afspraak voor een bezichtiging maakt, dan leiden wij je graag rond op deze mooie plek. Onze flexibele makelaars heten je van harte welkom aan de Langelaan 5 te Surhuisterveen.

Kenmerken

Soort Eengezinswoning, Vrijstaande woning
Vraagprijs Prijs op aanvraag
Aangeboden 1 jaar geleden
Status Verkocht
Aanvaarding In overleg

Bekijk alle kenmerken...

Interesse?

Vraag een bezichtiging aan

Bekijk de omgeving

Ontdek de ligging van deze woning

Alle kenmerken

Bouw

Bouwvorm Bestaande bouw
Bouwjaar 1950
Bouwjaar omschrijving Bouwjaar volgens volgens BAG
Onderhoud (binnen) Redelijk
Toelichting Het woonhuis is redelijk onderhouden
Onderhoud (buiten) Redelijk
Toelichting Het woonhuis is redelijk onderhouden.
Dak Samengesteld dak
Dak materialen Pannen
Dak toelichting De platte daken zijn gedekt met bitumineuze dakbedekking.

Buitenruimte

Ligging Aan rustige weg, In woonwijk
Tuin Achtertuin, Voortuin, Zijtuin (NORMAAL)
Tuin oppervlakte 265 m²
Achtertuin 180 m² (15m diep en 12m breed)
Ligging Gelegen op NOORDOOST (bereikbaar via achterom)
Parkeren Openbaar parkeren, Op eigen terrein
Parkeren Voldoende parkeergelegenheid op eigen terrein.

Energie

Energielabel F
Einddatum 2034-06-27
Isolatie Gedeeltelijk dubbel glas
Verwarming CV-ketel
Warm water CV-ketel
C.V.-ketel HR combiketel Gas gestookte combiketel eigendom

Oppervlakken en inhoud

Perceeloppervlakte 423 m²
Woonoppervlakte 125 m²
Overige ruimten 3 m²
Inhoud 475 m³
Oppervlakte externe bergruimte 38 m²
Gebouwgebonden buitenruimte 8 m²

Garage

Garage soort Vrijstaand (steen)
Voorzieningen Elektra
Isolatie Geen spouw
Oppervlakte 30 m² (7.83m diep en 3.81m breed)
Capaciteit 1 auto(s)
Aantal 1

Indeling

Woonlagen 4 woonlagen
Kamers 5 kamers, waarvan 4 slaapkamers
Badkamers 2 badkamer(s) en 1 aparte toilet(ten)
Badkamervoorzieningen Wastafel, Ligbad, Toilet, Douches 2
Voorzieningen TV-kabel

Bestemming

Huidig gebruik Woonruimte
Huidige bestemming Woonruimte
Permanente bewoning Ja

Schuur / berging

Schuur / berging soort Vrijstaand (hout)
Isolatie Geen isolatie
Aantal 1

Kadaster SURHUIZUM B 4631

Oppervlakte 423 m²
Omvang Geheel perceel

Vergelijkbaar in de buurt

...