Menu
Lege Kamp 42 Ureterp - Hoofdafbeelding.jpg
A++

Tonen op kaart

Brochure

Verkocht: Lege Kamp 42, Ureterp

Ureterp Lege Kamp 42

147 m² woonoppervlakte

263 m² perceeloppervlakte

5 kamers, waarvan 4 slaapkamers

Verkocht
Referentie door verkoper: "Wij zijn erg tevreden over het contact met de makelaar. Wij zijn fantastisch begeleid gedurende het hele verkoopproces. Wij kunnen de Flexibele makelaar dan ook alleen maar van harte aanbevelen. 👍🏡 #FlexibeleMakelaar #TopService"
Geschreven op 28-06-2024

Deskundigheid10

Prijs/kwaliteit10

Marktkennis10

Service10

Meer reviews bekijken op Funda

Geïnteresseerd in dit object?

Vraag eenvoudig een bezichtiging aan!

Interesse in woning

Omschrijving

Genieten van nieuwbouw, luxe, groen en ruim wonen? Deze prachtige woning met een extreem grote uitbouw, royale garage en carport, en een extra grote bijkeuken aan de Lege Kamp 42 in Ureterp heeft dit allemaal én is meer dan instapklaar. Het huis beschikt over een royaal dakkapel en maar liefst 21 zonnepanelen, waardoor het elektriciteitsverbruik van de huidige eigenaren ruim onder nul blijft. De warmtepomp airco's zorgen voor verwarming en koeling, en de gehele begane grond, inclusief de garage, is voorzien van vloerverwarming.

Deze woning biedt veel ruimte met drie royale slaapkamers op de eerste etage, zonder schuine kanten, waardoor de ruimte optimaal benut wordt. De tweede etage is te bereiken via een vaste trap en biedt nog meer mogelijkheden. De uitbouw is gemakkelijk om te toveren tot een slaap- en badkamer beneden, aangezien hier tijdens de bouw al rekening mee is gehouden. Levensloopbestendig/ gelijkvloers wonen is dus zeker een mogelijkheid én de auto kan nog steeds droog blijven staan!

Luxe afwerking vind je door de gehele woning. Er is elektrische zonwering geplaatst, is er infraroodverwarming aanwezig, een waterontharder aangelegd, zijn er overal horren aanwezig, is er een spa geplaatst en zijn warmtepompairco's toegevoegd. Daarnaast is er een zeer grote uitbouw gerealiseerd met alle benodigde aansluitingen.

De woning ligt in een heerlijk nieuwe en compleet aangelegde buurt. Je geniet hier dus van de voordelen van nieuwbouw in een kant-en-klare omgeving.

Energiezuinigheid staat voorop met een A++ label en een bouwjaar van 2018. Dit betekent minimale energiekosten en weinig onderhoud de komende jaren.

Geluidsarm, ook dat is de woning zeer zeker. Niet alleen door de uitstekende isolatie, maar ook door de betonvloeren en de keurige woningscheidende wanden.

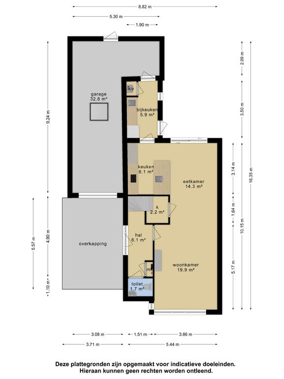
Begane grond:
Binnenkomst via de hal/entree met uitgebreide meterkast en luxe toiletruimte. De royale doorzonwoonkamer sluit naadloos aan op de eetkamer, voorzien van een praktische schuifpui. De aangrenzende zeer luxe inbouwkeuken heeft een groot spoeleiland met barmogelijkheid, een grote kastenwand en een ruim werkblad met volop kookgelegenheid. Onder de trap is een grote bergkast gecreëerd. De aanbouw omvat een ruime bijkeuken met stookmogelijkheid, een verlengde garage met extra berggelegenheid, en een grote carport/overkapping met alle benodigde aansluitingen.

1e etage:
Op de eerste etage vind je een overloop en drie royale slaapkamers, waarvan de ouderslaapkamer is uitgerust met een grote schuifkastenwand. De badkamer beschikt over een inloopdouche, wandcloset, bubbelbad en dubbele wastafel met wastafelmeubel.

2e etage:
De tweede etage is bereikbaar via een vaste trap en biedt volop mogelijkheden voor het creëren van extra kamers. Hier vind je een groot dakkapel, een dakraam en een prachtige werkruimte. Het realiseren van een gastenverblijf op deze etage is eenvoudig mogelijk.

Ureterp heeft een gunstige ligging met diverse uitvalswegen binnen handbereik. Drachten ligt op fietsafstand en binnen vijf minuten rijd je de A7 op richting Heerenveen (20 minuten) of Groningen (30 minuten). Via de N31 bereik je Leeuwarden in 30 minuten. Het uitgebreide centrum van Drachten ligt om de hoek en biedt een divers aanbod aan winkels, horeca, De Bios Drachten, schouwburg De Lawei en andere voorzieningen als vele uitgebreide scholen. Drachten heeft uitstekende verbindingen met Leeuwarden (N31), Heerenveen (A7), Groningen (A7) en Emmen (N381). Daarnaast zijn er uitstekende busverbindingen naar Leeuwarden, Heerenveen en Groningen.

Het dorp biedt tal van voorzieningen, waaronder twee supermarkten, een huisartsenpraktijk, tandartspraktijk, meerdere basisscholen, sportverenigingen en diverse horecagelegenheden. Bovendien zijn er verschillende natuurgebieden om heerlijk van te genieten.

Verhuis naar een plek waar luxe, nieuwbouw, ruimte en duurzaamheid samenkomen. Ervaar samen met onze flexibele makelaars het comfort van deze moderne woning in het hart van Ureterp aan de Lege Kamp 42!

Kenmerken

Soort Eengezinswoning, Twee-onder-een-kapwoning
Vraagprijs Prijs op aanvraag
Aangeboden 1 jaar geleden
Status Verkocht
Aanvaarding In overleg

Bekijk alle kenmerken...

Interesse?

Vraag een bezichtiging aan

Bekijk de omgeving

Ontdek de ligging van deze woning

Alle kenmerken

Buitenruimte

Ligging Aan rustige weg, In woonwijk, Vrij uitzicht, Open ligging
Tuin Achtertuin, Voortuin, Zijtuin (FRAAI_AANGELEGD)
Tuin oppervlakte 263 m²
Achtertuin 75 m² (10.57m diep en 9.98m breed)
Ligging Gelegen op NOORDOOST
Parkeren Openbaar parkeren, Op eigen terrein
Parkeren Ruim voldoende parkeergelegenheid

Bouw

Bouwvorm Bestaande bouw
Bouwjaar 2018
Onderhoud (binnen) Uitstekend
Onderhoud (buiten) Uitstekend
Dak Samengesteld dak
Dak materialen Pannen, Bitumineuze dakbedekking

Energie

Energielabel A++
Einddatum 2034-04-25
Isolatie Dakisolatie, Muurisolatie, Vloerisolatie, Dubbel glas, Volledig geïsoleerd, HR-glas
Verwarming CV-ketel, Hete-luchtverwarming, Mogelijkheid voor open haard, Vloerverwarming (geheel), Elektrische verwarming, Warmtepomp, Gashaard
Warm water CV-ketel
C.V.-ketel Atag Gas gestookte combiketel uit 2018 eigendom

Oppervlakken en inhoud

Perceeloppervlakte 263 m²
Woonoppervlakte 147 m²
Overige ruimten 32 m²
Inhoud 641 m³
Gebouwgebonden buitenruimte 21 m²

Indeling

Woonlagen 3 woonlagen
Kamers 5 kamers, waarvan 4 slaapkamers
Badkamers 1 badkamer(s) en 1 aparte toilet(ten)
Badkamervoorzieningen Ligbad, Toilet, Douche, Jacuzzi, Dubbele wastafel, Wastafel, Wastafelmeubel, Inloopdouche, Vloerverwarming, Whirlpool
Voorzieningen Mechanische ventilatie, TV-kabel, Buitenzonwering, Dakraam, Glasvezelkabel, DOMOTICA, Zonnepanelen, Natuurlijke ventilatie

Garage

Garage soort Aangebouwd (steen)
Voorzieningen Verwarming, Elektra, Water, Elektrische deur
Oppervlakte 31 m² (9.1m diep en 5.3m breed)
Capaciteit 1 auto(s)
Aantal 1

Schuur / berging

Schuur / berging soort Inpandig
Voorzieningen Voorzien van verwarming, Voorzien van elektra, Voorzien van water
Isolatie Dakisolatie, Muurisolatie, Vloerisolatie, Dubbel glas, Volledig geïsoleerd
Aantal 3

Bestemming

Huidig gebruik Woonruimte
Huidige bestemming Woonruimte
Permanente bewoning Ja

Kadaster URETERP F 2678

Oppervlakte 263 m²
Omvang Geheel perceel

Vergelijkbaar in de buurt

...