Menu
Lisdodde 4 Kollum - Hoofdafbeelding.jpg
C

Tonen op kaart

Brochure

Verkocht: Lisdodde 4, Kollum

Kollum Lisdodde 4

167 m² woonoppervlakte

740 m² perceeloppervlakte

5 kamers, waarvan 4 slaapkamers

Verkocht

Geïnteresseerd in dit object?

Vraag eenvoudig een bezichtiging aan!

Interesse in woning

Omschrijving

Op zoek naar een unieke woning op een prachtige locatie aan vaarwater? Deze vrijstaande woning aan de rand van Kollum biedt alles wat je zoekt! Traditioneel gebouwd met oog voor detail, uitstekend onderhouden en met een royale maatvoering. De woning heeft een woonoppervlakte van maar liefst 167 m² op een ruim perceel van 740 m².

Een grote plus is de slaapkamer met aangrenzende badkamer op de begane grond, ideaal voor gelijkvloers wonen. Maar deze slaapkamer is ook ideaal in te richten als comfortabele thuiswerkplek of praktijkruimte aan huis. De zonnige tuin op het zuiden heeft meerdere terrassen, waaronder een houten vlonderterras langs de waterkant – perfect om te genieten van het prachtige uitzicht over de landerijen. De ligging aan vaarwater nodigt uit tot volop waterplezier: verken de omgeving per kano, sup of motorboot, of geniet van een rustige visstek. In de winter is dit een geweldige startplek voor schaatstochten.

Daarnaast is de woning energiezuinig met vrijwel geheel HR isolatieglas, een Nefit c.v.-ketel uit 2021 en energielabel C. Het buitenschilderwerk is in 2022 nog uitgevoerd, waardoor je zorgeloos kunt verhuizen.

Aan de voorzijde tref je een rustige straat met vrijstaande woningen en een groot groen plantsoen. De achterzijde biedt het ultieme woongenot: het goed onderhouden perceel ligt direct aan vaarwater en biedt een adembenemend weids uitzicht, zowel vanuit de tuin als vanuit de woonvertrekken. Het hele jaar door kun je hier genieten van de rust, de natuur en de fraaie ligging.

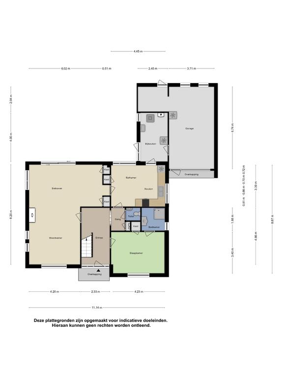
Indeling:
Via de overdekte entree kom je binnen in de hal met vide en een plavuizenvloer. Hier vind je een toilet met fonteintje en een ruime slaapkamer van ruim 14m², voorzien van een vaste kast en een badkamer met douche en wastafelmeubel. De lichte woonkamer heeft grote raampartijen, een gezellige gashaard en een schuifpui naar het zonneterras. Aangrenzend bevindt zich de woonkeuken met hoekopstelling met inbouwapparatuur en een plavuizenvloer. De bijkeuken biedt witgoedaansluitingen en toegang tot het terras. Aansluitend is er een royale L-vormige stenen garage, voorzien van een elektrische garagedeur, loopdeur en een extra tuindeur aan de achterzijde.

Op de eerste verdieping vind je drie ruime slaapkamers, waarvan de grootste beschikt over een balkon en handige bergruimte. De tweede badkamer is compleet ingericht met een ligbad, toilet en vaste wastafel.

Via een vlizotrap is de praktische zolderberging te bereiken.

De tuin rondom de woning is prachtig aangelegd en goed onderhouden, met grote gazons, mooie plantenborders en zonnige terrassen. Aan de waterkant is een terras en een brede vlonder langs de waterkant. Zowel de walbeschoeiing als de vlonder zijn slechts 7 jaar geleden volledig vernieuwd. De eigen oprit aan de voorzijde biedt bovendien voldoende parkeergelegenheid.

Kollum is een charmant en levendig dorp in het noordoosten van Friesland, bekend om zijn rijke historie, sfeervolle straten en prachtige ligging te midden van water en natuur. Het dorp heeft een gezellig centrum met diverse winkels, horecagelegenheden en alle dagelijkse voorzieningen binnen handbereik. Met zijn pittoreske grachten en monumentale panden straalt Kollum een authentieke Friese sfeer uit. Daarnaast is Kollum de perfecte uitvalsbasis voor natuurliefhebbers en watersporters. De directe ligging aan vaarwater maakt het mogelijk om met een boot de Friese meren en omliggende wateren te verkennen. Ook voor wandelaars en fietsers biedt de omgeving talloze routes door het prachtige, weidse landschap. Kollum ligt op een strategische locatie, waardoor het dorp zowel rust als goede bereikbaarheid biedt. Op slechts 5 minuten rijden ligt Buitenpost, met een treinverbinding naar Groningen en Leeuwarden. Met de auto bereik je Groningen binnen 35 minuten, terwijl Leeuwarden op slechts 30 minuten afstand ligt. Deze centrale ligging maakt Kollum een ideale woonplek voor wie graag in een rustige, groene omgeving woont, maar toch de nabijheid van grotere steden waardeert.

Een spoedige aanvaarding behoort bovendien tot de mogelijkheden.

Kortom, een droomhuis op een toplocatie voor liefhebbers van water, natuur en ruimte! Onze flexibele makelaars verwelkomen je graag aan de Lisdodde 4 te Kollum.

Kenmerken

Soort Eengezinswoning, Vrijstaande woning
Vraagprijs Prijs op aanvraag
Aangeboden 1 jaar geleden
Status Verkocht
Aanvaarding In overleg

Bekijk alle kenmerken...

Interesse?

Vraag een bezichtiging aan

Bekijk de omgeving

Ontdek de ligging van deze woning

Alle kenmerken

Bouw

Bouwvorm Bestaande bouw
Bouwjaar 1992
Bouwjaar omschrijving Gebouwd in 1992
Onderhoud (binnen) Goed
Toelichting Goed onderhouden staat
Onderhoud (buiten) Goed
Toelichting Goed onderhouden staat
Dak Zadeldak
Dak materialen Pannen, Bitumineuze dakbedekking
Dak toelichting Zadeldak gedekt met pannen en plat dak met bitumineuze dakbedekking

Buitenruimte

Ligging Aan rustige weg, In woonwijk, Vrij uitzicht, Aan vaarwater
Tuin Achtertuin, Voortuin, Zijtuin, Tuin rondom, Zonneterras (FRAAI_AANGELEGD)
Tuin oppervlakte 550 m²
Achtertuin 300 m² (12m diep en 25m breed)
Ligging Gelegen op ZUID (bereikbaar via achterom)
Parkeren Openbaar parkeren, Op eigen terrein
Parkeren Voldoende parkeergelegenheid op de eigen oprit en in de straat

Energie

Energielabel C
Einddatum 2034-09-12
Isolatie Dakisolatie, Muurisolatie, Vloerisolatie, Dubbel glas, Volledig geïsoleerd, Grotendeels dubbel glas, HR-glas
Verwarming CV-ketel
Warm water CV-ketel
C.V.-ketel Nefit trendline HRC 30 CW5 Gas gestookte combiketel uit 2021 eigendom

Oppervlakken en inhoud

Perceeloppervlakte 740 m²
Woonoppervlakte 167 m²
Overige ruimten 38 m²
Inhoud 758 m³
Gebouwgebonden buitenruimte 7 m²

Indeling

Woonlagen 3 woonlagen
Kamers 5 kamers, waarvan 4 slaapkamers
Badkamers 2 badkamer(s) en 1 aparte toilet(ten)
Badkamervoorzieningen Douche, Wastafel, Wastafelmeubel, Ligbad, Toilet
Voorzieningen Mechanische ventilatie, TV-kabel, Buitenzonwering, Schuifpui, Natuurlijke ventilatie

Garage

Garage soort Aangebouwd (steen)
Voorzieningen Elektra, Water, Elektrische deur
Oppervlakte 30 m² (6.74m diep en 3.71m breed)
Capaciteit 1 auto(s)
Aantal 1

Bestemming

Huidig gebruik Wonen
Huidige bestemming Wonen
Permanente bewoning Ja

Schuur / berging

Schuur / berging soort Inpandig
Voorzieningen Voorzien van elektra
Aantal 1

Kadaster KOLLUM D 3273

Oppervlakte 740 m²
Omvang Geheel perceel

Vergelijkbaar in de buurt

...