Menu
Martinus de Boerstraat 10 Drachten - Hoofdafbeelding.jpg
C

Tonen op kaart

Brochure

Verkocht: Martinus de Boerstraat 10, Drachten

Drachten Martinus de Boerstraat 10

96 m² woonoppervlakte

305 m² perceeloppervlakte

5 kamers, waarvan 3 slaapkamers

Verkocht
Referentie door verkoper: "Het afgelopen jaar hebben wij met succes twee woningen verkocht via Flexiblemakelaar. Wij zijn zeer tevreden over de professionele dienstverlening en de expertise van deze makelaar, die blijk gaf van gedegen marktkennis en deskundig advies. De naam Flexiblemakelaar is in ons geval zeer toepasselijk gebleken; Wieger denkt proactief in oplossingen en biedt een flexibele aanpak."
Geschreven op 06-12-2024

Deskundigheid10

Prijs/kwaliteit10

Marktkennis10

Service10

Meer reviews bekijken op Funda

Geïnteresseerd in dit object?

Vraag eenvoudig een bezichtiging aan!

Interesse in woning

Omschrijving

Heerlijk vrij wonen aan groenstroken met veel privacy aan de achterzijde. Laat je niet misleiden door de bruine kleuren; de woning verkeert in een zeer goede staat van onderhoud. Doordat de woning rechtopgetrokken is, is er veel ruimte, en daarnaast is er ook nog een garage en berging. De royale en diepe achtertuin biedt altijd zonnige plekken. De keuken is verplaatst naar een uitbouw, wat bijdraagt aan een ruimtelijk gevoel.

De woning is keurig onderhouden, wat te zien is aan de kozijnen, screens, nette tuin en het energielabel C. Met enkele aanpassingen kan het C-energielabel verbeterd worden naar een zeer energiezuinig donkergroen niveau.

Begane grond:
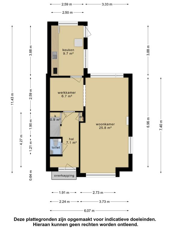
Hal/entree aan de voorzijde via overkapping naar hal met toiletruimte, meterkast. Royale woonkamer, vergroot door de voormalige keukenruimte erbij te betrekken er een plek gecreëerd is voor bijvoorbeeld een werkruimte. Keukenruimte met inbouwkeuken voorzien van inbouwapparatuur en doorloop naar de achtertuin. De toiletruimte met closet en fontein zijn te bereiken via de hal.

Kelder:
Te bereiken via de hal en is gesitueerd onder de trap.

Eerste etage:
Overloop, drie slaapkamers. De ouderslaapkamer is ongeveer 16 m² groot en voorzien van een grote kastenwand. De kleinste slaapkamer heeft een vaste kast en een loopdeur naar het platdak. De derde slaapkamer is ruim met ongeveer 9 m². De badkamer heeft een inloopdouche en een wastafel.

Tweede etage:
Zolderruimte te bereiken via een vaste trap (deze ruimte is niet meegenomen in de woonoppervlakte).

Buiten:
Royale oprit, keurige tuin, vrijstaande stenen garage en berging voor bijvoorbeeld tuinspullen. Aan de buitenzijde van het huis is zonwering geplaatst waar nodig.

Drachten en de buurt:
Drachten is een geliefde woonplaats met een grote verscheidenheid aan voorzieningen op het gebied van sport, basisscholen, voortgezet onderwijs en een uitgebreid winkelaanbod. De stad ligt bovendien gunstig nabij uitvalswegen richting Groningen (A7), Leeuwarden (Wâldwei N31) en Heerenveen (A7).

De woning bevindt zich in de gewilde, ruim opgezette en groene wijk De Singels. Deze wijk heeft een ideale ligging, op loopafstand van het centrum, het zwembad, basisscholen en sportvoorzieningen. Ook winkelcentrum De Drait is gemakkelijk te voet of per fiets bereikbaar. De snelweg A7 richting Heerenveen en Groningen is binnen enkele autominuten te bereiken.

Op zoek naar een instapklare woning die naar eigen smaak ingericht en opgeknapt kan worden, met veel vrijheid in en om de woning? Martinus de Boerstraat 10 in Drachten staat nu te koop. Onze flexibele makelaars zien je graag tijdens een bezichtiging bij deze twee-onder-een-kapwoning in Drachten!

Kenmerken

Soort Eengezinswoning, Twee-onder-een-kapwoning
Vraagprijs Prijs op aanvraag
Aangeboden 1 jaar geleden
Status Verkocht
Aanvaarding In overleg

Bekijk alle kenmerken...

Interesse?

Vraag een bezichtiging aan

Bekijk de omgeving

Ontdek de ligging van deze woning

Alle kenmerken

Bouw

Bouwvorm Bestaande bouw
Bouwjaar 1970
Onderhoud (binnen) Goed
Toelichting De woning is altijd keurig onderhouden en vernieuwd waar nodig
Onderhoud (buiten) Goed tot uitstekend
Toelichting De woning is altijd keurig onderhouden en vernieuwd waar nodig
Dak Dwarskap
Dak materialen Pannen
Dak toelichting Pannen gedekt, plat dak keuken met bitumen.

Buitenruimte

Ligging Aan rustige weg, In woonwijk, Vrij uitzicht, Beschutte ligging, Open ligging
Tuin Achtertuin, Voortuin, Zijtuin, Tuin rondom (VERZORGD)
Tuin oppervlakte 200 m²
Achtertuin 127 m² (13.16m diep en 9.65m breed)
Ligging Gelegen op NOORDWEST (bereikbaar via achterom)
Parkeren Openbaar parkeren, Op eigen terrein
Parkeren Ruim voldoende parkeergelegenheid. Ook op de ruime eigen oprit.

Energie

Energielabel C
Einddatum 2034-06-17
Isolatie Dakisolatie, Muurisolatie, Dubbel glas, HR-glas
Verwarming CV-ketel
Warm water CV-ketel
C.V.-ketel Remeha Avanta Gas gestookte combiketel uit 2012 eigendom

Oppervlakken en inhoud

Perceeloppervlakte 305 m²
Woonoppervlakte 96 m²
Overige ruimten 7 m²
Inhoud 363 m³
Oppervlakte externe bergruimte 22 m²
Gebouwgebonden buitenruimte 1 m²

Garage

Garage soort Vrijstaand (steen)
Voorzieningen Elektra
Isolatie Geen isolatie
Oppervlakte 19 m² (6.47m diep en 2.97m breed)
Capaciteit 1 auto(s)
Aantal 1

Indeling

Woonlagen 3 woonlagen
Kamers 5 kamers, waarvan 3 slaapkamers
Badkamers 1 badkamer(s) en 1 aparte toilet(ten)
Badkamervoorzieningen Douche, Wastafel, Wastafelmeubel, Inloopdouche
Voorzieningen TV-kabel, Buitenzonwering, Natuurlijke ventilatie

Schuur / berging

Schuur / berging soort Vrijstaand (hout)
Voorzieningen Voorzien van elektra
Isolatie Geen isolatie
Aantal 1

Bestemming

Huidig gebruik Woonruimte
Huidige bestemming Woonruimte
Permanente bewoning Ja

Kadaster DRACHTEN C 6256

Oppervlakte 305 m²
Omvang Geheel perceel

Vergelijkbaar in de buurt

...