Menu
Meerpaal 53 Groningen - Hoofdafbeelding.jpg
D

Tonen op kaart

Brochure

Verkocht: Meerpaal 53, Groningen

Groningen Meerpaal 53

92 m² woonoppervlakte

perceeloppervlakte

5 kamers, waarvan 3 slaapkamers

Verkocht

Geïnteresseerd in dit object?

Vraag eenvoudig een bezichtiging aan!

Interesse in woning

Omschrijving

Een riant en goed onderhouden vier kamer appartement met een berging op de begane grond en een ruim balkon op het zeer zonnige zuiden. Het is gelegen op de tweede verdieping van het complex in een rustige woonomgeving.

Het appartement gebouwd in 1971 is voorzien van dubbele beglazing en wordt verwarmd door een HR combiketel van Intergas uit 2012. Het heeft een actieve vereniging van eigenaren met een maandelijkse bijdrage van € 169,51 per maand.

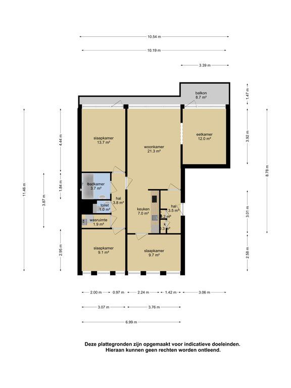
De indeling van deze woning is als volgt:

Begane grond:
Entree met afgesloten portiek, intercom en trapopgang naar de eerste verdieping.

Het appartement:
Entree, hal met meterkast en vaste kast, ruime lichte woonkamer met bijgevoegde eetkamer en een open keuken met een nette keukenopstelling voorzien van inbouwapparatuur, slaapkamer, tussenhal naar twee slaapkamers, wasruimte met witgoedaansluitingen en cv-opstelling, toilet en een badkamer met ligbad, douche en wastafel.

Het appartement is gelegen in de ruim opgezette groene wijk Lewenborg waar alle voorzieningen voor het dagelijkse leven aanwezig zijn zoals een winkel-en gezondheidscentrum. Sportcentrum Kardinge bevindt zich op korte afstand. In 15 minuten fiets je naar het centrum van Groningen.

De genoemde vraagprijs wordt gezien als een vanaf prijs.

Is uw interesse voor dit mooie appartement gewekt? Maak dan een afspraak voor een bezichtiging om uw indruk compleet te maken.

Kenmerken

Soort Portiekflat, Appartement
Vraagprijs Prijs op aanvraag
Aangeboden 5 jaar geleden
Status Verkocht
Aanvaarding In overleg

Bekijk alle kenmerken...

Interesse?

Vraag een bezichtiging aan

Bekijk de omgeving

Ontdek de ligging van deze woning

Alle kenmerken

Bouw

Bouwvorm Bestaande bouw
Bouwjaar 1971
Onderhoud (binnen) Goed
Toelichting Het geheel is goed onderhouden
Onderhoud (buiten) Goed
Toelichting Het geheel is goed onderhouden
Dak Plat dak
Dak materialen Bitumineuze dakbedekking
Dak toelichting De flat heeft een plat dak

Energie

Energielabel D
Einddatum 2028-05-08
Isolatie Dubbel glas
Verwarming CV-ketel
Warm water CV-ketel
C.V.-ketel Intergas HR Gas gestookte combiketel uit 2012 eigendom

Indeling

Woonlagen 1 woonlagen
Kamers 5 kamers, waarvan 3 slaapkamers
Badkamers 1 badkamer(s) en 1 aparte toilet(ten)
Badkamervoorzieningen Ligbad, Zitbad, Wastafel
Voorzieningen Mechanische ventilatie, TV-kabel, Lift

Oppervlakken en inhoud

Woonoppervlakte 92 m²
Inhoud 294 m³
Oppervlakte externe bergruimte 7 m²
Gebouwgebonden buitenruimte 9 m²

Bestemming

Huidig gebruik Woonruimte
Huidige bestemming Woonruimte
Permanente bewoning Ja

Buitenruimte

Ligging Aan rustige weg, In woonwijk, Vrij uitzicht
Parkeren Openbaar parkeren
Parkeren Ruim voldoende parkeergelegenheid

Schuur / berging

Schuur / berging soort Vrijstaand (steen)
Isolatie Geen isolatie
Aantal 1

Appartement

Woonlaag 2 van 1
VVE bijdrage 169.51

Garage

Garage soort Geen garage

Kadaster GRONINGEN AC 4553

Omvang Appartementsrecht / complex

Vergelijkbaar in de buurt

...