Menu
Middelwyk 6 Harkema - Hoofdafbeelding.jpg
B

Tonen op kaart

Verkocht: Middelwyk 6, Harkema

Harkema Middelwyk 6

189 m² woonoppervlakte

771 m² perceeloppervlakte

8 kamers, waarvan 5 slaapkamers

Verkocht

Geïnteresseerd in dit object?

Vraag eenvoudig een bezichtiging aan!

Interesse in woning

Omschrijving

Deze riante vrijstaande goed onderhouden woning met vrijstaande garage, vrijstaande houten berging met overkapping, kas en een fraai ingerichte tuin staat op een ruim perceel van 771 m². Het geheel is fraai gesitueerd in een rustige en kindvriendelijke woonomgeving op korte afstand van goede voorzieningen.

Het woonhuis is gebouwd in 1991 en is volledig geïsoleerd naar de normen van het bouwjaar.
Het geheel wordt verwarmd door een HR combiketel van Nefit. En het is recent geschilderd.

De indeling van deze woning is als volgt:
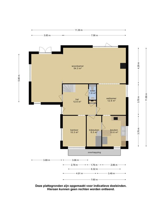
Entree, ruime hal met vide, toilet voorzien hangcloset met fontein en een meterkast, een lichte royale L-vormige woonkamer van ca. 54 m², een houtkachel, openslaande deuren en een loopdeur naar de tuin, een eetkamer van ca. 13 m², de keuken van ca. 11 m² met een nette keukenopstelling, de bijkeuken met witgoedaansluitingen en een werk/slaapkamer van ca. 10 m².

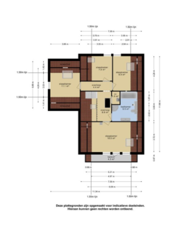
Eerste verdieping: ruime overloop met aansluitend vier slaapkamers, een cv-kast en de badkamer met ligbad, douchecabine, een wasmeubel met twee wasbakken, een hangcloset en een bidet.

Tweede verdieping: ruime zolderverdieping die middels een vlizotrap te bereiken is.

Achter het woonhuis staan de ruime garage van ca. 44 m² met zolderverdieping, de berging met overkapping en de kas. Het perceel heeft een grote verzorgde tuin met voldoende plek om zowel de zon als de schaduw op te zoeken. Het besloten karakter van de tuin biedt u veel privacy waardoor u optimaal van uw tuin kunt genieten.

De ruime oprit biedt voldoende parkeergelegenheid op eigen terrein.

Het energielabel B betreft een inschatting qua energielabel. Het definitieve energielabel is in aanvraag en kan hiervan afwijken.

Harkema is een levendig dorp met een rijk verenigingsleven en diverse voorzieningen zoals scholen, winkels en openbaar vervoer. Voor een aanvulling op deze voorzieningen ligt Surhuisterveen nabij.
Het dorp is gelegen op ca. 15 autominuten van Drachten en Groningen en Leeuwarden op ca. 30 minuten.

Nieuwsgierig naar deze woning? Maak dan een afspraak om uw indruk compleet te maken. Wij zien u graag aan de Middelwyk 6 te Harkema.

Kenmerken

Soort Eengezinswoning, Vrijstaande woning
Vraagprijs Prijs op aanvraag
Aangeboden 4 jaar geleden
Status Verkocht
Aanvaarding In overleg

Bekijk alle kenmerken...

Interesse?

Vraag een bezichtiging aan

Bekijk de omgeving

Ontdek de ligging van deze woning

Alle kenmerken

Bouw

Bouwvorm Bestaande bouw
Bouwjaar 1991
Onderhoud (binnen) Goed
Onderhoud (buiten) Goed
Dak Samengesteld dak
Dak materialen Pannen

Energie

Energielabel B
Einddatum 2031-06-26
Isolatie Dakisolatie, Muurisolatie, Vloerisolatie, Dubbel glas, Volledig geïsoleerd
Verwarming CV-ketel
Warm water CV-ketel
C.V.-ketel Nefit HR combiketel eigendom

Garage

Garage soort Aangebouwd (hout)
Voorzieningen Elektra
Isolatie Geen isolatie
Oppervlakte 49 m² (8.5m diep en 5.75m breed)
Capaciteit 1 auto(s)
Aantal 1

Oppervlakken en inhoud

Perceeloppervlakte 771 m²
Woonoppervlakte 189 m²
Inhoud 672 m³
Oppervlakte externe bergruimte 62 m²
Gebouwgebonden buitenruimte 4 m²

Indeling

Woonlagen 3 woonlagen
Kamers 8 kamers, waarvan 5 slaapkamers
Badkamers 1 badkamer(s) en 1 aparte toilet(ten)
Badkamervoorzieningen Ligbad, Toilet, Douche, Bidet, Dubbele wastafel, Wastafelmeubel
Voorzieningen TV-kabel, Dakraam

Buitenruimte

Ligging Aan rustige weg, In woonwijk
Tuin Tuin rondom (FRAAI_AANGELEGD)
Tuin oppervlakte 590 m²
Ligging Gelegen op
Parkeren Openbaar parkeren, Op eigen terrein

Schuur / berging

Schuur / berging soort Aangebouwd (hout)
Voorzieningen Voorzien van elektra
Isolatie Geen isolatie
Aantal 1

Bestemming

Huidig gebruik Woonruimte
Huidige bestemming Woonruimte
Permanente bewoning Ja

Kadaster SURHUIZUM C 5500

Oppervlakte 771 m²
Omvang Geheel perceel

Vergelijkbaar in de buurt

...