Menu
Molenweg 39 Surhuisterveen - Hoofdafbeelding.jpg
D

Tonen op kaart

Brochure

Verkocht: Molenweg 39, Surhuisterveen

Surhuisterveen Molenweg 39

124 m² woonoppervlakte

278 m² perceeloppervlakte

5 kamers, waarvan 4 slaapkamers

Verkocht

Geïnteresseerd in dit object?

Vraag eenvoudig een bezichtiging aan!

Interesse in woning

Omschrijving

Welkom in deze ruime, fantastisch gelegen en uitgebouwde hoekwoning met 4 slaapkamers én een grote garage in Surhuisterveen. Dit huis is perfect voor jou als je een combinatie van ruimte, comfort en gemak hoog op je lijstje hebt staan. Met een indrukwekkende gebruiksoppervlakte wonen van ca. 124m², exclusief de garage van ca. 29m², biedt dit huis meer dan genoeg ruimte voor al jouw woonwensen!

Bijzonder aan dit huis is de aangebouwde stenen garage van bijna 10 meter lang, gebouwd in 1990. Deze ruimte is perfect om je auto('s) te stallen, als werkplaats of voor extra opslag. In 1992 is het huis ook uitgebreid met een aanbouw aan de zijkant, wat extra leefruimte biedt. Deze toevoegingen maken het huis niet alleen groter, maar ook veelzijdiger in gebruik. Dit geldt ook voor de recht opgetrokken gevels die voor veel functionele ruimte op de eerste verdieping zorgen. Het huis wordt verwarmd door een betrouwbare Vaillant CV-ketel uit 2019.

De indeling is als volgt:
Begane grond:
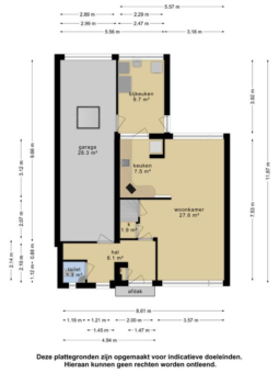
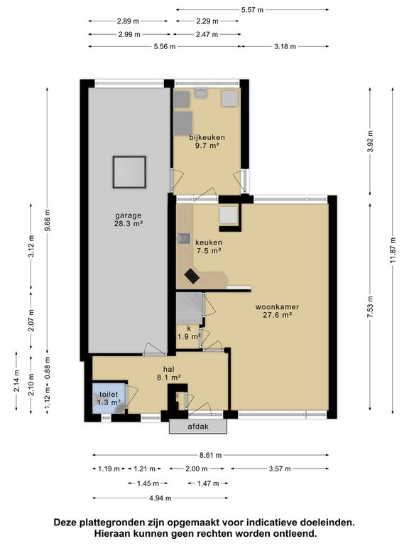
Entree via de voordeur; hal met meterkast en toiletruimte met toilet en fontein; doorzonwoonkamer met open keukenruimte van totaal ca. 35m² voorzien van keuken in L-opstelling; deur naar trapopgang; trapkast; bijkeuken met witgoedaansluitingen; garage met lichtkoepel en met plek voor 2 auto's.

Eerste verdieping:
Op de eerste verdieping zijn 3 ruime slaapkamers aanwezig, allen bereikbaar via de overloop; badkamer met bad, douche en wastafel;

Tweede verdieping:
Via vaste trap bereikbare verdieping met stookruimte, berging en als kers op de taart een 4e slaapkamer.

Buitenom:
De onderhoudsarme achtertuin, gelegen op het noordwesten, is een oase van rust. Hier vind je ook de vrijstaande stenen berging, ideaal voor tuinspullen, als fietsenstalling of als extra opbergruimte. Van het buitenleven genieten kan hier ook, zowel in de zon als in de schaduw. Via de oprit aan de achtergelegen Kloosterstraat rijd je zo het erf op en de garage in. Hier zijn eveneens parkeerhavens langs de straat aanwezig. Aan mogelijkheden geen gebrek!

Het dorp Surhuisterveen:
Surhuisterveen, een levendig dorp, staat bekend om zijn veelzijdige voorzieningen, waardoor het een aantrekkelijke woonplek is voor mensen uit verschillende leeftijdsgroepen. Het dorp herbergt een indrukwekkend scala aan winkels, met meer dan 100 variërende opties, van unieke lokale boetieks tot landelijk bekende winkelketens. Naast het winkelaanbod, beschikt Surhuisterveen over een uitgebreid aanbod aan horecagelegenheden, diverse onderwijsinstellingen inclusief basis- en voortgezet onderwijs, kerken, sportfaciliteiten, gezondheidszorgdiensten en gemeenschapsorganisaties voor senioren. De ligging van Surhuisterveen, direct aan de A7 tussen Groningen en Heerenveen, is eveneens gunstig te noemen.

Stel je voor dat je je dagen doorbrengt in dit ruime en uitnodigende huis, waar elk familielid zijn eigen plekje kan vinden. De grote garage en uitbouw bieden eindeloze mogelijkheden voor je hobby's, werk of ontspanning. Molenweg 39 is niet zomaar een huis, het is een thuis waar je jarenlang van zult genieten.

Ben je klaar om de volgende stap te zetten in jouw woondroom? Neem contact op voor een bezichtiging van deze prachtige hoekwoning in Surhuisterveen. Molenweg 39 wacht op je om er jouw nieuwe thuis van te maken en onze flexibele makelaars leiden je natuurlijk graag rond!

Kenmerken

Soort Eengezinswoning, Hoekwoning
Vraagprijs Prijs op aanvraag
Aangeboden 2 jaar geleden
Status Verkocht
Aanvaarding In overleg

Bekijk alle kenmerken...

Interesse?

Vraag een bezichtiging aan

Bekijk de omgeving

Ontdek de ligging van deze woning

Alle kenmerken

Bouw

Bouwvorm Bestaande bouw
Bouwjaar 1973
Bouwjaar omschrijving De woning is gebouwd in 1973.
Onderhoud (binnen) Redelijk tot goed
Toelichting De woning is goed onderhouden.
Onderhoud (buiten) Redelijk
Toelichting De woning is redelijk onderhouden.
Dak Zadeldak
Dak materialen Pannen, Bitumineuze dakbedekking
Dak toelichting Een met pannen gedekt zadeldak (dwarskap).

Buitenruimte

Ligging Aan rustige weg, In woonwijk
Tuin Achtertuin, Voortuin (NORMAAL)
Tuin oppervlakte 190 m²
Achtertuin 85 m² (13.65m diep en 8.98m breed)
Ligging Gelegen op NOORDWEST (bereikbaar via achterom)
Parkeren Openbaar parkeren, Op eigen terrein
Parkeren Er is voldoende parkeergelegenheid.

Energie

Energielabel D
Einddatum 2032-05-31
Isolatie Dakisolatie, Gedeeltelijk dubbel glas
Verwarming CV-ketel, Vloerverwarming (gedeeltelijk)
Warm water CV-ketel
C.V.-ketel Vaillant Gas gestookte combiketel uit 2019 eigendom

Oppervlakken en inhoud

Perceeloppervlakte 278 m²
Woonoppervlakte 124 m²
Overige ruimten 29 m²
Inhoud 536 m³
Oppervlakte externe bergruimte 10 m²
Gebouwgebonden buitenruimte 1 m²

Garage

Garage soort Aangebouwd (steen)
Voorzieningen Elektra
Isolatie Geen isolatie
Oppervlakte 28 m² (9.66m diep en 2.89m breed)
Capaciteit 2 auto(s)
Aantal 1

Indeling

Woonlagen 3 woonlagen
Kamers 5 kamers, waarvan 4 slaapkamers
Badkamers 1 badkamer(s) en 1 aparte toilet(ten)
Badkamervoorzieningen Ligbad, Zitbad, Douche, Wastafel, Inloopdouche
Voorzieningen TV-kabel, Buitenzonwering, Dakraam, Glasvezelkabel

Schuur / berging

Schuur / berging soort Vrijstaand (steen)
Voorzieningen Voorzien van elektra
Isolatie Geen isolatie
Aantal 1

Bestemming

Huidig gebruik Woonruimte
Huidige bestemming Woonruimte
Permanente bewoning Ja

Kadaster SURHUIZUM B 7185

Oppervlakte 278 m²
Omvang Geheel perceel

Vergelijkbaar in de buurt

...