Menu
Nijewei 15 Harkema - Hoofdafbeelding.jpg
F

Tonen op kaart

Verkocht: Nijewei 15, Harkema

Harkema Nijewei 15

85 m² woonoppervlakte

553 m² perceeloppervlakte

4 kamers, waarvan 3 slaapkamers

Verkocht

Geïnteresseerd in dit object?

Vraag eenvoudig een bezichtiging aan!

Interesse in woning

Omschrijving

Droomt u van een uitgebouwde twee-onder-één-kapwoning met vrijstaande stenen garage gecombineerd met een privacyvolle achtertuin op een uniek royaal perceel van maar liefst 552m²? Dan is Nijewei 15 te Harkema wellicht dé plek voor u! De woning is staat in een fijne woonomgeving en is omgeven door groen!

De woning is traditioneel gebouwd in 1955 en voorzien van dakisolatie, deels dubbele beglazing en wordt verwarmd door een HR combiketel uit 2004. Het huis is toe aan wat vernieuwing, maar dat mag de pret niet drukken want er is een overvloed aan mogelijkheden om dit geheel om te toveren tot uw eigen droomhuis.

De indeling van deze woning is als volgt:
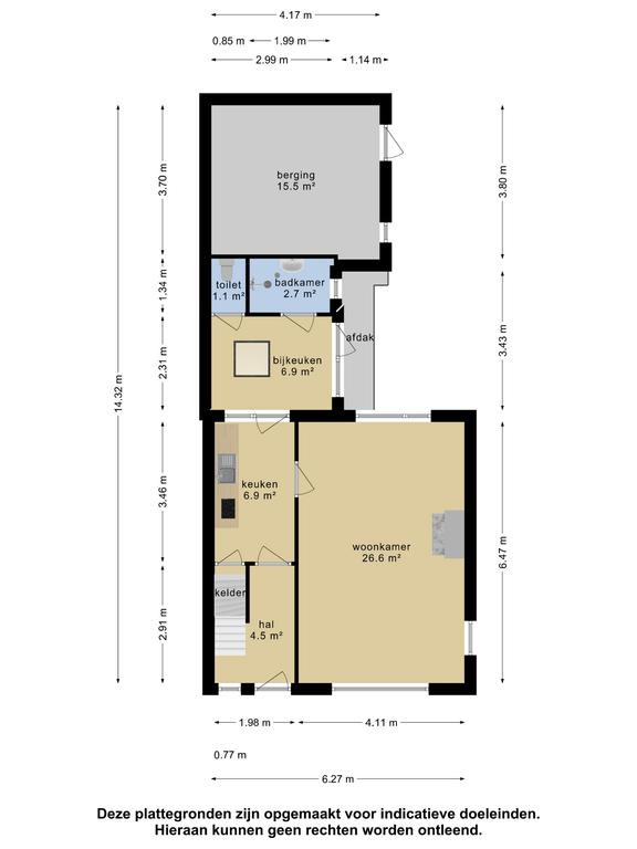
Entree via de voordeur aan de voorzijde van de woning, hal met meterkast en trapopgang, dichte keuken met een eenvoudige keukenopstelling en kelder, lichte ruime woonkamer van ca. 27m², bijkeuken met achterdeur en lichtkoepel; aansluitend de badkamer met douche en vaste wastafel; separaat toilet. Aan de achterzijde van de woning is een berging met zolderruimte gemetseld.

Eerste verdieping:
Overloop met aansluitend drie slaapkamers van 6,2, 8,6 en 8,7m².

Tweede verdieping:
Zolderverdieping, te bereiken met een losse trap.

Buitenom:
De voortuin is ingericht met een gazon en fraaie beplanting en de lange bestrate oprit biedt voldoende parkeergelegenheid op eigen terrein. Zoals eerder genoemd is de ruimte op het perceel echt uniek aan dit geheel. Veel vierkante meters van het royale aantal liggen in de meer dan 30 meter diepe en bijna 10 meter brede achtertuin (dus bijna 300m²) welke gunstig gelegen is op het zonnige zuidoosten. Deze privacyvolle tuin is ingericht met een groot gazon, een verhard gedeelte en de ruime stenen garage van ca. 30m² welke middels kanteldeur en loopdeur toegankelijk is. Aan berg-, hobby- en/of klusruimte geen gebrek bij dit geheel dus!

Het dorp Harkema
Harkema is een levendig dorp met een rijk verenigingsleven en diverse voorzieningen zoals scholen, winkels en openbaar vervoer. Voor een aanvulling op deze voorzieningen ligt het bruisende Surhuisterveen nabij. Het dorp is gelegen op ca. 15 autominuten van Drachten en Groningen en Leeuwarden op ca. 30 minuten.

Kortom, een prachtige plek en een huis met veel potentie! Nieuwsgierig naar deze woning? Maak dan een afspraak om uw indruk compleet te maken. Onze flexibele makelaars zien u graag aan de Nijewei 15 te Harkema.

Kenmerken

Soort Eengezinswoning, Twee-onder-een-kapwoning
Vraagprijs Prijs op aanvraag
Aangeboden 3 jaar geleden
Status Verkocht
Aanvaarding In overleg

Bekijk alle kenmerken...

Interesse?

Vraag een bezichtiging aan

Bekijk de omgeving

Ontdek de ligging van deze woning

Alle kenmerken

Bouw

Bouwvorm Bestaande bouw
Bouwjaar 1955
Bouwjaar omschrijving Traditioneel gebouwd in 1955
Onderhoud (binnen) Redelijk tot goed
Toelichting Het woonhuis is redelijk tot goed onderhouden.
Onderhoud (buiten) Redelijk tot goed
Toelichting Het woonhuis is redelijk tot goed onderhouden.
Dak Samengesteld dak
Dak materialen Pannen
Dak toelichting de platte daken zijn gedekt met bitumineuze dakbedekking.

Buitenruimte

Ligging Aan rustige weg, In woonwijk
Tuin Achtertuin, Voortuin (NORMAAL)
Tuin oppervlakte 340 m²
Achtertuin 300 m² (30m diep en 10m breed)
Ligging Gelegen op ZUIDOOST (bereikbaar via achterom)
Parkeren Openbaar parkeren, Op eigen terrein
Parkeren De oprit biedt voldoende parkeergelegenheid op eigen terrein.

Energie

Energielabel F
Einddatum 2032-09-27
Isolatie Dakisolatie, Gedeeltelijk dubbel glas
Verwarming CV-ketel
Warm water CV-ketel
C.V.-ketel HR combiketel Gas gestookte combiketel uit 2004 eigendom

Oppervlakken en inhoud

Perceeloppervlakte 553 m²
Woonoppervlakte 85 m²
Overige ruimten 16 m²
Inhoud 407 m³
Oppervlakte externe bergruimte 30 m²
Gebouwgebonden buitenruimte 3 m²

Garage

Garage soort Vrijstaand (steen)
Voorzieningen Elektra
Isolatie Geen isolatie
Oppervlakte 30 m² (8.78m diep en 3.74m breed)
Capaciteit 1 auto(s)
Aantal 1

Indeling

Woonlagen 4 woonlagen
Kamers 4 kamers, waarvan 3 slaapkamers
Badkamers 1 badkamer(s) en 1 aparte toilet(ten)
Badkamervoorzieningen Douche, Wastafel
Voorzieningen TV-kabel, Buitenzonwering, Natuurlijke ventilatie

Schuur / berging

Schuur / berging soort Aangebouwd (steen)
Voorzieningen Voorzien van elektra
Isolatie Geen isolatie
Aantal 1

Bestemming

Huidig gebruik Woonruimte
Huidige bestemming Woonruimte
Permanente bewoning Ja

Kadaster SURHUIZUM C 3022

Oppervlakte 553 m²
Omvang Geheel perceel

Vergelijkbaar in de buurt

...