Menu
Nonnepaed 1 Kootstertille - Hoofdafbeelding.jpg
C

Tonen op kaart

Verkocht: Nonnepaed 1, Kootstertille

Kootstertille Nonnepaed 1

128 m² woonoppervlakte

1.650 m² perceeloppervlakte

5 kamers, waarvan 4 slaapkamers

Verkocht

Geïnteresseerd in dit object?

Vraag eenvoudig een bezichtiging aan!

Interesse in woning

Omschrijving

Wie droomt er niet van een fantastische plek midden in de natuur waar je in de ochtend gewekt wordt door een breed scala aan vogels. Maar waar ook reeën en fazanten behoren tot de vaste bezoekers.

Deze vrijstaande woning met vrijstaande stenen garage, gerealiseerd in 1993, ligt midden in een natuurgebied dat door Staatsbosbeheer grootschalig gerestaureerd is, vele hectares agrarische grond zijn opgekocht en teruggeven aan de natuur waardoor flora en fauna zich al volop hebben kunnen ontwikkelen. Er zijn ook tal van mooie wandel- en fietspaden die leiden door het fraaie, afwisselende landschap met boomsingels, moerassen en petgaten.

Een thuis in deze oase van rust is mogelijk op het Nonnepaed 1.

Vanuit de leefruimtes heeft u door de vele raampartijen veel lichtinval maar ook een prachtig uitzicht op de rondom gelegen natuur. Door een doorkijkje in het groen zie je zelfs de boten voorbij varen op het Prinses Margrietkanaal.

Tevens levensloopbestendig doordat er een slaapkamer en badkamer op de begane grond aanwezig zijn. Deze slaapkamer op de begane grond kan bijvoorbeeld ook uitstekend gebruikt worden als studeer/hobbykamer want op de etage is met drie slaapkamers aan slaapruimte ook geen gebrek.

Indeling:
Zijentree, centrale hal, toilet met fonteintje, keuken met een massief houten inbouwkeuken in hoekopstelling voorzien van diverse inbouwapparatuur, woonkamer met openslaande deuren naar het terras, diepe provisiekast, een tweepersoons slaapkamer van 12m², badkamer met ligbad, douche en een meubel met vaste wastafel, bijkeuken met achter entree, c.v. opstelling en witgoed aansluitingen.

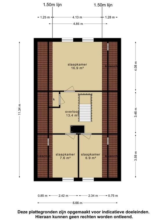
Eerste etage: royale overloop met kastruimte, twee slaapkamers aan de voorzijde met bergruimte en een riante derde slaapkamer aan de achterzijde, ook voorzien van bergruimte.

De vrijstaande garage is groot 24m² en geheel in spouw gemetseld, aan de voorzijde zijn er openslaande deuren geplaatst en in de zijgevel is een loopdeur aanwezig. De vloer is een betonvloer en de zolder met stahoogte biedt volop ruimte voor de opslag van spullen.

Het perceel grond is 1.650m² en de tuin is gelegen rondom de woning, een brede haag en bomen omzomen het erf. In de tuin is uw privacy gewaarborgd en is er altijd wel een zonnig of een schaduwplekje te vinden. De gazons met terrassen zien er uitnodigend uit.

Deze plek ligt dan wel midden in de vrije natuur maar Buitenpost is gelegen op korte afstand en biedt een goed niveau aan voorzieningen, zoals een treinstation, busverbindingen, basis- en voortgezet onderwijs, winkelcentrum en sportaccommodaties. Bovendien is Buitenpost centraal gelegen tussen Groningen en Leeuwarden. Ook de A7 (Drachten-Heerenveen) ligt op een goed bereikbare afstand.

Een spoedige aanvaarding behoort bovendien tot de mogelijkheden zodat u snel zelf kunt genieten van de Friese luchten en de wonderschone natuur.

Wacht dus niet te lang en maak snel een afspraak voor een bezichtiging, onze flexibele makelaars laten u maar wat graag nader kennismaken met deze parel midden in de natuur!

Kenmerken

Soort Eengezinswoning, Vrijstaande woning
Vraagprijs Prijs op aanvraag
Aangeboden 2 jaar geleden
Status Verkocht
Aanvaarding In overleg

Bekijk alle kenmerken...

Interesse?

Vraag een bezichtiging aan

Bekijk de omgeving

Ontdek de ligging van deze woning

Alle kenmerken

Bouw

Bouwvorm Bestaande bouw
Bouwjaar 1993
Bouwjaar omschrijving Gerealiseerd in 1993
Onderhoud (binnen) Goed
Toelichting Goed onderhouden
Onderhoud (buiten) Goed
Toelichting Goed onderhouden
Dak Zadeldak
Dak materialen Pannen
Dak toelichting Kap met pannen gedekt.

Energie

Energielabel C
Einddatum 2033-07-06
Isolatie Dakisolatie, Muurisolatie, Vloerisolatie, Dubbel glas, Grotendeels dubbel glas, HR-glas
Verwarming CV-ketel
Warm water CV-ketel, Elektrische boiler (eigendom)
C.V.-ketel Atag i28 CZ Gas gestookte combiketel uit 2021 eigendom

Buitenruimte

Ligging Aan rustige weg, Vrij uitzicht, Buiten bebouwde kom, Landelijk gelegen
Tuin Tuin rondom (NORMAAL)
Tuin oppervlakte 1.450 m²
Ligging Gelegen op (bereikbaar via achterom)
Parkeren Openbaar parkeren, Op eigen terrein
Parkeren Er is voldoende parkeergelegenheid op het eigen terrein.

Indeling

Woonlagen 3 woonlagen
Kamers 5 kamers, waarvan 4 slaapkamers
Badkamers 1 badkamer(s) en 1 aparte toilet(ten)
Badkamervoorzieningen Ligbad, Douche, Wastafel
Voorzieningen TV-kabel, Rookkanaal, Natuurlijke ventilatie

Garage

Garage soort Vrijstaand (steen)
Voorzieningen Elektra, Vliering
Oppervlakte 24 m² (6.89m diep en 3.49m breed)
Capaciteit 1 auto(s)
Aantal 1

Oppervlakken en inhoud

Perceeloppervlakte 1.650 m²
Woonoppervlakte 128 m²
Inhoud 465 m³
Oppervlakte externe bergruimte 24 m²

Bestemming

Huidig gebruik Woonruimte
Huidige bestemming Woonruimte
Permanente bewoning Ja

Kadaster DROGEHAM K 121

Oppervlakte 550 m²
Omvang Geheel perceel

Vergelijkbaar in de buurt

...