Menu
Noorderkluft 1 Niekerk - Hoofdafbeelding.jpg
B

Tonen op kaart

Brochure

Verkocht onder voorbehoud: Noorderkluft 1, Niekerk

Niekerk Noorderkluft 1

118 m² woonoppervlakte

400 m² perceeloppervlakte

4 kamers, waarvan 3 slaapkamers

Verkocht onder voorbehoud: Momenteel is er een koper in onderhandeling over dit object. Houd deze pagina in de gaten voor updates.
Verkocht onder voorbehoud

Geïnteresseerd in dit object?

Vraag eenvoudig een bezichtiging aan!

Interesse in woning

Omschrijving

In het gezellige dorp Niekerk staat deze levensloopbestendige vrijstaande woning met een ruime aangebouwde garage. Je woont hier in een rustige, kindvriendelijke en ruim opgezette wijk op een perceel van 400 m².

Het huis is gebouwd in 1991, traditioneel van opzet en goed onderhouden. Dankzij de ruime slaapkamer en badkamer op de begane grond is het huis volledig gelijkvloers te bewonen. Het geheel is goed geïsoleerd en wordt verwarmd met een HR-combiketel in combinatie met radiatoren. Dit zorgt voor een comfortabel binnenklimaat en een energiezuinig label B.

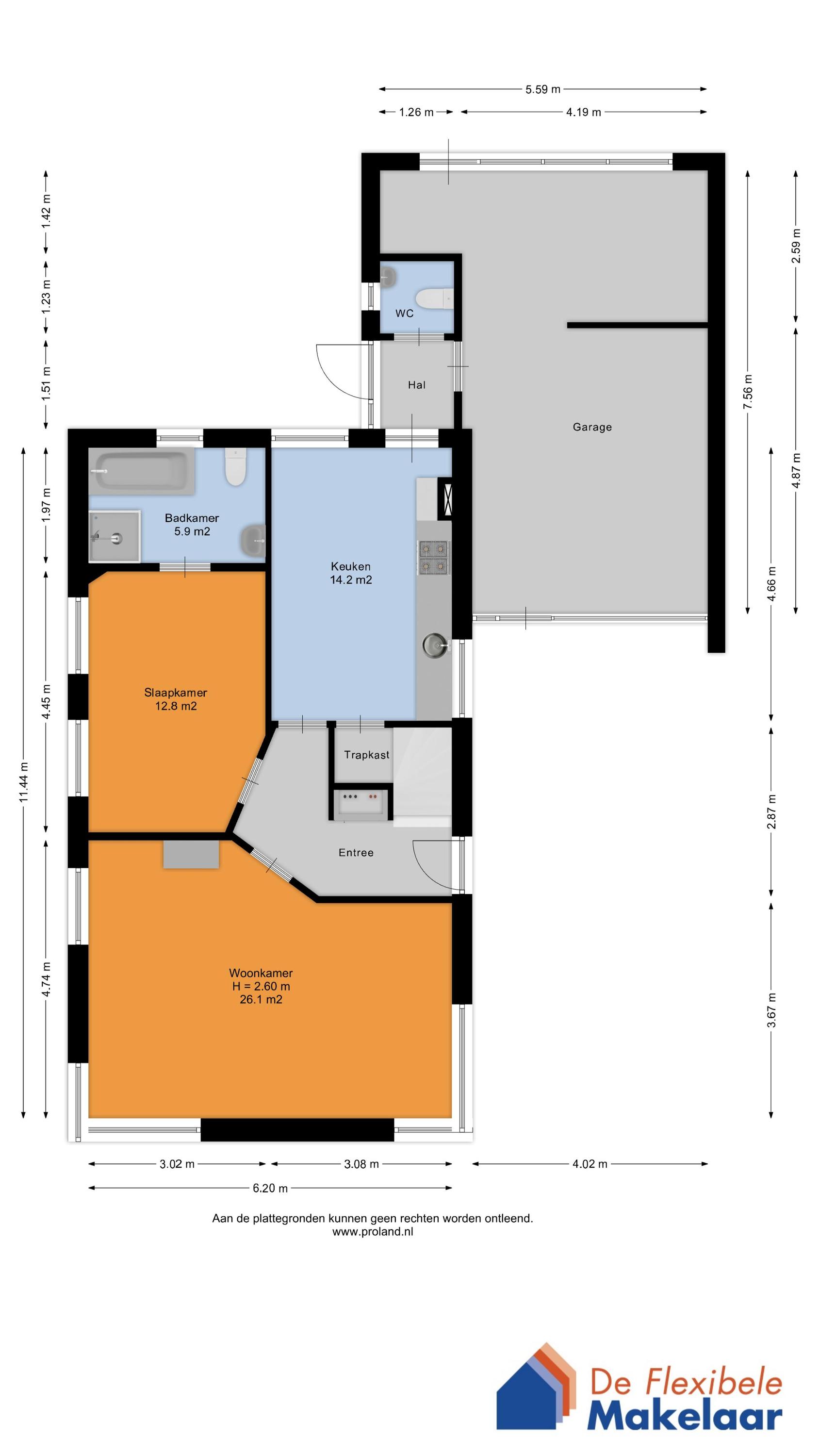
Je komt binnen via een ruime hal met meterkast. De lichte woonkamer van circa 26 m² biedt een fijne leefruimte en staat in verbinding met de woonkeuken, die is voorzien van een nette keukenopstelling. Op de begane grond vind je verder een slaapkamer en aansluitend een badkamer met ligbad, douche, tweede toilet en vaste wastafel. Vanuit de keuken loop je door naar de achterhal met een extra toilet, de achterentree en de toegang tot de garage.

Op de eerste verdieping vind je een overloop met berging, de cv-opstelling, een toilet met fontein en twee ruime slaapkamers.

De aangebouwde brede garage van maar liefst 33 m² is voorzien van een elektrische deur, wateraansluitingen en verwarming, en biedt volop ruimte voor hobby’s, opslag of het parkeren van je auto.

De tuin is onderhoudsvriendelijk aangelegd met achter de woning een bestraat terras. Dankzij het omsloten karakter geniet je hier volop van je privacy. De ruime oprit biedt meer dan voldoende parkeergelegenheid op eigen terrein.

Wonen in Niekerk betekent genieten van het dorpsleven met alle voorzieningen dichtbij. Je hebt hier een supermarkt, slager, bakker en diverse zorgfaciliteiten op loopafstand. Het dorp is kindvriendelijk met basisonderwijs, voortgezet onderwijs en kinderopvang in de buurt. Ook op sportief vlak kom je niets tekort: er is een sporthal, voetbalvelden, een ijsbaan direct achter de tuin en zelfs een overdekt zwembad. En dat allemaal op slechts een kwartier rijden van de stad Groningen. Dankzij goede busverbindingen en het NS-station in Zuidhorn ben je bovendien uitstekend verbonden met de rest van de regio.

Ben je nieuwsgierig geworden naar deze fijne plek om te wonen? Maak dan een afspraak voor een bezichtiging om je indruk compleet te maken. Onze flexibele makelaars heten je alvast van harte welkom aan de Noorderkluft 1 te Niekerk.

Kenmerken

Soort Eengezinswoning, Vrijstaande woning
Vraagprijs Prijs op aanvraag
Aangeboden 4 maanden geleden
Status Verkocht onder voorbehoud
Aanvaarding In overleg

Bekijk alle kenmerken...

Interesse?

Vraag een bezichtiging aan

Bekijk de omgeving

Ontdek de ligging van deze woning

Alle kenmerken

Bouw

Bouwvorm Bestaande bouw
Bouwjaar 1991
Bouwjaar omschrijving Bouwjaar volgen BAG
Onderhoud (binnen) Goed
Toelichting Het woonhuis verkeert in goede staat.
Onderhoud (buiten) Goed
Toelichting Het woonhuis verkeert in goede staat.
Dak Zadeldak
Dak materialen Pannen
Dak toelichting Het plaate dak is gedekt met bitumineuze dakbedekking.

Buitenruimte

Ligging Aan rustige weg, In woonwijk
Tuin Achtertuin, Voortuin, Zijtuin (Normaal)
Tuin oppervlakte 232 m²
Achtertuin 120 m² (7.5m diep en 16m breed)
Ligging Gelegen op NOORD (bereikbaar via achterom)
Parkeren Openbaar parkeren, Op eigen terrein
Parkeren Voldoende parkeergelegenheid op eigen terrein

Energie

Energielabel B
Einddatum 2030-11-20
Isolatie Dakisolatie, Muurisolatie, Vloerisolatie, Dubbel glas
Verwarming CV-ketel
Warm water CV-ketel
C.V.-ketel Remeha HR combiketel Gas gestookte combiketel uit 2009 eigendom

Garage

Garage soort Aangebouwd (steen)
Voorzieningen Verwarming, Elektra, Water, Elektrische deur
Isolatie Dakisolatie, Muurisolatie
Oppervlakte 33 m² (7.56m diep en 4.19m breed)
Capaciteit 1 auto(s)
Aantal 1

Indeling

Woonlagen 2 woonlagen
Kamers 4 kamers, waarvan 3 slaapkamers
Badkamers 1 badkamer(s) en 2 aparte toilet(ten)
Badkamervoorzieningen Ligbad, Toilet, Douche, Wastafel
Voorzieningen TV-kabel, Buitenzonwering, Natuurlijke ventilatie

Oppervlakken en inhoud

Perceeloppervlakte 400 m²
Woonoppervlakte 118 m²
Overige ruimten 33 m²
Inhoud 593 m³

Bestemming

Huidig gebruik Woonruimte
Huidige bestemming Woonruimte
Permanente bewoning Ja

Kadaster OLDEKERK B 2862

Oppervlakte 400 m²
Omvang Geheel perceel

Vergelijkbaar in de buurt

...