Menu
Noordwijkerweg 30 Kornhorn - Hoofdafbeelding.jpg
D

Tonen op kaart

Verkocht: Noordwijkerweg 30, Kornhorn

Kornhorn Noordwijkerweg 30

154 m² woonoppervlakte

955 m² perceeloppervlakte

6 kamers, waarvan 5 slaapkamers

Verkocht

Geïnteresseerd in dit object?

Vraag eenvoudig een bezichtiging aan!

Interesse in woning

Omschrijving

Maar liefst 154m² aan woongenot biedt deze goed onderhouden royale vrijstaande én uitgebouwde woning aan de Noordwijkerweg 30 te Kornhorn. Het geheel, met carport en bergingen en een diepe besloten tuin, is gelegen aan een doorgaande weg in een landelijke omgeving op een ruim perceel van 955m² aan eigen grond. De woning beschikt over maar liefst 5 slaapkamers (4 boven). Gelijkvloers en levensloopbestendig wonen behoort eveneens tot de mogelijkheden, want er is een slaap- en een badkamer beneden!

De woning is traditioneel gebouwd in 1925 en is in de loop verbeterd en gemoderniseerd. Zo heeft het vloer- en dakisolatie, zijn de gevels deels geïsoleerd en is de woning voorzien van dubbele beglazing. Het geheel wordt verwarmd door een jonge HR combiketel van Intergas uit 2021 en het is voorzien van een waterontharder. Het woonhuis is in 2012 aan de achterzijde uitgebouwd en in 2004 is het dak vernieuwd en geïsoleerd.

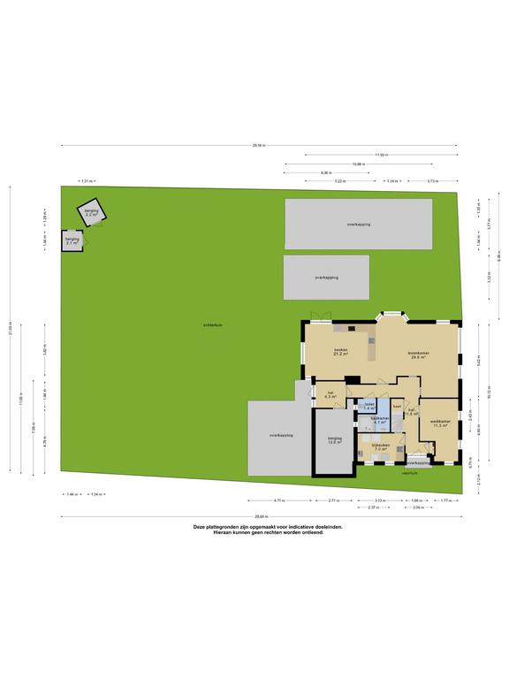
De indeling van deze woning is als volgt:
Begane grond:
Een overkapte entree; gang, een slaap-/werkkamer van 11 m2; de woonkamer van ca. 30 m2 met erker en aansluitend open keuken van 21,2 m2 met een nette landelijke keukenopstelling (2014) voorzien van inbouwapparatuur en openslaande deuren naar de tuin. Vanuit de hal zijn ook bereikbaar de bijkeuken met witgoed aansluitingen en cv-opstelling, de trapopgang met trapkast, de nette badkamer met wasmeubel en douchehoek, het toilet met wandcloset, de achterhal met achterentree en toegang naar de inpandige berging van ca. 14 m2.

Eerst verdieping:
Een ruime overloop met toilet, een inloopkast en aansluitend vier ruime slaapkamers.

Tweede verdieping:
Een middels vlizotrap te bereiken bergzolder.

Buitenom:
De woning heeft een diepe privacy volle achtertuin op het westen waar u het gehele jaar van de zon kunt genieten. De tuin ingericht met een overdekt terras, een nieuwe eenvoudig af te werken schuurruimte en volière. Aan de achterzijde van de woning staat de carport die voldoende parkeergelegenheid op eigen terrein biedt. Al met al een prachtig geheel!

Het dorp Kornhorn
De woning heeft een landelijk uitzicht aan de voorzijde en is gelegen aan een doorgaande weg in Kornhorn. Kornhorn is een plezierig dorp gelegen in het Groninger Westerkwartier. De snelweg A7 met een uitstekende verbinding naar Groningen-Drachten-Heerenveen ligt op korte afstand. Verder beschikt het dorp over een dorpshuis, bassischool en openbaar vervoer. De nabij gelegen dorpen Marum en Grootegast bieden u de overige voorzieningen. De omgeving met in de nabijheid het prachtige natuurgebied Curringherveld leent zich uitstekend om heerlijk te wandelen en te fietsen.

Kortom, een heerlijke royale plek om goed te vertoeven. Onze flexibele makelaars leiden u hier graag rond om uw indruk compleet te maken. Tot ziens aan de Noordwijkerweg 30 te Kornhorn.

Kenmerken

Soort Eengezinswoning, Vrijstaande woning
Vraagprijs Prijs op aanvraag
Aangeboden 3 jaar geleden
Status Verkocht
Aanvaarding In overleg

Bekijk alle kenmerken...

Interesse?

Vraag een bezichtiging aan

Bekijk de omgeving

Ontdek de ligging van deze woning

Alle kenmerken

Bouw

Bouwvorm Bestaande bouw
Bouwjaar 1925
Bouwjaar omschrijving De woning is gebouwd in 1925.
Onderhoud (binnen) Goed
Toelichting Het woonhuis verkeert in goede staat van onderhoud.
Onderhoud (buiten) Goed
Toelichting Het woonhuis verkeert in goede staat van onderhoud.
Dak Samengesteld dak
Dak materialen Pannen, Bitumineuze dakbedekking
Dak toelichting Het pannendak is in 2004 vervangen

Buitenruimte

Ligging Aan drukke weg, Vrij uitzicht, Open ligging, Buiten bebouwde kom, Landelijk gelegen
Tuin Achtertuin, Voortuin, Zijtuin (NORMAAL)
Tuin oppervlakte 730 m²
Achtertuin 450 m² (20m diep en 22.5m breed)
Ligging Gelegen op ZUIDWEST (bereikbaar via achterom)
Parkeren Openbaar parkeren, Op afgesloten terrein
Parkeren Er is voldoende parkeergelegenheid.

Energie

Energielabel D
Einddatum 2032-10-04
Isolatie Dakisolatie, Muurisolatie, Vloerisolatie, Dubbel glas, HR-glas
Verwarming CV-ketel
Warm water CV-ketel
C.V.-ketel HR combiketel Intergas Gas gestookte combiketel uit 2021 eigendom

Oppervlakken en inhoud

Perceeloppervlakte 955 m²
Woonoppervlakte 154 m²
Overige ruimten 14 m²
Inhoud 601 m³
Oppervlakte externe bergruimte 4 m²
Gebouwgebonden buitenruimte 30 m²

Indeling

Woonlagen 3 woonlagen
Kamers 6 kamers, waarvan 5 slaapkamers
Badkamers 1 badkamer(s) en 2 aparte toilet(ten)
Badkamervoorzieningen Douche, Wastafel
Voorzieningen TV-kabel, Natuurlijke ventilatie

Schuur / berging

Schuur / berging soort Vrijstaand (hout)
Voorzieningen Voorzien van elektra, Met vliering
Isolatie Geen isolatie
Aantal 2

Bestemming

Huidig gebruik Woonruimte
Huidige bestemming Woonruimte
Permanente bewoning Ja

Garage

Garage soort Carport, Geen garage
Isolatie Geen isolatie
Oppervlakte 23 m² (4.78m diep en 4.71m breed)

Kadaster GROOTEGAST E 2881

Oppervlakte 60 m²
Omvang Geheel perceel

Vergelijkbaar in de buurt

...