Menu
Olde Borchweg 26 Munnekezijl - Hoofdafbeelding.jpg
B

Tonen op kaart

Brochure

Verkocht: Olde Borchweg 26, Munnekezijl

Munnekezijl Olde Borchweg 26

93 m² woonoppervlakte

285 m² perceeloppervlakte

4 kamers, waarvan 3 slaapkamers

Verkocht

Geïnteresseerd in dit object?

Vraag eenvoudig een bezichtiging aan!

Interesse in woning

Omschrijving

Ben je op zoek naar een twee-onder-één-kapwoning met een garage en een ruime tuin in een rustige omgeving? Dan is dit geheel aan de Olde Borchweg 26 precies wat je zoekt! Deze sfeervolle woning, gebouwd in 1980, combineert het beste van twee werelden: de solide bouw van de jaren ’80 en hedendaagse duurzaamheid met maar liefst 9 zonnepanelen en een energielabel B. Met een perceelgrootte van 285m² is er voldoende ruimte voor al je wensen en behoeften, net als in de omgeving waar veel natuur en rust te vinden is.

De woning beschikt over een keurig B-energielabel en wordt verwarmd door een Nefit combiketel uit 2015. Binnen in de woning vind je een gezellige woonkamer en een open keuken, waar je met familie en vrienden kunt genieten van je dagelijkse bezigheden. Op de eerste verdieping zijn 3 ruime slaapkamers aanwezig.

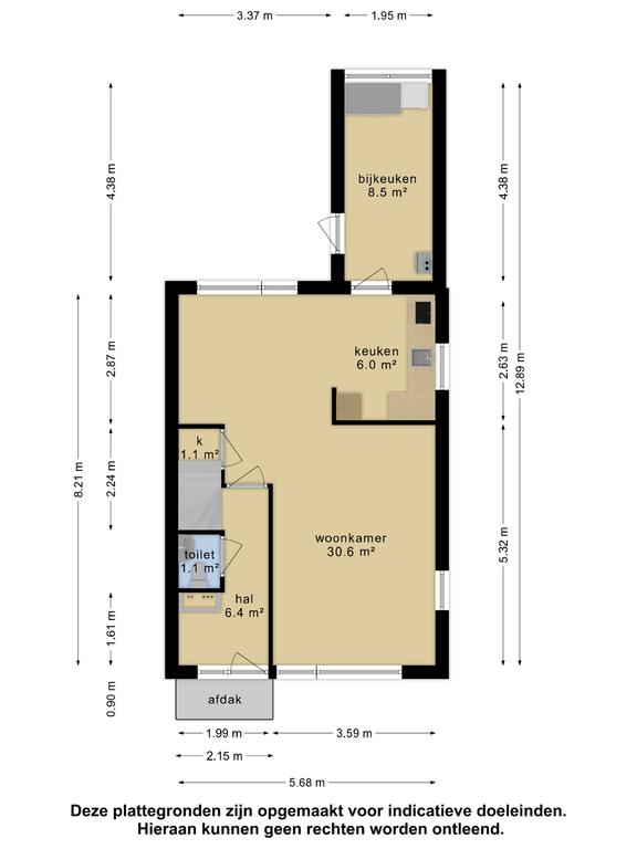
De indeling is als volgt:
Begane grond:
Entree via de voordeur; hal met meterkast en trapopgang; toiletruimte met toilet en fontein; woon-/eetkamer met open keuken van totaal ruim 36m²; trapkast; bijkeuken met CV-opstelling en witgoedaansluitingen.

Eerste verdieping:
Overloop; 3 slaapkamers; badkamer voorzien van douche en wastafel.

Tweede verdieping:
Middels vlizotrap bereikbare bergzolder.

Buitenom:
Bij aankomst op het erf word je verwelkomd door een ruime vrijstaande houten garage, ideaal voor je auto, fietsen of als extra opslagruimte. De achtertuin, gelegen op het noordoosten, biedt de perfecte plek om te ontspannen, met voldoende zon in de ochtend en middag. Dankzij de achterom via de Kerkstraat geniet je van optimale privacy en toegankelijkheid.

Het dorp Munnekezijl:
Gelegen in het pittoreske Munnekezijl, biedt deze woning rust en ruimte, terwijl alle dagelijkse voorzieningen binnen handbereik zijn. Het dorpse karakter en de groene omgeving maken het een ideale plek voor natuurliefhebbers en gezinnen die op zoek zijn naar een veilige en vriendelijke buurt.

Wacht niet langer en ervaar zelf de charme van deze prachtige woning! Neem vandaag nog contact op voor een bezichtiging met één van onze flexibele makelaars en ontdek je nieuwe thuis aan de Olde Borchweg 26 in Munnekezijl!

Kenmerken

Soort Eengezinswoning, Twee-onder-een-kapwoning
Vraagprijs Prijs op aanvraag
Aangeboden 1 jaar geleden
Status Verkocht
Aanvaarding In overleg

Bekijk alle kenmerken...

Interesse?

Vraag een bezichtiging aan

Bekijk de omgeving

Ontdek de ligging van deze woning

Alle kenmerken

Bouw

Bouwvorm Bestaande bouw
Bouwjaar 1980
Bouwjaar omschrijving Gebouwd in 1980.
Onderhoud (binnen) Redelijk
Toelichting De woning is redelijk goed onderhouden.
Onderhoud (buiten) Redelijk
Toelichting De woning is redelijk goed onderhouden.
Dak Zadeldak
Dak materialen Pannen, Bitumineuze dakbedekking
Dak toelichting Met pannen gedekt zadeldak (dwarskap)

Buitenruimte

Ligging Aan rustige weg, In woonwijk
Tuin Achtertuin, Voortuin, Zijtuin (NORMAAL)
Tuin oppervlakte 150 m²
Achtertuin 105 m² (15.03m diep en 8.88m breed)
Ligging Gelegen op NOORDOOST (bereikbaar via achterom)
Parkeren Openbaar parkeren, Op eigen terrein
Parkeren Er is parkeergelegenheid in de omgeving en natuurlijk op eigen erf.

Energie

Energielabel B
Einddatum 2034-05-27
Isolatie Dakisolatie, Muurisolatie, Vloerisolatie, Dubbel glas, Gedeeltelijk dubbel glas
Verwarming CV-ketel
Warm water CV-ketel
C.V.-ketel Nefit Gas gestookte combiketel uit 2015 eigendom

Garage

Garage soort Vrijstaand (hout)
Voorzieningen Elektra
Isolatie Geen isolatie
Oppervlakte 15 m² (4.42m diep en 3.42m breed)
Capaciteit 1 auto(s)
Aantal 1

Oppervlakken en inhoud

Perceeloppervlakte 285 m²
Woonoppervlakte 93 m²
Inhoud 333 m³
Oppervlakte externe bergruimte 15 m²
Gebouwgebonden buitenruimte 2 m²

Indeling

Woonlagen 3 woonlagen
Kamers 4 kamers, waarvan 3 slaapkamers
Badkamers 1 badkamer(s)
Badkamervoorzieningen Douche, Wastafel
Voorzieningen TV-kabel, Zonnepanelen, Natuurlijke ventilatie

Bestemming

Huidig gebruik Woonruimte
Huidige bestemming Woonruimte
Permanente bewoning Ja

Kadaster BURUM B 901

Oppervlakte 285 m²
Omvang Geheel perceel

Vergelijkbaar in de buurt

...