Menu
Oostmahorn 144 Anjum - Hoofdafbeelding.jpg

Tonen op kaart

Verkocht: Oostmahorn 144, Anjum

Anjum Oostmahorn 144

60 m² woonoppervlakte

310 m² perceeloppervlakte

4 kamers, waarvan 3 slaapkamers

Verkocht

Geïnteresseerd in dit object?

Vraag eenvoudig een bezichtiging aan!

Interesse in woning

Omschrijving

Zoekt u een plekje waar u helemaal tot rust kunt komen en kunt genieten van de vrije natuur en het water? Maak van deze droom werkelijkheid! U kunt deze zomer nog genieten van deze vrijstaande recreatiewoning op een kavel van 310 m² in het Friese Anjum. Deze recreatiewoning is heeft haar tuin op een gunstige zonligging en het geheel is gesitueerd aan het water.

Het geheel ligt op loopafstand van het Lauwersmeer en zeer korte afstand van "ons cultureel erfgoed" de Waddenzee. Ook de vele natuurgebieden die deze omgeving rijk is, zijn op loop-/fietsafstand.

Het geheel bevindt zich op kleinschalig bungalowpark 'De Schans' ('De Skâns'). Dit is gelegen aan de rand van Nationaal park Lauwersmeer. Het park is gelegen op loopafstand van Landal Esonstad, met diverse voorzieningen waaronder een 18-holes pitch & putt golfbaan en diverse horecagelegenheden. De parklasten voor het park bedragen ca. €550,- per jaar.

Dit park betreft recreatiegebied, permanente bewoning is daarom niet toegestaan. Wel mag het geheel voor bijvoorbeeld een periode van 5 maanden gebruikt worden onder de recreatiewetgeving.

Wilt u uw eigen boot meenemen op vakantie? In de nabijgelegen jachthaven kunt u uw boot aanmeren. Zo kunt u de prachtige omgeving ontdekken vanaf het water. Tevens heeft u hier de mogelijkheid om watersportartikelen te huren.

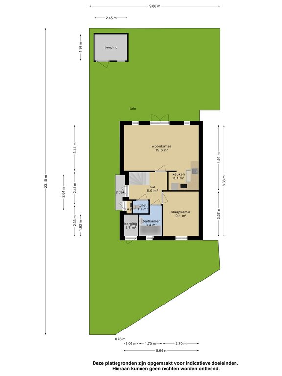
Begane grond:
Hal/entree; toiletruimte; badkamer met bad en wastafel; tweepersoonsslaapkamer; woonkamer met schuifpui naar de achtertuin; open woonkeuken met eetgedeelte.

Eerste etage:
Overloop met 2 ruime overloopkasten; 2e en 3e slaapkamer, waarvan één van de slaapkamers een balkon met prachtuitzicht over het water.

In de aangebouwde berging is de cv-combiketel aanwezig met witgoedaansluitingen. Tevens is via de buitenzijde de elektrische ruimte aanwezig, waar een compleet vernieuwde meterkast aanwezig is.

De houten, vrijstaande berging is gesitueerd aan de achterzijde en biedt ruimte voor opstal.

Rondom de woning is een oase van rust te vinden door het groen, het water en de natuur. Aan de achterzijde van het geheel is een terras ingericht en een klein gazon.

Aan de voorzijde van de woning kan er geparkeerd worden op eigen terrein.

Nieuwsgierig naar dit geheel aan de Oostmahorn 144 te Anjum? Kom dan snel kijken en laat u verassen over de mogelijkheden!

Kenmerken

Soort Eengezinswoning, Vrijstaande woning
Vraagprijs Prijs op aanvraag
Aangeboden 4 jaar geleden
Status Verkocht
Aanvaarding In overleg

Bekijk alle kenmerken...

Interesse?

Vraag een bezichtiging aan

Bekijk de omgeving

Ontdek de ligging van deze woning

Alle kenmerken

Bouw

Bouwvorm Bestaande bouw
Bouwjaar 1994
Onderhoud (binnen) Redelijk
Toelichting Het onderhoud binnen is goed
Onderhoud (buiten) Redelijk
Toelichting Het onderhoud buiten is goed
Dak Zadeldak
Dak materialen Pannen, Bitumineuze dakbedekking
Dak toelichting Dit zadeldak bestaat uit pannen en bitumineuze dakbedekking

Oppervlakken en inhoud

Perceeloppervlakte 310 m²
Woonoppervlakte 60 m²
Overige ruimten 2 m²
Inhoud 220 m³
Oppervlakte externe bergruimte 5 m²
Gebouwgebonden buitenruimte 3 m²

Buitenruimte

Ligging Aan water, Aan park, Aan rustige weg, Vrij uitzicht, Beschutte ligging, Open ligging, Buiten bebouwde kom, In bosrijke omgeving, Landelijk gelegen
Tuin Tuin rondom (NORMAAL)
Tuin oppervlakte 255 m²
Ligging Gelegen op
Parkeren Op eigen terrein
Parkeren Er is voldoende parkeergelegenheid op gemeenschappelijk terrein

Indeling

Woonlagen 2 woonlagen
Kamers 4 kamers, waarvan 3 slaapkamers
Badkamers 1 badkamer(s) en 1 aparte toilet(ten)
Badkamervoorzieningen Ligbad, Zitbad, Wastafel
Voorzieningen TV-kabel, Schuifpui

Bestemming

Huidig gebruik Recreatie wonen
Huidige bestemming Recreatie wonen
Permanente bewoning Ja
Recreatiewoning 1

Energie

Isolatie Dakisolatie, Muurisolatie, Dubbel glas, Grotendeels dubbel glas, HR-glas
Verwarming CV-ketel
Warm water CV-ketel
C.V.-ketel CV bouwjaar indicatief Gas gestookte combiketel uit 2002 eigendom

Schuur / berging

Schuur / berging soort Inpandig
Voorzieningen Voorzien van elektra, Voorzien van water
Isolatie Geen isolatie
Aantal 3

Kadaster ANJUM G 1143

Oppervlakte 310 m²
Omvang Geheel perceel

Garage

Garage soort Parkeerplaats

Vergelijkbaar in de buurt

...