Menu
Oude Havenstraat 7 Buitenpost - Hoofdafbeelding.jpg
A

Tonen op kaart

Brochure

Verkocht: Oude Havenstraat 7, Buitenpost

Buitenpost Oude Havenstraat 7

100 m² woonoppervlakte

240 m² perceeloppervlakte

5 kamers, waarvan 3 slaapkamers

Verkocht

Geïnteresseerd in dit object?

Vraag eenvoudig een bezichtiging aan!

Interesse in woning

Omschrijving

Welkom bij deze prachtig onderhouden en energiezuinige woning aan de Oude Havenstraat 7 in Buitenpost. Dit halfvrijstaande huis ligt aangenaam vrij zonder directe overburen, aan de rand van het centrum maar toch in een rustige en gezellige buurt. Met een recente totale opknapbeurt tot en met 2024, waaronder een grote uitbouw en een topnotering met een A-energielabel, biedt dit huis meer dan alleen comfort en stijl, maar bezorgt je ook lage maandlasten.

De woonkosten zijn verbazingwekkend laag, met gemiddelde maandlasten voor gas en elektra van minder dan 30 euro (ja, je leest het goed!), dankzij:
-Dak-, muur- en vloerisolatie
-HR(++) glas en nieuwe kozijnen (2018)
-8 zonnepanelen van 350 wp elk
-Nieuwe CV-combiketel (2021)
-Zonwering (2022)
-Vernieuwd dak met nieuwe dakpannen en zonnepanelen (2021)
-Zolderisolatie (2024)
-Betonvloer en de royale uitbouw van circa 21m² (2016)

In 2024 is de gehele woning nog extra onderhanden genomen met bijvoorbeeld nieuw binnen- en buitenschilderwerk.

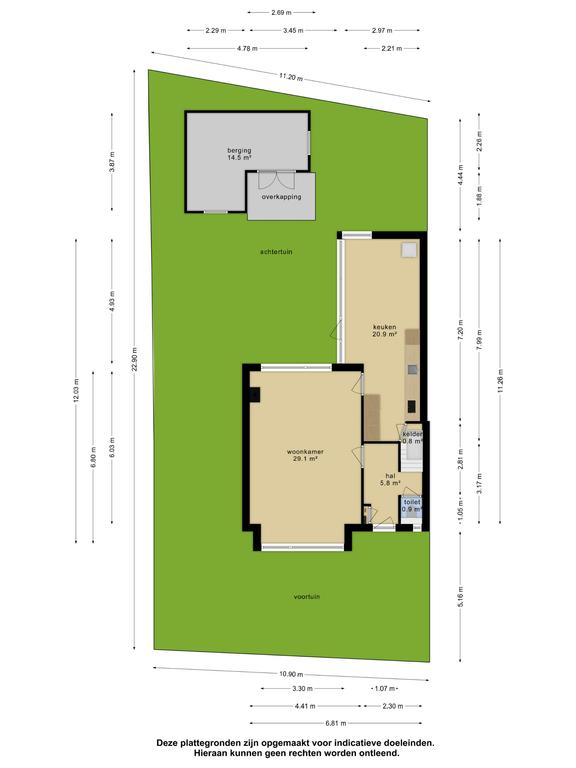
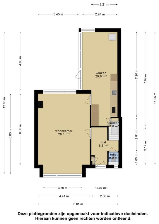
Begane grond:
De begane grond herbergt een entree/hal, een doorzonwoonkamer met pelletkachel en toegang tot de ruime uitbouw met een luxe inbouwkeuken, compleet met moderne apparatuur en toegang tot de zonnige achtertuin. Een toiletruimte is bereikbaar vanuit de hal.
De kelder is toegankelijk via de keuken, perfect voor extra opslag of als wijnkelder.

1e etage:
Op de eerste etage is de woning recht omhoog getrokken, wat zorgt voor extra veel ruimte; hier vind je een overloop en drie slaapkamers, waarvan één met balkon.

2e etage:
De tweede etage biedt middels een vlizotrap toegang tot een ruime bergzolder.

Buiten:
De buitenruimte van deze woning is net zo indrukwekkend, met een onderhoudsarme tuin op het zuid-oosten die veel zitgelegenheid biedt, naast een berging en een veranda waar je van de ochtendzon en middagschaduw kunt genieten. De ligging van de tuin zorgt voor een prettige mix van zon en schaduw gedurende de hele dag. Daarnaast beschikt de woning over een netjes aangelegde voortuin en een grote oprit die ruimte biedt aan meerdere auto's.

Buitenpost is een levendig dorp dat jou een uitgebreide selectie aan onderwijsmogelijkheden biedt, met meerdere basisscholen en een goede keuze aan middelbare scholen, alle binnen handbereik van het centrale winkelgebied, dat jij eenvoudig te voet of per fiets kunt bereiken. Het dorp pronkt met een rijk scala aan supermarkten, winkels en lokale ondernemingen. Als je de voorkeur geeft aan openbaar vervoer: Buitenpost is uitstekend voorzien met een eigen treinstation dat directe en vlotte verbindingen biedt naar de steden Groningen en Leeuwarden, waardoor je binnen slechts 25 minuten in het hart van deze provinciehoofdsteden kunt zijn. Buitenpost kenmerkt zich ook door een dynamische en sportieve gemeenschap, met een breed aanbod aan sportverenigingen. Of je nu interesse hebt in tennis, voetbal, fierljeppen of kaatsen, het dorp heeft voor iedereen passende activiteiten.

Deze woning combineert het beste van twee werelden: de rust en ruimte van een buitenwijk met de gemakken van het dorpscentrum binnen handbereik. Oude Havenstraat 7 in Buitenpost is een unieke kans voor wie op zoek is naar comfort, duurzaamheid, stijl en wonen met een lage woonlast. Ontdek het zelf en laat je verrassen door wat dit huis te bieden heeft. Onze flexibele makelaars zien je graag bij de Oude Havenstraat 7 in Buitenpost!

Kenmerken

Soort Eengezinswoning, Twee-onder-een-kapwoning
Vraagprijs Prijs op aanvraag
Aangeboden 2 jaar geleden
Status Verkocht
Aanvaarding In overleg

Bekijk alle kenmerken...

Interesse?

Vraag een bezichtiging aan

Bekijk de omgeving

Ontdek de ligging van deze woning

Alle kenmerken

Bouw

Bouwvorm Bestaande bouw
Bouwjaar 1958
Bouwjaar omschrijving Naderhand compleet gerenoveerd
Onderhoud (binnen) Uitstekend
Onderhoud (buiten) Uitstekend
Dak Samengesteld dak
Dak materialen Pannen, Bitumineuze dakbedekking
Dak toelichting Pannen + Bitumen

Buitenruimte

Ligging Aan rustige weg, In woonwijk, Open ligging
Tuin Achtertuin, Voortuin, Zijtuin (FRAAI_AANGELEGD)
Tuin oppervlakte 165 m²
Achtertuin 98 m² (8.5m diep en 11.5m breed)
Ligging Gelegen op ZUIDOOST (bereikbaar via achterom)
Parkeren Openbaar parkeren, Op eigen terrein
Parkeren Ruim voldoende parkeergelegenheid, ook op eigen terrein.

Energie

Energielabel A
Einddatum 2033-10-28
Isolatie Dakisolatie, Muurisolatie, Vloerisolatie, Dubbel glas, HR-glas
Verwarming CV-ketel, Pelletkachel
Warm water CV-ketel
C.V.-ketel HR107 Gas gestookte combiketel uit 2021 eigendom

Oppervlakken en inhoud

Perceeloppervlakte 240 m²
Woonoppervlakte 100 m²
Overige ruimten 1 m²
Inhoud 367 m³
Oppervlakte externe bergruimte 15 m²
Gebouwgebonden buitenruimte 3 m²

Indeling

Woonlagen 4 woonlagen
Kamers 5 kamers, waarvan 3 slaapkamers
Badkamers 1 badkamer(s) en 1 aparte toilet(ten)
Badkamervoorzieningen Ligbad, Toilet, Douche, Wastafel, Wastafelmeubel
Voorzieningen Buitenzonwering, Zonnepanelen, Natuurlijke ventilatie

Bestemming

Huidig gebruik Woonruimte
Huidige bestemming Woonruimte
Permanente bewoning Ja

Schuur / berging

Schuur / berging soort Vrijstaand (hout)
Voorzieningen Voorzien van elektra
Aantal 1

Kadaster BUITENPOST A 4366

Oppervlakte 240 m²
Omvang Geheel perceel

Garage

Garage soort Garage mogelijk, Parkeerplaats

Vergelijkbaar in de buurt

...