Menu
Pinkstraat 10 Leeuwarden - Hoofdafbeelding.jpg
G

Tonen op kaart

Brochure

Verkocht: Pinkstraat 10, Leeuwarden

Leeuwarden Pinkstraat 10

95 m² woonoppervlakte

120 m² perceeloppervlakte

4 kamers, waarvan 3 slaapkamers

Verkocht

Geïnteresseerd in dit object?

Vraag eenvoudig een bezichtiging aan!

Interesse in woning

Omschrijving

Goed onderhouden tussenwoning aan een brede woonstraat in een fijne buurt. Hier is met zorg gewoond en dat voel je meteen als je binnenstapt. Wat deze woning echt extra maakt, is de grote houten aan- & opbouw aan de achterzijde, die niet alleen drie ruime slaapkamers biedt, maar ook ruimte laat voor een extra badkamer op de verdieping. De knusse sfeer van het huis zorgt ervoor dat je je hier direct thuis voelt.

De Pinkstraat ligt in de gezellige wijk Oud-Oost, waar je alles binnen handbereik hebt. In de directe omgeving vind je diverse basisscholen, winkels, speelvelden, het groene Doctor Zamenhofpark, sportvelden, een huisarts, apotheek en goede openbaarvervoersverbindingen. Met de auto ben je binnen enkele minuten op de uitvalswegen (N31 en N355) richting Dokkum, Drachten, Groningen of Harlingen. Daarnaast bevindt de historische binnenstad van Leeuwarden zich op loopafstand. De woning ligt aan een brede, rustige straat in een fijne buurt en biedt voldoende gratis parkeergelegenheid direct voor de deur. Kortom, een ideale plek om te wonen!

Energielabel:
De woning heeft momenteel een energielabel G, maar er is na het energielabel wel verder verduurzaamd. Zo is er de gevel naderhand geïsoleerd. Ook is er deels nieuwe beglazing geplaatst, is de verdiepingsvloer van de zolder geïsoleerd en is er een cv-ketel geplaatst.

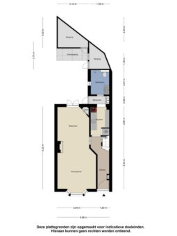
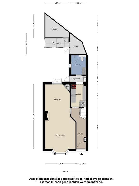
Indeling begane grond:
Hal/entree met meterkast, gang en trapkast; bijzonder sfeervolle, uitgebouwde doorzon-woonkamer (ca. 30m²) met erkerkozijn, laminaat en dubbele tuindeuren; gesloten keukenruimte voorzien van inbouwapparatuur en massief natuurstenen werkblad; tussenruimte met (huur) cv-ketel uit 2018 en achterentree; badkamer voorzien van douchecabine, wastafel en toilet.

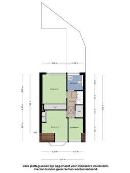
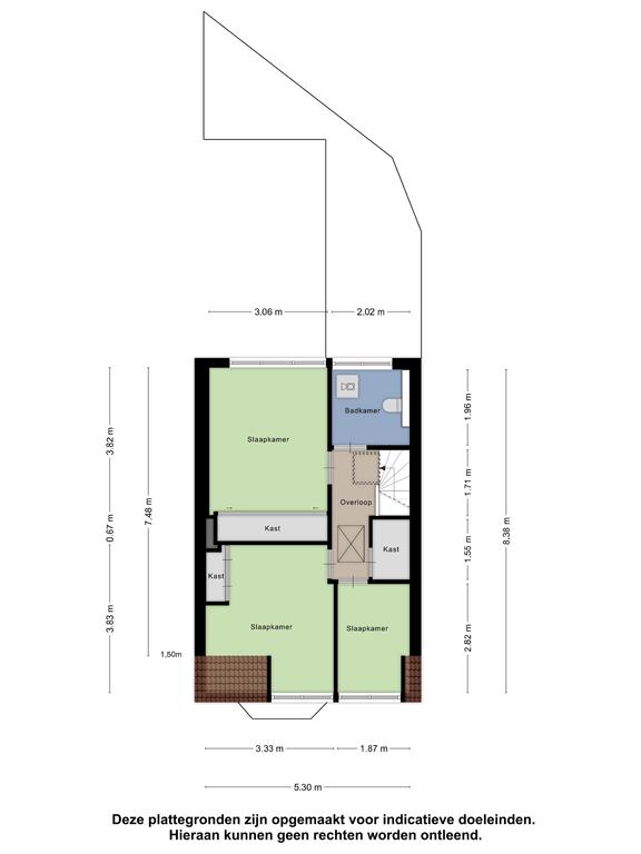
Indeling 1e verdieping:
Overloop met lichtkoepel; tweepersoonsslaapkamer (achterzijde) met schuifwandkast; tweepersoonsslaapkamer met dakkapel en vaste kast; 3e slaapkamer met dakkapel. Wasruimte/toilet (ca. 4m²) met wandtegels; mogelijkheid voor badkamer.

Indeling 2e verdieping:
Vlizotrap naar de bergzolder.

Buiten:
Westgerichte zonnige achtertuin met aan de achterzijde een grote overkapping met achterom naar steeg.

Bijzonderheden:
Keurige voorgevel met nieuw voegwerk en smeedijzeren hekwerk in de voortuin. Opbouw achterzijde gerealiseerd in 2005 en bekleed met duurzaam en onderhoudsvrij redcedar. Begane grondvloer: balklaag en vloerdelen compleet vernieuwd, inclusief isolerende en vochtwerende schelpen. Vrijwel geheel voorzien van dubbele beglazing. Verwarming middels gaskachels. Warmwatervoorziening met cv. Elektrisch bedienbaar zonnescherm aan achtergevel-begane grond. Verdieping achter met elektrisch bedienbare screens en voorgevel met handmatig bedienbare screens.

Een woning die met liefde is bewoond en klaar is voor een nieuwe bewoner die hier met net zoveel plezier wil wonen.

Kenmerken

Soort Eengezinswoning, Tussenwoning
Vraagprijs Prijs op aanvraag
Aangeboden 11 maanden geleden
Status Verkocht
Aanvaarding In overleg

Bekijk alle kenmerken...

Interesse?

Vraag een bezichtiging aan

Bekijk de omgeving

Ontdek de ligging van deze woning

Alle kenmerken

Bouw

Bouwvorm Bestaande bouw
Bouwjaar 1925
Onderhoud (binnen) Goed
Onderhoud (buiten) Goed
Dak Zadeldak
Dak materialen Pannen

Energie

Energielabel G
Einddatum 2026-11-10
Isolatie Muurisolatie, Dubbel glas, Gedeeltelijk dubbel glas
Verwarming CV-ketel, Gaskachels
Warm water CV-ketel
C.V.-ketel Remeha Avanta Gas gestookte combiketel uit 2018 huur

Oppervlakken en inhoud

Perceeloppervlakte 120 m²
Woonoppervlakte 95 m²
Overige ruimten 4 m²
Inhoud 349 m³
Oppervlakte externe bergruimte 6 m²
Gebouwgebonden buitenruimte 4 m²

Buitenruimte

Ligging Aan rustige weg, In woonwijk, Beschutte ligging
Tuin Achtertuin, Voortuin (VERZORGD)
Tuin oppervlakte 50 m²
Achtertuin 25 m² (10m diep en 2.5m breed)
Ligging Gelegen op WEST (bereikbaar via achterom)
Parkeren Openbaar parkeren

Bestemming

Huidig gebruik Woonruimte
Huidige bestemming Woonruimte
Permanente bewoning Ja

Indeling

Woonlagen 3 woonlagen
Kamers 4 kamers, waarvan 3 slaapkamers
Voorzieningen Mechanische ventilatie, TV-kabel, Buitenzonwering, Rookkanaal, Dakraam, Glasvezelkabel

Kadaster LEEUWARDEN F 3924

Oppervlakte 120 m²
Omvang Geheel perceel

Garage

Garage soort Geen garage

Vergelijkbaar in de buurt

...