Menu
Provincialeweg 47 Doezum - Hoofdafbeelding.jpg
C

Tonen op kaart

Verkocht: Provincialeweg 47, Doezum

Doezum Provincialeweg 47

155 m² woonoppervlakte

1.895 m² perceeloppervlakte

5 kamers, waarvan 4 slaapkamers

Verkocht

Geïnteresseerd in dit object?

Vraag eenvoudig een bezichtiging aan!

Interesse in woning

Omschrijving

Landelijk, levensloopbestendig wonen in de dorpskom met vanuit de tuin een prachtig weids uitzicht over de achtergelegen weilanden? Deze aantrekkelijke combinatie vindt u bij deze levensloopbestendige vrijstaande woning met vrijstaande stenen en houten berging.

Dit prachtige geheel staat ook nog eens op een zeer ruim perceel van maar liefst 1.895 m² aan eigen grond!

Deze goed onderhouden woning beschikt met twee slaapkamers en een badkamer over veel leefruimte op de begane grond. Het is gebouwd is 1981, geïsoleerd naar de normen van het bouwjaar en wordt verwarmd door een HR combiketel van Nefit.

De indeling van deze woning is als volgt:
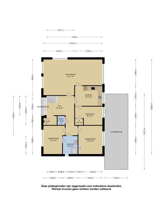
Voorentree, een ruime betegelde hal met vide, meterkast, toilet met wandcloset en fontein en trapopgang, de lichte woonkamer van ca. 34 m² met een fraai uitzicht op de royale tuin en een landelijk uitzicht over de landerijen, keuken met een nette keukenopstelling voorzien van inbouwapparatuur, bijkeuken met witgoedaansluitingen, kastruimte en achterentree, twee slaapkamers van ca. 10 en 13 m² en de tussen gelegen badkamer met douche en wasmeubel.

Eerste verdieping:
Overloop met inloopkast voorzien van de cv-opstelling en aangrenzend twee grote slaapkamers van 19 en 22 m². Deze slaapkamers zijn voorzien van veel bergruimte achter de knieschotten.

Aan de zijkant van het perceel, achter het woonhuis staat de in spouw gemetselde garage van 26 m². Deze is voorzien van een elektrische sectionaaldeur en zolderruimte.

Achter de garage staat de houten berging van 15 m² met een betonnen vloer, elektra en zolderruimte.

Aan de achterzijde is een grote overkapping gebouwd. Vanuit hier heeft u een prachtig uitzicht over de tuin en kunt u altijd droog bij de garage komen. De voor- en achtertuin zijn onderhoudsvriendelijk ingericht met fraaie beplantingen, een groot gazon en enkele fruitbomen.

De bestrate oprit biedt ruim voldoende parkeergelegenheid op eigen terrein.

Deze royale woning is gelegen aan de doorgaande weg in Doezum, een actief dorp in de gemeente Het Westerkwartier. Op korte afstand zijn een basisschool, openbaar vervoer, sportaccommodatie en een open lucht zwembad aanwezig. Voor een uitgebreid winkelaanbod kunt u onder andere terecht in het aangelegen dorp Grootegast. De snelweg A7 (Groningen-Drachten-Heerenveen) is binnen 10 autominuten bereikbaar.

Is uw interesse voor deze prachtige locatie gewekt? Maak dan een afspraak voor een bezichtiging om uw indruk compleet te maken. Wij leiden u graag rond aan de Provincialeweg 47 te Doezum.

Kenmerken

Soort Eengezinswoning, Vrijstaande woning
Vraagprijs Prijs op aanvraag
Aangeboden 4 jaar geleden
Status Verkocht
Aanvaarding In overleg

Bekijk alle kenmerken...

Interesse?

Vraag een bezichtiging aan

Bekijk de omgeving

Ontdek de ligging van deze woning

Alle kenmerken

Bouw

Bouwvorm Bestaande bouw
Bouwjaar 1981
Onderhoud (binnen) Goed
Onderhoud (buiten) Goed
Dak Zadeldak
Dak materialen Pannen

Energie

Energielabel C
Einddatum 2031-06-01
Isolatie Dakisolatie, Muurisolatie, Dubbel glas
Verwarming CV-ketel
Warm water CV-ketel
C.V.-ketel HR Nefit (bouwjaar indicatief) Gas gestookte combiketel uit 2007 eigendom

Garage

Garage soort Vrijstaand (steen)
Voorzieningen Elektra, Vliering, Elektrische deur
Isolatie Geen isolatie
Oppervlakte 26 m² (5.9m diep en 4.4m breed)
Capaciteit 1 auto(s)
Aantal 1

Oppervlakken en inhoud

Perceeloppervlakte 1.895 m²
Woonoppervlakte 155 m²
Inhoud 600 m³
Oppervlakte externe bergruimte 50 m²
Gebouwgebonden buitenruimte 34 m²

Indeling

Woonlagen 2 woonlagen
Kamers 5 kamers, waarvan 4 slaapkamers
Badkamers 1 badkamer(s) en 1 aparte toilet(ten)
Badkamervoorzieningen Douche, Wastafelmeubel
Voorzieningen TV-kabel, Buitenzonwering

Buitenruimte

Ligging Aan drukke weg, Vrij uitzicht, Open ligging, Landelijk gelegen
Tuin Tuin rondom (VERZORGD)
Tuin oppervlakte 1.695 m²
Ligging Gelegen op (bereikbaar via achterom)
Parkeren Openbaar parkeren, Op eigen terrein

Schuur / berging

Schuur / berging soort Vrijstaand (hout)
Voorzieningen Voorzien van elektra
Isolatie Geen isolatie
Aantal 1

Bestemming

Huidig gebruik Woonruimte
Huidige bestemming Woonruimte
Permanente bewoning Ja

Kadaster GROOTEGAST H 1889

Oppervlakte 1.895 m²
Omvang Geheel perceel

Vergelijkbaar in de buurt

...