Menu
Reidpole 3 Harkema - Hoofdafbeelding.jpg
A

Tonen op kaart

Brochure

Verkocht: Reidpole 3, Harkema

Harkema Reidpole 3

96 m² woonoppervlakte

600 m² perceeloppervlakte

4 kamers, waarvan 3 slaapkamers

Verkocht

Geïnteresseerd in dit object?

Vraag eenvoudig een bezichtiging aan!

Interesse in woning

Omschrijving

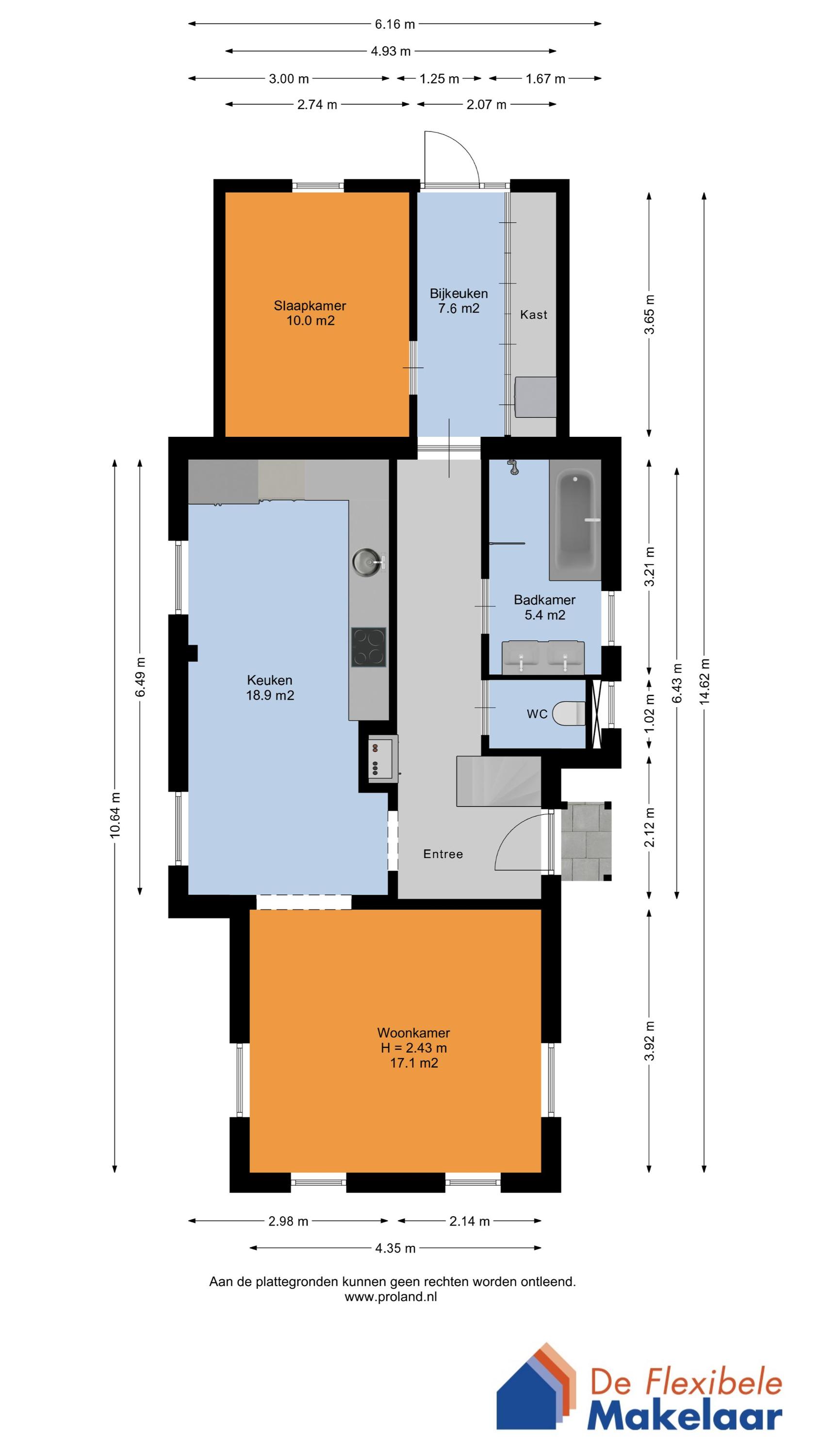
In deze vrijstaande en levensloopbestendige woning geniet je van alle gelijkvloers comfort, ruimte en rust. Het geheel is namelijk gelegen op een ruim perceel van ca. 600m², aan een soort van hofje en met de goed onderhouden staat biedt deze woning een ware heerlijkheid om instapklaar en toekomstbestendig te wonen. Dankzij de uitbouw in 2019 met een extra slaapkamer en badkamer op de begane grond is de woning volledig gelijkvloers bewoonbaar.

Binnen ervaar je een moderne en sfeervolle afwerking. De begane grond is voorzien van een strakke pvc-vloer met vloerverwarming en een stijlvolle keuken uit 2019, compleet met inbouwapparatuur en ruimte voor een grote eettafel, bovendien is ook de badkamer in 2019 vernieuwd.

Duurzaamheid staat hier centraal. Met het donkergroene energielabel A, volledige isolatie, isolatieglas en 12 zonnepanelen van ieder 405Wp uit 2023 is de woning niet alleen energiezuinig maar ook toekomstbestendig. Het schilderwerk aan de buitenzijde is in 2023 uitgevoerd en de waterontharder zorgt voor nog meer gemak.

Indeling:
Zijentree, hal met trapopgang naar de verdieping, toilet, woonkamer van ca. 17m² en aangrenzend een keuken met een moderne en complete inbouwkeuken (2019) met inbouwapparatuur, tweepersoonsslaapkamer van ca 10m², complete badkamer (2019) met ligbad, douche, meubel met dubbele vaste wastafel, spiegelkast en een designradiator, bijkeuken met vaste kastenwand en achter entree.

Eerste etage:
Overloop met kastruimte, een slaapkamer aan de voorzijde van ca. 10m² en een slaapkamer met vaste kast van ca. 7m² aan de achterzijde.

Buiten is het volop genieten in de zonnige en onderhoudsvriendelijke tuin op het zuidwesten. In 2023 is hier een multifunctioneel bijgebouw geplaatst met een berging en een gezellige entertainmentruimte met bar. De wand kan verwijderd worden zodat het geheel ook weer als grote garage kan dienen. De terrasoverkapping aan de zijkant biedt een heerlijke plek om het hele jaar door buiten te ontspannen. De lange oprit aan de voorzijde, afsluitbaar met een poort, biedt ruime parkeergelegenheid op eigen terrein.

Harkema beschikt over diverse voorzieningen, zoals basisscholen, winkels en sportaccommodaties. Daarnaast ligt de woning op korte afstand van uitvalswegen richting Leeuwarden, Drachten en de A7 (Groningen-Heerenveen). Op korte afstand ligt ook Surhuisterveen, een dorp met een uitgebreid aanbod aan faciliteiten zoals vier grote supermarkten, veel bedrijvigheid, een groot openluchtzwembadcomplex, levendige horeca en een multifunctioneel centrum met onder andere een bibliotheek en ontmoetingsplekken.

Ben je op zoek naar een instapklare, energiezuinige, levensloopbestendige woning met alle voorzieningen binnen handbereik? Maak dan snel een afspraak met onze flexibele makelaars en ontdek zelf het ultieme comfort dat deze prachtige vrijstaande woning aan Reidpole 3 te Harkema te bieden heeft!

Kenmerken

Soort Eengezinswoning, Vrijstaande woning
Vraagprijs Prijs op aanvraag
Aangeboden 11 maanden geleden
Status Verkocht
Aanvaarding In overleg

Bekijk alle kenmerken...

Interesse?

Vraag een bezichtiging aan

Bekijk de omgeving

Ontdek de ligging van deze woning

Alle kenmerken

Bouw

Bouwvorm Bestaande bouw
Bouwjaar 1995
Bouwjaar omschrijving Vanaf 2019 keurig verbouwd
Onderhoud (binnen) Uitstekend
Toelichting Goed onderhouden
Onderhoud (buiten) Goed tot uitstekend
Toelichting Goed onderhouden
Dak Samengesteld dak
Dak materialen Pannen, Bitumineuze dakbedekking
Dak toelichting kap en deels plat dak

Energie

Energielabel A
Einddatum 2035-03-17
Isolatie Dakisolatie, Muurisolatie, Vloerisolatie, Dubbel glas, HR-glas
Verwarming CV-ketel, Vloerverwarming (gedeeltelijk)
Warm water CV-ketel
C.V.-ketel Intergas c.v. combiketel Gas gestookte combiketel uit 2011 eigendom

Buitenruimte

Ligging Aan rustige weg, In woonwijk
Tuin Tuin rondom (FRAAI_AANGELEGD)
Tuin oppervlakte 500 m²
Ligging Gelegen op (bereikbaar via achterom)
Parkeren Openbaar parkeren, Op eigen terrein, Op afgesloten terrein
Parkeren Er is voldoende parkeergelegenheid op de lange eigen oprit

Oppervlakken en inhoud

Perceeloppervlakte 600 m²
Woonoppervlakte 96 m²
Inhoud 295 m³
Oppervlakte externe bergruimte 25 m²
Gebouwgebonden buitenruimte 1 m²

Indeling

Woonlagen 2 woonlagen
Kamers 4 kamers, waarvan 3 slaapkamers
Badkamers 1 badkamer(s) en 1 aparte toilet(ten)
Badkamervoorzieningen Ligbad, Douche, Dubbele wastafel, Wastafel, Wastafelmeubel, Inloopdouche, Vloerverwarming
Voorzieningen Mechanische ventilatie, TV-kabel, Dakraam, Zonnepanelen, Natuurlijke ventilatie

Garage

Garage soort Vrijstaand (hout), Garage mogelijk, Parkeerplaats
Voorzieningen Elektra, Water, Vliering
Oppervlakte 25 m² (6.75m diep en 3.77m breed)
Capaciteit 1 auto(s)
Aantal 1

Bestemming

Huidig gebruik Woonruimte
Huidige bestemming Woonruimte
Permanente bewoning Ja

Schuur / berging

Schuur / berging soort Vrijstaand (hout)
Voorzieningen Voorzien van elektra
Aantal 1

Kadaster SURHUIZUM C 5673

Oppervlakte 600 m²
Omvang Geheel perceel

Vergelijkbaar in de buurt

...