Menu
Spekloane 20 Boelenslaan - Hoofdafbeelding.jpg
C

Tonen op kaart

Brochure

Verkocht: Spekloane 20, Boelenslaan

Boelenslaan Spekloane 20

103 m² woonoppervlakte

600 m² perceeloppervlakte

5 kamers, waarvan 4 slaapkamers

Verkocht

Geïnteresseerd in dit object?

Vraag eenvoudig een bezichtiging aan!

Interesse in woning

Omschrijving

Deze compleet gerenoveerde en uitgebouwde vrijstaande woning, met vrijstaande houten garage met veranda staat op een ruim en diep perceel van ca. 600 m² en is om door een spreekwoordelijk "ringetje" te halen. De woning is van top-tot-teen geheel aangepakt.

Dit keurige geheel is gelegen in een ruim opgezette, rustige en kindvriendelijke woonbuurt. De diepe achtertuin is voorzien van veel privacy en aan de voorzijde kent de woning vrijwel geen inkijk van overburen.

Het meest opvallende bij deze woning is wellicht de lichtovergoten en ruime woonkamer en keuken. De woonkamer en de aanbouw zijn voorzien van zeer veel glasoppervlak en in de ruime aanbouw zijn zowel glazen, openslaande tuindeuren alsmede een groot dakraam (met elektrische zonwering) geplaatst.

Door de uitbouw is de woning op de begane grond dermate uitgebreid dat er vrij eenvoudig een slaapkamer op de begane grond gerealiseerd kan worden. De badkamer is al reeds aanwezig op de begane grond.

Overal is aan gedacht en alles is (anders dan dat het bouwjaar en het energielabel doen vermoeden), optimaal geïsoleerd. Zo is de woning voorzien van HR++ beglazing, is er spouwisolatie toegepast, is de vloer geïsoleerd, is het dak geïsoleerd én zijn de plafonds nageïsoleerd.

Tussen 2013 en 2019 is alles grondig aangepakt. Zo zijn o.a. de volgende zaken zijn vernieuwd/aangepakt:
- Dak-, muur-, vloer- en plafondisolatie;
- Nieuw dak;
- Nieuwe kozijnen;
- Nieuwe dakplaten op de garage;
- Riolering (dubbel aangebracht);
- Meterkast met krachtstroom;
- Aanbouw bij woning;
- Voegwerk;
- Nieuwe goten rondom de woning;
- Nieuwe keuken + inbouwapparatuur;
- Nieuw plat dak;
- Voordeur en andere deuren (deels);
- Betonvloer beneden;
- Vloerverwarming (deels) beneden;
- Nieuwe toiletruimte benden;
- Nieuwe toiletruimte boven;
- Badkamer;
- Spackwerk in de gehele woning;
- Nieuwe, extra brede oprit;
- Vorstvrije buitenkraan;
- Schuttingen;
- Nieuwe kas;
- Intergas HR-combiketel.

De indeling van de woning is als volgt:

Begane grond:
Hal met zeer uitgebreide meterkast; moderne hoekkeuken met inductiekookplaat, vaatwasser, combimagnetron, wasemkap, spoelbak en inbouwkoelkast; droge en ruime kelder; zeer lichte woonkamer met uitbouw tussen keuken en woonkamer. De uitbouw is voorzien van dubbele openslaande tuindeuren en een groot dakraam met elektrische zonnewering. In de bijkeuken is de Intergas c.v.-combiketel (2014) geplaatst; toiletruimte met wandcloset; badkamer met dubbele wastafel en wastafelmeubels en een inloopdouche met regendouche.

1e etage:
Overloop; seperate toiletruimte met wandcloset en fontein; master bedroom met vaste kasten; twee eenpersoonsslaapkamers.

2e etage:
Vlizotrap naar bergzolder.

Buiten:
Keurige en brede oprit; zeer ruime tuinschuur/garage met elektra; een gezellige veranda en een overdekte carport. De noordwestgerichte achtertuin is door haar diepte en de laagbouw rondom, voorzien van vele zonnige plekjes.

Boelenslaan is een klein dorpje onder de rook van Surhuisterveen, waar vele voorzieningen te vinden zijn. Zo kent Surhuisterveen o.a. meer dan 100 winkels, 4 grote supermarkten, vele horecagelegenheden met gezellige terrassen, zwembaden en diverse culturele bezienswaardigheden.

Ook is Boelenslaan op zeer korte afstand gelegen van Drachten. Drachten heeft vrijwel alle stadsvoorzieningen en is de 3e grootste plaats van Friesland.

Bent u net zo enthousiast over deze woning als dat wij zijn en wilt u meer weten over bijvoorbeeld de mogelijkheden van een slaapkamer beneden of de staat van afwerking? Neemt u dan contact met ons op, waarna wij geheel vrijblijvend een afspraak kunnen maken. Wij zien u graag om een rondleiding te geven in deze prachtige woning aan de Spekloane 20 te Boelenslaan.

Kenmerken

Soort Eengezinswoning, Vrijstaande woning
Vraagprijs Prijs op aanvraag
Aangeboden 6 jaar geleden
Status Verkocht
Aanvaarding In overleg

Bekijk alle kenmerken...

Interesse?

Vraag een bezichtiging aan

Bekijk de omgeving

Ontdek de ligging van deze woning

Alle kenmerken

Bouw

Bouwvorm Bestaande bouw
Bouwjaar 1959
Bouwjaar omschrijving Tot en met 2019 geheel gerenoveerd
Onderhoud (binnen) Uitstekend
Toelichting Geheel gerenoveerd + uitgebouwd
Onderhoud (buiten) Uitstekend
Toelichting Geheel gerenoveerd + uitgebouwd
Dak Zadeldak
Dak materialen Pannen, Bitumineuze dakbedekking
Dak toelichting Dak van garage is vervangen voor niet asbesthoudende platen

Energie

Energielabel C
Einddatum 2029-09-18
Isolatie Dakisolatie, Muurisolatie, Vloerisolatie, Dubbel glas, Volledig geïsoleerd, HR-glas
Verwarming CV-ketel
Warm water CV-ketel
C.V.-ketel Intergas HR Gas gestookte combiketel uit 2014 eigendom

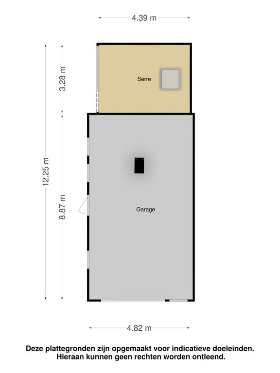
Garage

Garage soort Vrijstaand (hout)
Voorzieningen Elektra, Vliering
Isolatie Geen isolatie
Oppervlakte 43 m² (8.88m diep en 4.82m breed)
Capaciteit 1 auto(s)
Aantal 1

Indeling

Woonlagen 4 woonlagen
Kamers 5 kamers, waarvan 4 slaapkamers
Badkamers 1 badkamer(s) en 2 aparte toilet(ten)
Badkamervoorzieningen Dubbele wastafel, Wastafelmeubel, Inloopdouche
Voorzieningen TV-kabel, Buitenzonwering, Dakraam, Natuurlijke ventilatie

Buitenruimte

Ligging Aan rustige weg, In woonwijk
Tuin Achtertuin (NORMAAL)
Tuin oppervlakte 600 m²
Achtertuin 320 m² (20m diep en 16m breed)
Ligging Gelegen op NOORD (bereikbaar via achterom)

Oppervlakken en inhoud

Perceeloppervlakte 600 m²
Woonoppervlakte 103 m²
Inhoud 377 m³
Oppervlakte externe bergruimte 59 m²

Schuur / berging

Schuur / berging soort Vrijstaand (hout)
Voorzieningen Voorzien van elektra
Isolatie Geen isolatie
Aantal 1

Bestemming

Huidig gebruik Woonruimte
Huidige bestemming Woonruimte
Permanente bewoning Ja

Kadaster SUHUIZUM B 5061

Oppervlakte 600 m²
Omvang Geheel perceel

Vergelijkbaar in de buurt

...