Menu
Spekloane 37 Boelenslaan - Hoofdafbeelding.jpg
A+++

Tonen op kaart

Verkocht: Spekloane 37, Boelenslaan

Boelenslaan Spekloane 37

247 m² woonoppervlakte

11.330 m² perceeloppervlakte

7 kamers, waarvan 5 slaapkamers

Verkocht

Geïnteresseerd in dit object?

Vraag eenvoudig een bezichtiging aan!

Interesse in woning

Omschrijving

Aan de rand van Surhuisterveen (officieel Boelenslaan) staat dit prachtige ruime en comfortabele landhuis. De woning is bijna volledig energieneutraal, dus vrijwel geen stooklasten. Ook ligt dit prachtige en zeer complete geheel op meer dan een hectare grond en heeft een eigen aangelegd natuurgebied!

Levensloopbestendig, ook dat is gerealiseerd in deze woning; er is een slaapkamer en een badkamer aanwezig op de begane grond. Op de eerste etage is een tweede badkamer te vinden, evenals de overige 4 royale tweepersoonsslaapkamers die aanwezig zijn.

De woning is energiezuinig gebouwd. De woning draagt daarom ook niet voor niets het zeer zuinige A+++ energielabel. Zo is er in 2020 een gedeelte van de zonnepanelen vervangen door 14 HR-zonnepanelen welke op dit moment maar liefst 2.523 KWh terug leveren! De aardwarmtepomp is in 2019 vervangen, waardoor de woning nog energiezuiniger en comfortabeler is geworden. Tevens is de woning zeer uitgebreid geïsoleerd (dak-, muur-, vloerisolatie en HR(++)glas). Ook zijn alle inbouwspots buiten én binnen vervangen door duurzame ledlampen en daarnaast is bijna alle verlichting beneden voorzien van dimmers. Tevens is er in de woning een gebalanceerd systeem voor de ventilatie aangebracht; er is namelijk een warmte-terugwin-unit geplaatst welke 's winters eventueel naverwarmd en 's zomers nagekoeld kan worden met de warmtepomp. Op de begane grond is overal heerlijke vloerverwarming aanwezig en alle convectoren boven zijn praktische lage temperatuur convectoren welke voor zowel verwarming als koeling gebruikt kunnen worden. Zeer energiezuinig en behaaglijk dus!

De echte eyecatcher is aan de achterzijde van de woning: hier is een waar natuurgebied te vinden! Het idyllische landschap verveelt nooit en biedt iedere dag een rustgevend, vernieuwend en vooral adembenemend uitzicht. Heeft u ooit een wit hert in de achtertuin gehad? Hier is dat geen vraag, maar een feit!

De hertengroepen met een wit hert, hazen, konijnen en prachtige vogels zijn onderdeel van uw uitzicht. Ook is er een heerlijke eigen moestuin in de achtertuin aanwezig en is er heus dierenverblijf aangelegd. De visrijke vijver heeft een eigen (vis)stijger, waar u heerlijk kunt vissen en zitten!

Vakantie? Dat is hier dus niet meer nodig, in dit prachtgebied heeft u dit iedere dag! Voor de echte buitenliefhebbers is er naast het prachtige uitzicht nog meer wils: er is namelijk een keurige, complete buitenkeuken aanwezig. Onder het genot van een glaasje wijn en een barbecue kan dit buitenleven nog meer gestreeld worden met een echt geluksgevoel...

Helemaal in het buitengebied en niets in de buurt? Dat zeker niet! Dit geheel is namelijk zeer centraal gelegen.
Het bruisende Surhuisterveen ligt namelijk op nog geen 4 kilometer afstand en Drachten is te vinden op circa 5 kilometer afstand. Zelfs het centrum van het bruisende Surhuisterveen en Drachten zijn daarom op nog geen 10 autominuten afstand gelegen.

Toch liever binnen genieten? Dat kan ook! Er is een luxe sauna aanwezig waarin ook de rust opgezocht kan worden. Ook is er een badkamer beneden én boven aanwezig, zodat er altijd privacy te vinden is.

Niet alleen energiezuinig, maar ook gemak dient de mens:
De woning is namelijk zeer onderhoudsarm met de grote overstekken, betonvloeren, een dubbele aangebouwde garage met alle gemakken voorzien, een vrijstaande garage, meerdere bergingen én de voorbereidingen voor lage temperatuur vloerverwarming zijn getroffen om desgewenst de oprit ijs- en sneeuwvrij te houden. De goten, hemelwaterafvoeren en zijkanten van de dakkapellen zijn overigens allemaal uitgevoerd in koper. En over gemak gesproken: de oprit is van sierbeton en daarmee dus vrij van onkruid!

Comfortabel - daar is buiten ook aan gedacht. Het dak van de overkapping is recent vernieuwd (2020) en biedt een heerlijke schaduw over de middag. Dat is ook wel nodig, want de gehele tuin rondom de woning vangt de hele dag genoeg zon!

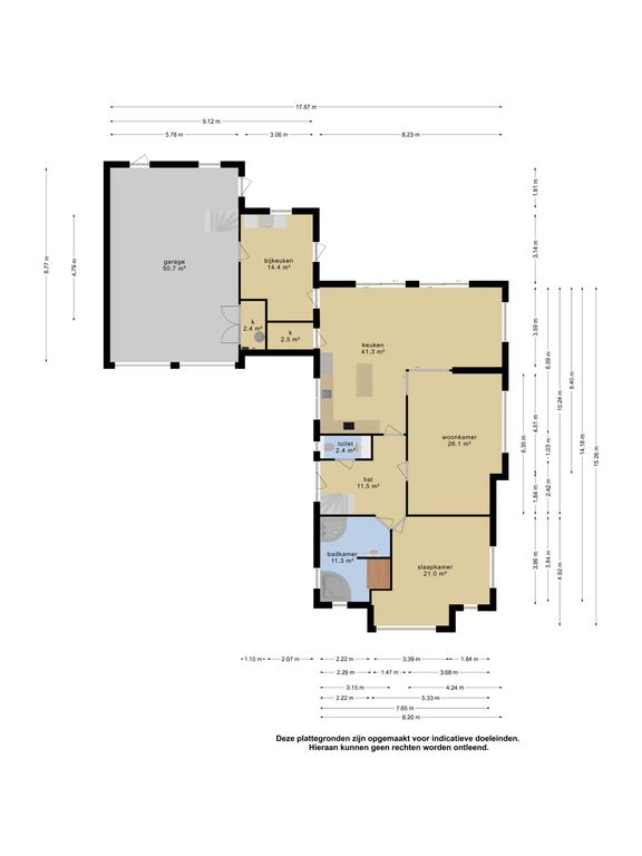
De indeling van de woning is als volgt:
Begane grond: Hal/entree; toiletruimte met wandcloset en fontein; ruime, lichte afsluitbare woonkamer; ontzettend ruime woon/leef-inbouwkeuken met nieuw aangebracht spanplafond en een eetgedeelte en een prachtig uitzicht over de landerijen; 1e slaapkamer; badkamer met bad, wellness (stoom)douche met massage en vele functionaliteiten, sauna, wastafel en wastafelmeubel, bijkeuken met witgoedaansluiting; een doorgang naar de aangebouwde, compleet geïsoleerde dubbele stenen garage met een zeer royale bergzolder én vloerverwarming. De dubbele garage is voorzien van 2 elektrische garagedeuren en een betonvloer.

Eerste etage:
Overloop; 4 ruime slaapkamers, waarvan de grootste ca. 24m² is; royale badkamer met inloopdouche, wandcloset en wastafel met wastafelmeubel.

Tweede etage:
Te bereiken met een vaste trap en voorzien van zeer veel bergruimte.

Ligging:
Boelenslaan is een heerlijk rustig, groen, centraal en landelijk gelegen dorp met alle voorzieningen op korte afstand gelegen. Boelenslaan heeft een eigen basisschool, er is een uitgebreid sportcentrum in de buurt en er zijn sportvelden aanwezig. Ook de bereikbaarheid is zeer goed, zo zijn behalve Drachten en Surhuisterveen ook de autowegen naar Leeuwarden en de verbinding naar de A7 (Groningen-Drachten-Heerenveen) gelegen op zeer korte afstand.

Drachten:
Drachten is een zeer voorzieningsrijke woonplaats met een grote verscheidenheid aan voorzieningen op het gebied van sport, basisscholen, voortgezet onderwijs instellingen en een uitgebreid winkelaanbod. Tevens heeft Drachten een eigen schouwburg, een bioscoop, een uitgebreid zwemparadijs met binnenbaden en vele horecagelegenheden. Drachten is qua omvang de nummer 2 van grootste dorpen/plaatsen van Friesland en daarom dus zeer voorzieningsrijk.

Surhuisterveen:
Het dorp Surhuisterveen is een echte publiekstrekker, is centraal gelegen aan o.a. de A7 en heeft vele voorzieningen als bijvoorbeeld een uitgebreid winkelcentrum, vier grote supermarkten, levendige horeca en een bibliotheek. Ook heeft Surhuisterveen een brede middelbare school (voortgezet onderwijs) en 3 basisscholen. Het dorp wordt door velen gezien als het stadscentrum van de regio.

Een fantastische plek om te wonen aan de Spekloane 37 te Boelenslaan. Interesse gekregen? Wij laten u graag dit geheel zien! Onze makelaars heten u van harte welkom.

Kenmerken

Soort Landhuis, Vrijstaande woning
Vraagprijs Prijs op aanvraag
Aangeboden 4 jaar geleden
Status Verkocht
Aanvaarding In overleg

Bekijk alle kenmerken...

Interesse?

Vraag een bezichtiging aan

Bekijk de omgeving

Ontdek de ligging van deze woning

Alle kenmerken

Bouw

Bouwvorm Bestaande bouw
Bouwjaar 2004
Onderhoud (binnen) Goed tot uitstekend
Toelichting Het geheel is van binnen goed onderhouden
Onderhoud (buiten) Uitstekend
Toelichting Het geheel is van buiten goed onderhouden
Dak Samengesteld dak
Dak materialen Pannen, Bitumineuze dakbedekking
Dak toelichting Dit samengestelde dak bestaat uit pannen en een bitumineuze dakbedekking

Oppervlakken en inhoud

Perceeloppervlakte 11.330 m²
Woonoppervlakte 247 m²
Overige ruimten 72 m²
Inhoud 1.124 m³
Oppervlakte externe bergruimte 48 m²
Gebouwgebonden buitenruimte 42 m²

Buitenruimte

Ligging Aan rustige weg, Vrij uitzicht, Open ligging, Buiten bebouwde kom, In bosrijke omgeving, Landelijk gelegen
Tuin Tuin rondom (VERZORGD)
Tuin oppervlakte 11.130 m²
Ligging Gelegen op
Parkeren Openbaar parkeren, Op eigen terrein
Parkeren Er is meer dan voldoende parkeergelegenheid op eigen terrein als op de oprit

Garage

Garage soort Aangebouwd (steen), Vrijstaand (steen), Parkeerplaats
Voorzieningen Verwarming, Elektra, Water, Vliering, Elektrische deur
Isolatie Dubbel glas, Volledig geïsoleerd
Oppervlakte 51 m² (8.77m diep en 5.78m breed)
Capaciteit 10 auto(s)
Aantal 3

Energie

Energielabel A+++
Einddatum 2031-12-02
Isolatie Dakisolatie, Muurisolatie, Vloerisolatie, Dubbel glas, HR-glas
Verwarming Vloerverwarming (gedeeltelijk), Warmtepomp, Warmteterugwininstallatie, Aardwarmte
Warm water Centrale voorziening, Aardwarmte

Indeling

Woonlagen 3 woonlagen
Kamers 7 kamers, waarvan 5 slaapkamers
Badkamers 2 badkamer(s) en 1 aparte toilet(ten)
Badkamervoorzieningen Toilet, Wastafel, Wastafelmeubel, Ligbad, Stoomcabine, Dubbele wastafel, Vloerverwarming, Sauna, Douches 2
Voorzieningen Buitenzonwering, Schuifpui, Glasvezelkabel, Zonnepanelen

Schuur / berging

Schuur / berging soort Vrijstaand (hout)
Voorzieningen Voorzien van elektra
Isolatie Geen isolatie
Aantal 2

Bestemming

Huidig gebruik Woonruimte
Huidige bestemming Woonruimte
Permanente bewoning Ja

Kadaster SURHUIZUM B 7320

Oppervlakte 11.330 m²
Omvang Geheel perceel

Vergelijkbaar in de buurt

...