Menu
Swarte Wyk 21 Drachtstercompagnie - Hoofdafbeelding.jpg
B

Tonen op kaart

Verkocht: Swarte Wyk 21, Drachtstercompagnie

Drachtstercompagnie Swarte Wyk 21

111 m² woonoppervlakte

311 m² perceeloppervlakte

5 kamers, waarvan 4 slaapkamers

Verkocht

Geïnteresseerd in dit object?

Vraag eenvoudig een bezichtiging aan!

Interesse in woning

Omschrijving

Op zoek naar een royale woning met grote garage èn vrij uitzicht aan de achterzijde? Lees dan snel verder, want de Swarte Wyk 21 te Drachtstercompagnie heeft dit allemaal!

Deze goed onderhouden 2-onder-1-kapwoning heeft een gebruiksoppervlakte van maar liefst ca. 187m² en heeft 3 slaapkamers op de eerste etage. Op de royale zolderverdieping is eenvoudig nog een 4e slaapkamer te realiseren. Ook is er een royale aangebouwde stenen garage aanwezig van ca. 35m² mét zolderverdieping: genoeg ruimte voor autostalling, hobbyruimte en bergruimte dus!

Naast de ruimte van binnen heeft deze woning als pluspunt de ligging: het is gelegen op een perceel van 311m² aan de rand van de woonwijk met landelijk uitzicht. Het geheel ligt op een mooi hoekperceel wat voor veel privacy en rust zorgt. Een prachtige ligging!

De woning is gerealiseerd in 1993, is geheel geïsoleerd naar de normen van het bouwjaar, voorzien van isolatieglas en centraal verwarmd met behulp van radiatoren, de Vaillant VHR combiketel is van 2004.

De indeling is als volgt:
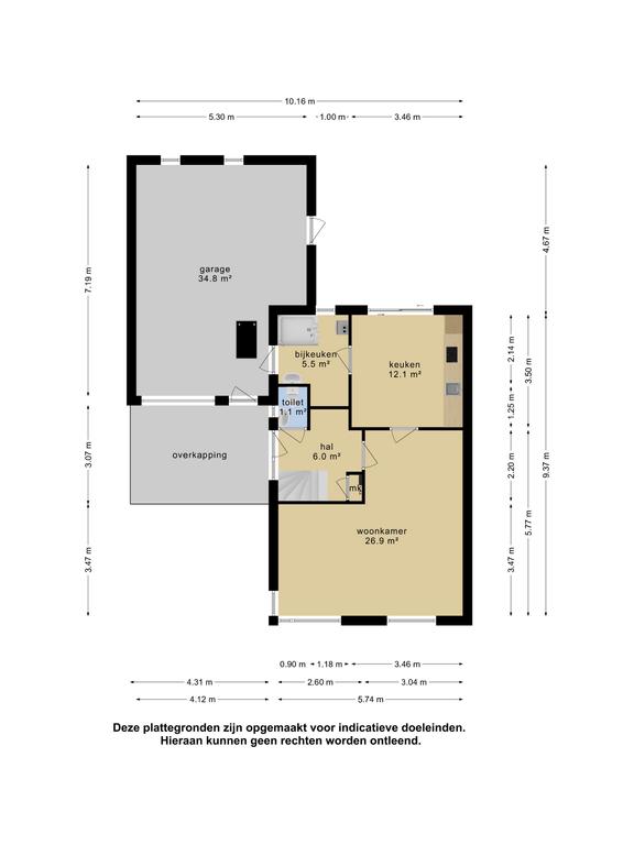
Overdekte entree, hal met garderobe, toiletruimte met fonteintje, royale lichte woonkamer van ca. 27m², de woonkeuken is voorzien van een inbouwkeuken met inbouwapparatuur (gaskookplaat, afzuigkap, koelkast en spoelbak), de schuifpui geeft toegang naar de keurig onderhouden tuin met het vrije uitzicht, bijkeuken met witgoed aansluitingen, plavuizenvloer, c.v. opstelling en doorgang naar de royale aangebouwde stenen garage mét zolderberging. Deze garage is aan de voorzijde voorzien van een overkapping, een kanteldeur en ernaast een loopdeur.

Eerste etage:
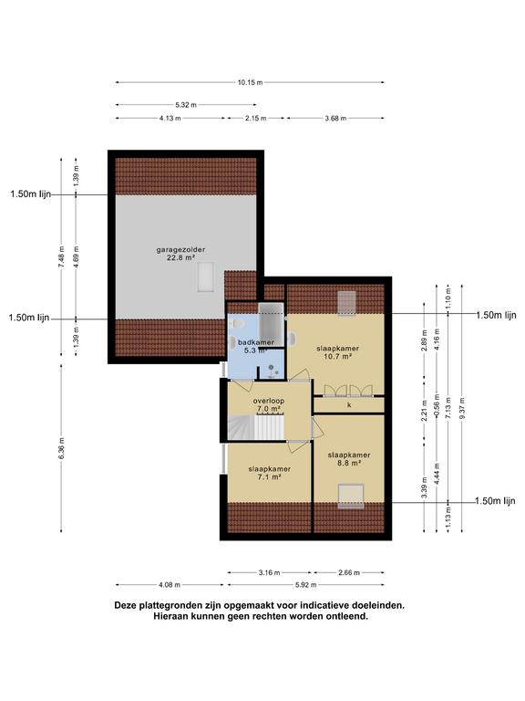
Overloop, 3 royale slaapkamers waarvan de ouderslaapkamer van ca. 11m² met dakraam en vaste wastafel, badkamer met (inloop)douche, ligbad, toilet en een vaste wastafel.

Tweede etage:
Vaste trap naar de 2e verdieping naar een grote open ruimte met de mogelijkheid om een extra slaapkamer te realiseren.

Verzorgde voor- en achtertuin, de achtertuin is voorzien van zonneterras, gazon en heeft een achterom.

Bovendien is er voldoende parkeergelegenheid op de eigen oprit.

De woning is gesitueerd in een plezierige woonwijk in het dorp Drachtstercompagnie, een actief dorp met een multifunctioneel centrum met basisonderwijs, sportvoorzieningen en ontmoetingsruimten. Uitgebreidere voorzieningen vindt u vlakbij in Drachten (10-15 minuten) en in Surhuisterveen (10 minuten) en in zo’n tien minuten zit u ook op de A7.

Net zo enthousiast als onze Flexibele Makelaars over deze fantastische woning? Vis niet achter het net en neem snel contact op voor een bezichtigingsafspraak. We laten u het geheel graag zien!

Kenmerken

Soort Eengezinswoning, Twee-onder-een-kapwoning
Vraagprijs Prijs op aanvraag
Aangeboden 3 jaar geleden
Status Verkocht
Aanvaarding In overleg

Bekijk alle kenmerken...

Interesse?

Vraag een bezichtiging aan

Bekijk de omgeving

Ontdek de ligging van deze woning

Alle kenmerken

Bouw

Bouwvorm Bestaande bouw
Bouwjaar 1993
Bouwjaar omschrijving Gerealiseerd in 1993
Onderhoud (binnen) Goed
Toelichting Het geheel is van binnen goed onderhouden
Onderhoud (buiten) Goed
Toelichting Het geheel is van buiten goed onderhouden
Dak Samengesteld dak
Dak materialen Pannen, Bitumineuze dakbedekking
Dak toelichting Dit samengestelde dak bestaat uit pannendak en plat dak met bitumineuze dakbedekking

Buitenruimte

Ligging Aan rustige weg, In woonwijk, Vrij uitzicht
Tuin Achtertuin, Voortuin, Zijtuin (VERZORGD)
Tuin oppervlakte 200 m²
Achtertuin 118 m² (9.85m diep en 12m breed)
Ligging Gelegen op NOORDWEST (bereikbaar via achterom)
Parkeren Openbaar parkeren, Op eigen terrein
Parkeren Er is meer dan voldoende parkeergelegenheid op eigen terrein als aan straat.

Energie

Energielabel B
Einddatum 2033-01-19
Isolatie Dakisolatie, Muurisolatie, Vloerisolatie, Dubbel glas
Verwarming CV-ketel
Warm water CV-ketel
C.V.-ketel Vaillant VHR 24-28 Gas gestookte combiketel uit 2004 eigendom

Oppervlakken en inhoud

Perceeloppervlakte 311 m²
Woonoppervlakte 111 m²
Overige ruimten 58 m²
Inhoud 608 m³
Gebouwgebonden buitenruimte 13 m²

Indeling

Woonlagen 3 woonlagen
Kamers 5 kamers, waarvan 4 slaapkamers
Badkamers 1 badkamer(s) en 1 aparte toilet(ten)
Badkamervoorzieningen Ligbad, Zitbad, Toilet, Douche, Wastafel, Inloopdouche
Voorzieningen TV-kabel, Schuifpui, Dakraam, Natuurlijke ventilatie

Garage

Garage soort Aangebouwd (steen)
Voorzieningen Elektra, Vliering
Oppervlakte 35 m² (7.19m diep en 5.3m breed)
Capaciteit 1 auto(s)
Aantal 1

Bestemming

Huidig gebruik Woonruimte
Huidige bestemming Woonruimte
Permanente bewoning Ja

Kadaster DRACHTEN B 6654

Oppervlakte 311 m²
Omvang Geheel perceel

Vergelijkbaar in de buurt

...