Menu
Taeke Schuilengalaan 18 Surhuisterveen - Hoofdafbeelding.jpg
A+++

Tonen op kaart

Brochure

Beschikbaar: Taeke Schuilengalaan 18, Surhuisterveen

Surhuisterveen Taeke Schuilengalaan 18

97 m² woonoppervlakte

334 m² perceeloppervlakte

4 kamers, waarvan 3 slaapkamers

Instapklaar, strak afgewerkt en een enorme garage met verdieping

€ 395.000

k.k.

Beschikbaar

Geïnteresseerd in dit object?

Vraag eenvoudig een bezichtiging aan!

Interesse in woning

Omschrijving

Deze instapklare halfvrijstaande (2/1 kap) woning is modern afgewerkt, energiezuinig én met een absolute bonus voor de liefhebber van ruimte, een royale vrijstaande garage van ca. 55 m². Dit alles op een perceel van 334 m² eigen grond.

Liever vóór deze datum bezichtigen of de woning al kopen vóór de NVM Open Huizendag? Vaak is dat gewoon mogelijk. Neem gerust contact op met onze flexibele makelaars om jouw favoriete woning eerder te bekijken of de mogelijkheden te bespreken.

Ook ben je deze dag van harte welkom op ons kantoor in Grootegast en Surhuisterveen. Onze makelaars staan daar klaar om je vragen te beantwoorden en je verder te helpen.

De woning is oorspronkelijk gebouwd in eerdere jaren, maar is in de periode 2016 tot 2020 grondig gerenoveerd en gemoderniseerd. Daarbij is serieus ingezet op comfort en duurzaamheid: de woning is voorzien van gevel-, muur- en dakisolatie, kunststof kozijnen met HR++ glas en dat zie je terug in het uitstekende energielabel A+++.

Binnen woon je heerlijk comfortabel. De begane grond is vrijwel geheel voorzien van vloerverwarming en op de verdieping zijn radiatoren geplaatst. Daarnaast zijn er Haier airco-units aanwezig (begane grond én verdieping) uit 2020 en 2024. Verwarmen en verduurzamen doe je hier slim met een Atag warmtepomp (2021) en op het dak liggen 20 zonnepanelen (2021) van 320 Wp per stuk.

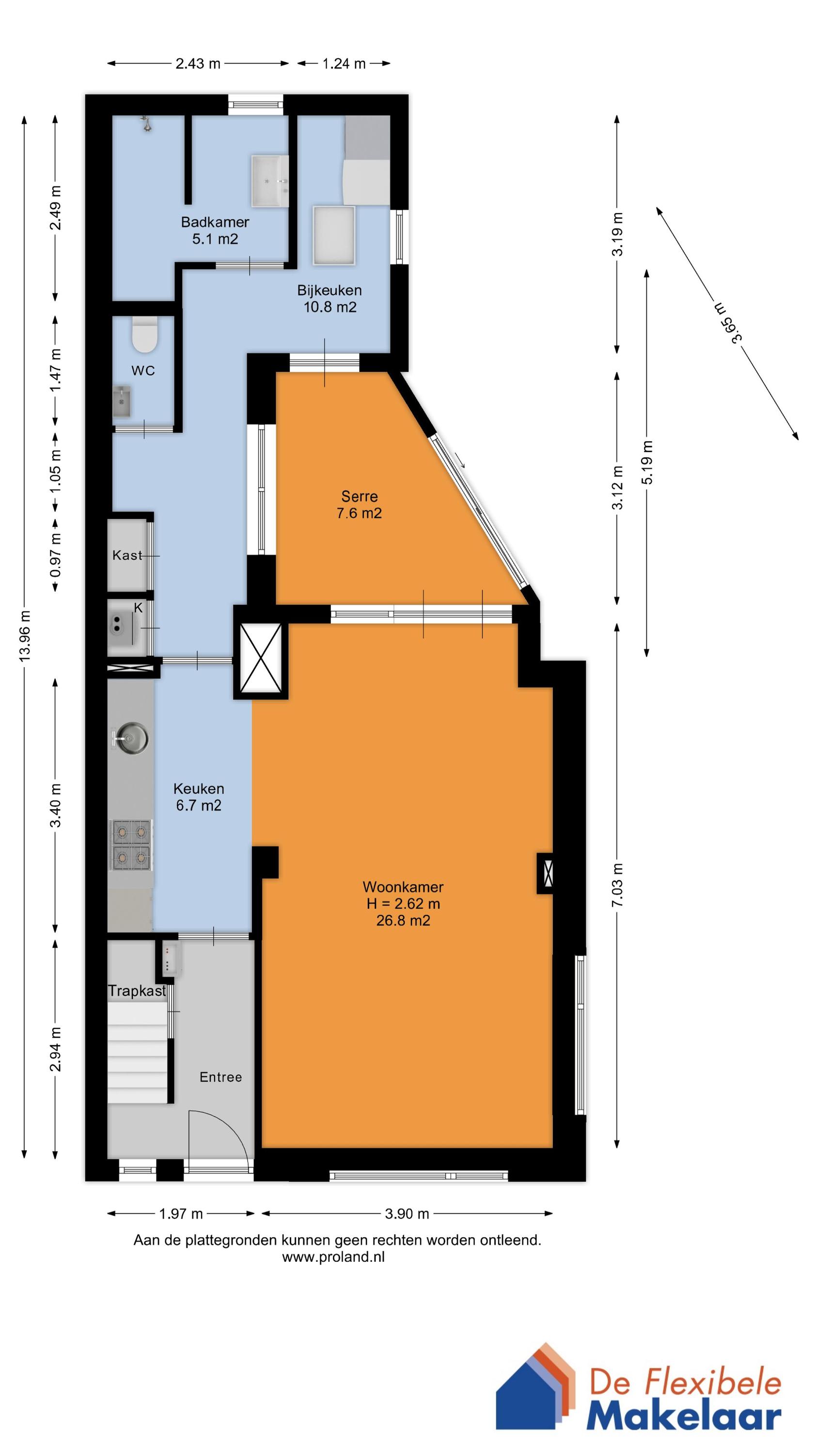
Indeling
Begane grond: voorentree, hal met trapkast, woonkamer met openslaande deuren naar de serre, keuken met moderne en complete inbouwkeuken voorzien van inbouwapparatuur, hal met achterentree, toilet met fonteintje, badkamer (2020) met inloopdouche en wastafelmeubel.
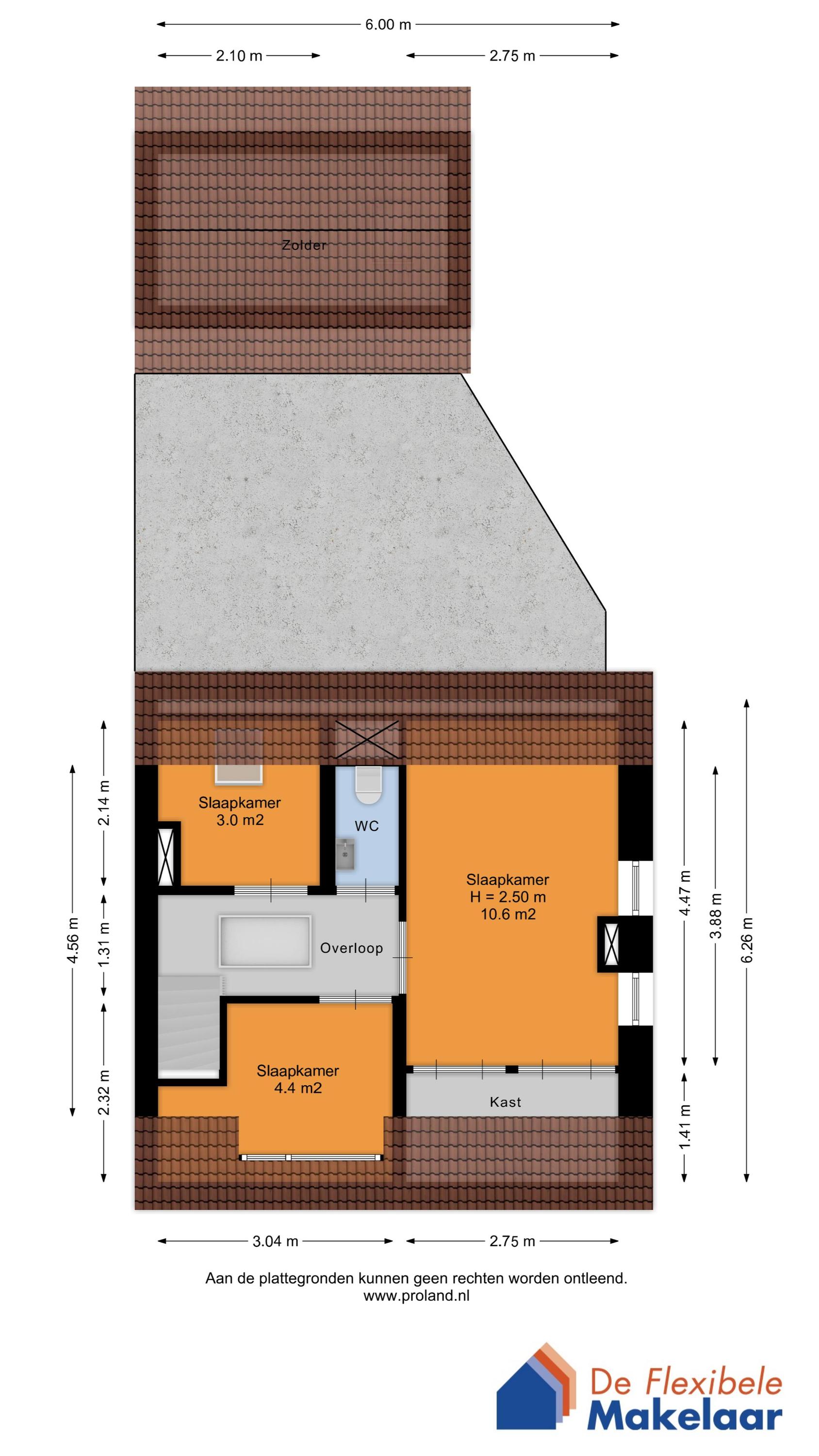
Eerste etage: overloop, toilet met fonteintje, drie slaapkamers waarvan de grote slaapkamer is voorzien van een vaste kastenwand.
Tweede etage: zolderberging.

Garage om van te dromen
De in 2020 gerealiseerde garage is degelijk gebouwd, royaal van formaat (ca. 10 x 5,5 meter). Ideaal voor wie ruimte nodig heeft. Denk aan autostalling, werkplaats of een hobby die net wat meer vierkante meters vraagt. De garage beschikt over een betonvloer met vloerverwarming en een extra berging op de verdieping, bereikbaar via een vaste trap. Extra prettig: de vloerverwarming in de garage is aangesloten op een eigen cv-ketel ,tevens is er een toiletaansluiting aangebracht.

Buitenruimte
De woning heeft een diepe voor- en achtertuin en een lange oprit naast de woning met volop parkeergelegenheid. De achtertuin ligt op het zuidoosten, biedt veel privacy en is ingericht met terras en gazon: een fijne plek om in alle rust van de zon te genieten.

Wonen in Surhuisterveen
De woning ligt in een keurige woonwijk, op korte afstand van het gezellige winkelcentrum. Surhuisterveen is een geliefde woonplaats met een hoog voorzieningenniveau: (basis)scholen, sportaccommodaties en openbaar vervoer zijn op loopafstand aanwezig. Bovendien ben je zó onderweg richting Drachten, de A7 (Groningen–Heerenveen) en Leeuwarden.

Spoedige aanvaarding is mogelijk. Maak snel een afspraak voor een bezichtiging en ontdek zelf het comfort, de afwerking én die indrukwekkende garage van deze woning aan de Taeke Schuilengalaan 18 te Surhuisterveen!

Kenmerken

Soort Eengezinswoning, Twee-onder-een-kapwoning
Vraagprijs 395.000 k.k.
Aangeboden 3 maanden geleden
Status Beschikbaar
Aanvaarding In overleg

Bekijk alle kenmerken...

Verkoper aan het woord

- Behulpzame buren 
- Modern huis met veel opties 
– Klaar voor de toekomst 
- Garage met vloerverwarming en mogelijkheid voor een wc/badkamer is aanwezig

Interesse?

Vraag een bezichtiging aan

Bekijk de omgeving

Ontdek de ligging van deze woning

Alle kenmerken

Bouw

Bouwvorm Bestaande bouw
Bouwjaar 1955
Onderhoud (binnen) Goed tot uitstekend
Toelichting Goed tot uitstekend onderhouden
Onderhoud (buiten) Goed tot uitstekend
Toelichting Goed tot uitstekend onderhouden
Dak Samengesteld dak
Dak materialen Pannen, Bitumineuze dakbedekking
Dak toelichting Kap met pannen en deels plat dak met bitumineuze dakbedekking

Buitenruimte

Ligging In woonwijk
Tuin Achtertuin, Voortuin, Zijtuin (Normaal)
Tuin oppervlakte 200 m²
Achtertuin 55 m² (13m diep en 4.25m breed)
Ligging Gelegen op ZUIDOOST (bereikbaar via achterom)
Parkeren Openbaar parkeren, Op eigen terrein
Parkeren Voldoende parkeergelegenheid op de eigen oprit en langs de straat

Garage

Garage soort Vrijstaand (steen)
Voorzieningen Elektra, Vliering, Elektrische deur
Isolatie Volledig geïsoleerd
Oppervlakte 54 m² (9.94m diep en 5.45m breed)
Capaciteit 1 auto(s)
Aantal 1

Energie

Energielabel A+++
Einddatum 2035-06-16
Isolatie Dakisolatie, Muurisolatie, Vloerisolatie, Dubbel glas, Volledig geïsoleerd
Verwarming Vloerverwarming (gedeeltelijk), Warmtepomp
Warm water Centrale voorziening

Indeling

Woonlagen 3 woonlagen
Kamers 4 kamers, waarvan 3 slaapkamers
Badkamers 1 badkamer(s) en 2 aparte toilet(ten)
Badkamervoorzieningen Douche, Wastafel, Wastafelmeubel, Inloopdouche
Voorzieningen Mechanische ventilatie, TV-kabel, Airconditioning, Schuifpui, Dakraam, Glasvezelkabel, Zonnepanelen

Oppervlakken en inhoud

Perceeloppervlakte 334 m²
Woonoppervlakte 97 m²
Inhoud 405 m³
Oppervlakte externe bergruimte 70 m²

Bestemming

Huidig gebruik Woonruimte
Huidige bestemming Woonruimte
Permanente bewoning Ja

Schuur / berging

Schuur / berging soort Inpandig
Aantal 1

Kadaster SURHUIZUM B 5114

Oppervlakte 334 m²
Omvang Geheel perceel

Vergelijkbaar in de buurt

...