Menu
Tsjerk Hiddesstrjitte 3 Kootstertille - Hoofdafbeelding.jpg
A

Tonen op kaart

Verkocht: Tsjerk Hiddesstrjitte 3, Kootstertille

Kootstertille Tsjerk Hiddesstrjitte 3

93 m² woonoppervlakte

243 m² perceeloppervlakte

4 kamers, waarvan 3 slaapkamers

Verkocht
Referentie door verkoper: "Alles verliep super, - Alles vanaf het begin al goed voorbereid. - Werd over alles goed ingelicht. - Allemaal super vriendelijk. Zeker aan te raden!"
Geschreven op 22-01-2026

Deskundigheid10

Prijs/kwaliteit10

Marktkennis10

Service10

Meer reviews bekijken op Funda

Geïnteresseerd in dit object?

Vraag eenvoudig een bezichtiging aan!

Interesse in woning

Omschrijving

Instapklaar, energielabel A en een gigantische tuin? Tsjerk Hiddesstrjitte 3 in Kootstertille staat te koop bij onze flexibele makelaars! Dit is zo'n huis waar je alleen nog maar hoeft te verhuizen. Deze royale tussenwoning met ca. 93 m² woonoppervlak is recent gemoderniseerd en uitstekend onderhouden. Met drie slaapkamers, een moderne keuken en badkamer, én niet te vergeten: een 20 meter diepe zonnige achtertuin op het zuidwesten! Of je nu starter bent, een jong gezin hebt of heerlijk royaal (en bijna gratis wilt wonen), je bent bent hier thuis.

A Energielabel
Het allergrootste pluspunt? Je woont hier bijna gratis! Deze woning heeft Energielabel A. Dankzij een compleet duurzaamheidspakket met zonnepanelen, een warmtepomp, airconditioning en uitstekende isolatie (dak, muur, vloer en HR++ glas) zijn je maandlasten hier extreem laag. Dat is pas zorgeloos wonen: heerlijk koel in de zomer en behaaglijk warm in de winter, zonder dat je schrikt van de energierekening.

Deze sfeervolle eengezinswoning (bouwjaar 1982) is volledig up-to-date. De keuken is voorzien van moderne inbouwapparatuur en ruim. De badkamer is in 2018 luxe gemoderniseerd met een ligbad (inclusief douche) en een stijlvol wastafelmeubel. De verwarmingsinstallatie is ook modern, met een CV-ketel en de warmtepomp/airco.

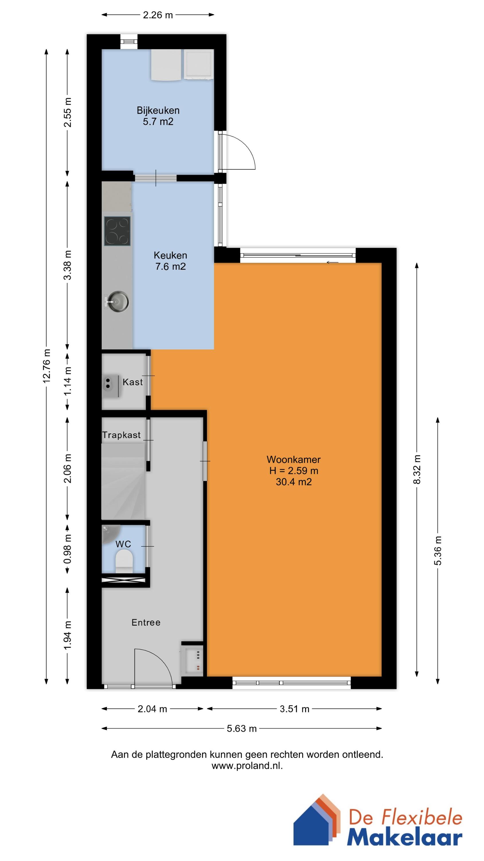
Begane grond:
Je komt binnen in een hal met meterkast, een modern toilet en trapopgang. Vervolgens stap je in de lichte woonkamer met open verbinding naar de keuken. Dankzij de ruime opzet (woonkamer + keuken samen ca. 38 m²) en de grote schuifpui naar de tuin voelt deze leefruimte heerlijk licht en ruim aan. In de keuken vind je alle benodigde inbouwapparatuur en een praktische hoekkast met daarin de CV-opstelling. Aansluitend is er een handige bijkeuken met wasmachine-aansluiting en een achterdeur naar de tuin.

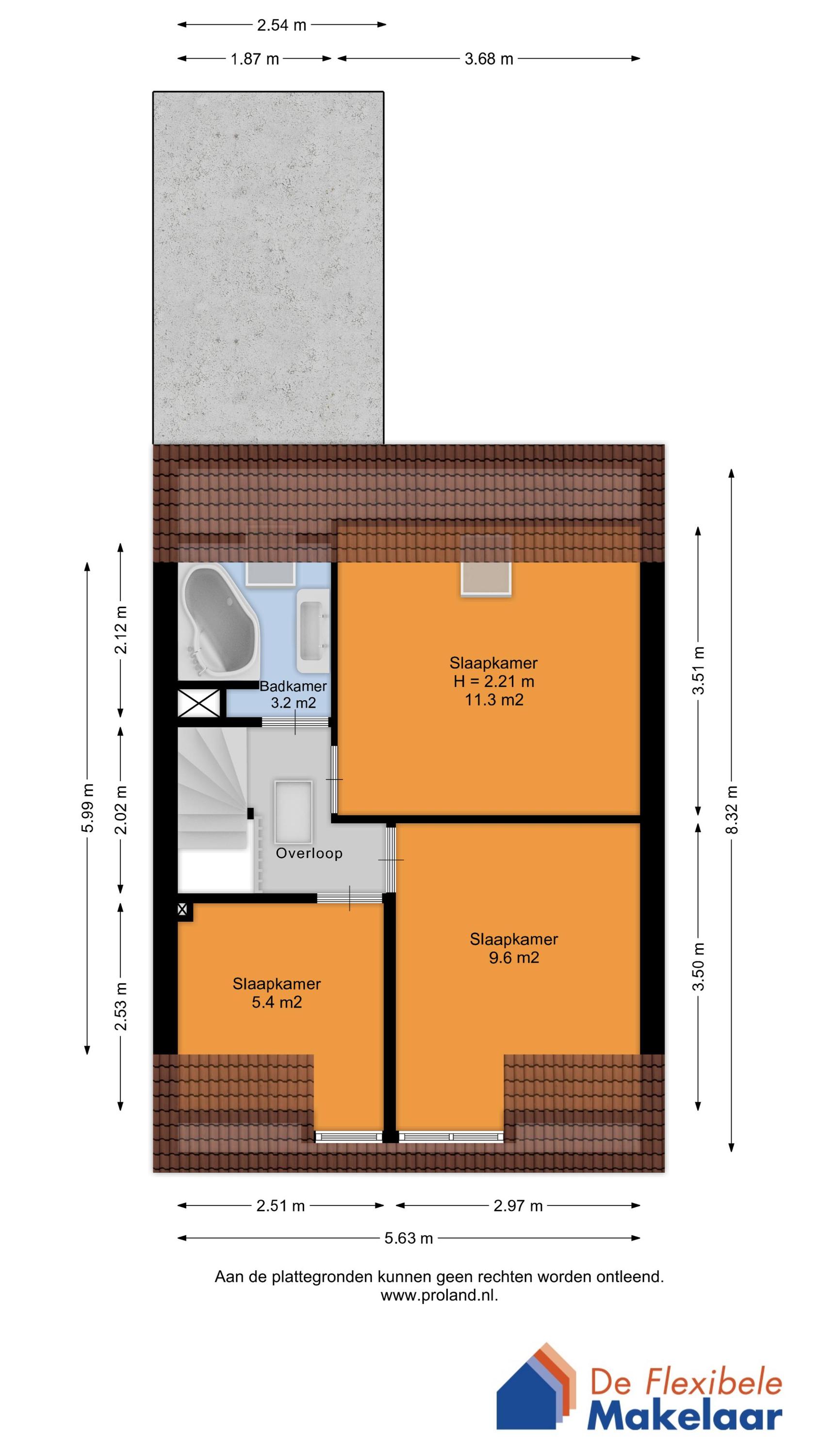
Eerste etage:
Op de overloop heb je toegang tot drie slaapkamers, allemaal van een goede grootte. De badkamer op deze verdieping is modern en compleet uitgerust – je kunt hier genieten van een warm bad of een snelle douche. Via een vlizotrap is bovendien de zolderberging te bereiken, ideaal voor het opbergen van koffers, kerstspullen en andere spullen die je niet dagelijks nodig hebt.

2e etage:
Vlizotrap naar zolderruimte.

Buiten:
Een absoluut pluspunt van deze woning is de achtertuin. Deze is maar liefst ruim 20 meter diep en gunstig gelegen op het zuidwesten. Dat betekent de hele middag en avond zon. De tuin is netjes aangelegd en achterin staat een vrijstaande kunststof berging (met elektra) voor bijvoorbeeld je fietsen, gereedschap en tuinmeubels. Dankzij de vrije en royale achterom kun je gemakkelijk met de fiets, motor of kliko achterlangs; erg praktisch! Ook de voortuin is keurig onderhouden en geeft extra privacy ten opzichte van de rustige straat.

Nog een belangrijk pluspunt van het A-label
Je profiteert niet alleen van lagere energielasten, maar vaak óók van financiële voordelen bij je hypotheek. Verschillende geldverstrekkers geven duurzaamheidskorting op de rente bij woningen met label A of hoger (bijv. 0,15%-punt; per bank en voorwaarden verschillend). Bovendien telt het energielabel sinds 2024 rechtstreeks mee in je maximale hypotheek: bij een energiezuinige woning krijg je bovenop je inkomensruimte extra leenruimte (in 2025 vaak van enkele duizenden euro’s tot grofweg €5.000–€50.000, afhankelijk van het label). Dat maakt kopen aantoonbaar betaalbaarder en vergroot je bestedingsruimte, bóvenop de lagere stooklasten. Bovendien zijn er ook nog extra mogelijkheden tot het verder upgraden van het energielabel. Hiervoor zijn ook diverse subsidies en verdere duurzaamheidsleningsmogelijkheden.

Belangrijke punten van deze woning:
-Energielabel A
-Modern afgewerkt; direct genieten zonder klussen.
-Comfortabel; verwarming via een CV-ketel warmtepomp/airconditioning voor verwarming en koeling
-Ruimte; 93 m² woonoppervlak (zonder zolder mee te rekenen)
-Tuin; Zeer diepe achtertuin van meer dan 20 meter diep op het zonnige zuidwesten, met een handige achterom
-Ruime berging; met elektra.
-Ligging; Gelegen aan een rustige straat in een kindvriendelijke wijk, direct naast een speeltuin. Winkels, supermarkt, basisscholen en sportverenigingen zijn op loopafstand.

Kootstertille
Kootstertille is een gemoedelijk dorp met circa 2.500 inwoners en biedt alle dagelijkse voorzieningen binnen handbereik. Er is een supermarkt, er zijn diverse winkels, drie basisscholen en meerdere sportclubs, dus het hele gezin kan hier terecht. Bovendien is de ligging ideaal: Kootstertille ligt centraal ten opzichte van Buitenpost en Surhuisterveen voor de nabijgelegen voorzieningen, en binnen ongeveer 20 minuten rijden ben je in de grotere plaatsen Drachten of Leeuwarden. Hier woon je landelijk en rustig, met alle benodigde faciliteiten in de buurt én goede verbindingen naar de rest van de regio.

Kortom, Tsjerk Hiddesstrjitte 3 in Kootstertille heeft vele voordelen om je thuis te voelen. Ben je nieuwsgierig geworden? Maak dan snel een afspraak voor een bezichtiging en laat je verrassen middels een bezichtiging met onze flexibele makelaars.

Kenmerken

Soort Eengezinswoning, Tussenwoning
Vraagprijs Prijs op aanvraag
Aangeboden 6 maanden geleden
Status Verkocht
Aanvaarding In overleg

Bekijk alle kenmerken...

Interesse?

Vraag een bezichtiging aan

Bekijk de omgeving

Ontdek de ligging van deze woning

Alle kenmerken

Buitenruimte

Ligging Aan rustige weg, In woonwijk
Tuin Achtertuin, Voortuin (Verzorgd)
Tuin oppervlakte 160 m²
Achtertuin 123 m² (20.5m diep en 6m breed)
Ligging Gelegen op ZUIDWEST (bereikbaar via achterom)
Parkeren Openbaar parkeren
Parkeren Ruim voldoende gratis openbaar parkeren.

Bouw

Bouwvorm Bestaande bouw
Bouwjaar 1982
Onderhoud (binnen) Goed tot uitstekend
Onderhoud (buiten) Goed
Dak Samengesteld dak
Dak materialen Pannen, Bitumineuze dakbedekking

Energie

Energielabel A
Einddatum 2035-10-23
Isolatie Dakisolatie, Muurisolatie, Dubbel glas, HR-glas
Verwarming CV-ketel, Warmtepomp
Warm water CV-ketel
C.V.-ketel Atag HR107 ketel, bouwjaar indicatief Gas gestookte combiketel uit 2016 eigendom

Oppervlakken en inhoud

Perceeloppervlakte 243 m²
Woonoppervlakte 93 m²
Overige ruimten 7 m²
Inhoud 345 m³
Oppervlakte externe bergruimte 9 m²

Indeling

Woonlagen 3 woonlagen
Kamers 4 kamers, waarvan 3 slaapkamers
Badkamers 1 badkamer(s) en 1 aparte toilet(ten)
Badkamervoorzieningen Ligbad, Wastafel, Wastafelmeubel
Voorzieningen TV-kabel, Airconditioning, Dakraam, Zonnepanelen, Natuurlijke ventilatie

Schuur / berging

Schuur / berging soort Vrijstaand (kunststof)
Voorzieningen Voorzien van elektra
Isolatie Geen isolatie
Aantal 1

Bestemming

Huidig gebruik Woonruimte
Huidige bestemming Woonruimte
Permanente bewoning Ja

Kadaster KOOTEN C 2872

Oppervlakte 243 m²
Omvang Geheel perceel

Garage

Garage soort Geen garage

Vergelijkbaar in de buurt

...