Menu
Ureterperend 26 Drachten - Hoofdafbeelding.jpg
C

Tonen op kaart

Brochure

Verkocht: Ureterperend 26, Drachten

Drachten Ureterperend 26

72 m² woonoppervlakte

168 m² perceeloppervlakte

5 kamers, waarvan 4 slaapkamers

Verkocht

Geïnteresseerd in dit object?

Vraag eenvoudig een bezichtiging aan!

Interesse in woning

Omschrijving

Ontdek de perfecte combinatie van comfort en locatie in deze prachtige tussenwoning aan Ureterperend 26 in Drachten! Met een royaal perceel van 168 m2 biedt dit huis niet alleen ruimte buiten, maar ook een slimme indeling binnen met maar liefst 4 slaapkamers - ideaal voor een groeiend gezin of wie van extra (werk)ruimte houdt.

Energielabel C? Na het energielabel nog verder verduurzaamd!
Het huis wordt verwarmd door een moderne Remeha Avanta HR combiketel uit 2018, waardoor je niet alleen geniet van comfortabele warmte, maar ook van een efficiënte en energiezuinige verwarming. Het keurige C-energielabel onderstreept de duurzame kwaliteiten van deze woning, en daar blijft het niet bij! Op het dak zijn naderhand namelijk nog panelen geplaatst, hier liggen maar liefst 7 zonnepanelen, dit is dus nog niet meegenomen in het energielabel.

De woning beschikt over een externe stenen berging, wat betekent dat er genoeg ruimte is voor al je spullen en hobby's. Geniet van de fraaie zuidgelegen achtertuin, een oase van rust en privacy, en dit alles op slechts een steenworp afstand van het bruisende centrum van Drachten.

De indeling is als volgt:
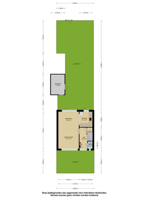
Entree via de voordeur; ruime hal met meterkast en bergruimte in de trapkast; toiletruimte; doorzonwoonkamer met halfopen keukenruimte met keuken in L-opstelling en achterdeur.

Eerste verdieping:
Overloop met toegang tot de 3 aangrenzende slaapkamers van 10,4m2, 9,6m2 en 5,4m2 waarvan 2 voorzien zijn van inbouwkasten; badkamer met wastafel(meubel); inloopdouche en designradiator.

Tweede verdieping:
Vaste trap naar de 2e verdieping waar naast bergruimte (met CV-opstelling) ook een (4e) slaapkamer gerealiseerd is.

Buitenom:
De achtertuin van deze woning is een ware oase van ontspanning en gezelligheid. Gelegen op het zuiden, geniet je de hele dag door van de warme zonnestralen. Met niet één, maar twee terrassen biedt de tuin de ideale setting voor zowel zonnige barbecues als knusse avonden onder de sterrenhemel. Het eerste terras is voorzien van een handig zonnescherm, waardoor je op elk moment van de dag kunt kiezen tussen zon en schaduw. De toegevoegde bonus van een achterom via de steeg zorgt voor extra gemak, waardoor je eenvoudig toegang hebt tot de tuin, bijvoorbeeld met de fiets.

Het dorp Drachten:
Drachten is een levendig dorp en biedt een scala aan voorzieningen die het tot een geweldige plek maken om te wonen. Op slechts een steenworp afstand van het centrum, ontvouwt zich een wereld van mogelijkheden. Wandel langs gezellige winkelstraten, geniet van heerlijke culinaire ervaringen in lokale restaurants en cafés, of ontdek het culturele aanbod in theaters en musea. Met een uitgebreid aanbod van scholen is Drachten ook ideaal voor gezinnen. De bereikbaarheid van Drachten is eveneens uitstekend, met goede verbindingen via wegen (A7 en Waldwei) en het openbaar vervoer.

Mis deze kans niet om eigenaar te worden van deze prachtwoning dichtbij het hart van Drachten. Neem contact met onze flexibele makelaars op voor een bezichtiging en laat je betoveren door de mogelijkheden die deze woning te bieden heeft. Welkom thuis aan de Ureterperend 26 in Drachten!

Kenmerken

Soort Eengezinswoning, Tussenwoning
Vraagprijs Prijs op aanvraag
Aangeboden 2 jaar geleden
Status Verkocht
Aanvaarding In overleg

Bekijk alle kenmerken...

Interesse?

Vraag een bezichtiging aan

Bekijk de omgeving

Ontdek de ligging van deze woning

Alle kenmerken

Bouw

Bouwvorm Bestaande bouw
Bouwjaar 1956
Bouwjaar omschrijving De woning is gebouwd in 1956.
Onderhoud (binnen) Goed
Toelichting De woning is goed onderhouden.
Onderhoud (buiten) Goed
Toelichting De woning is goed onderhouden.
Dak Zadeldak
Dak materialen Pannen
Dak toelichting Met pannen gedekt zadeldak.

Buitenruimte

Ligging Aan rustige weg, In woonwijk
Tuin Achtertuin, Voortuin (FRAAI_AANGELEGD)
Tuin oppervlakte 100 m²
Achtertuin 85 m² (15.08m diep en 6.28m breed)
Ligging Gelegen op ZUID (bereikbaar via achterom)
Parkeren Openbaar parkeren
Parkeren Er is parkeergelegenheid in de straat en nabije omgeving.

Energie

Energielabel C
Einddatum 2030-10-08
Isolatie Dakisolatie, Dubbel glas, HR-glas
Verwarming CV-ketel
Warm water CV-ketel
C.V.-ketel Remeha Avanta Gas gestookte combiketel uit 2018 eigendom

Oppervlakken en inhoud

Perceeloppervlakte 168 m²
Woonoppervlakte 72 m²
Overige ruimten 13 m²
Inhoud 296 m³
Oppervlakte externe bergruimte 8 m²

Indeling

Woonlagen 3 woonlagen
Kamers 5 kamers, waarvan 4 slaapkamers
Badkamers 1 badkamer(s) en 1 aparte toilet(ten)
Badkamervoorzieningen Douche, Wastafel, Wastafelmeubel, Inloopdouche
Voorzieningen TV-kabel, Buitenzonwering, Dakraam, Zonnepanelen

Schuur / berging

Schuur / berging soort Vrijstaand (steen)
Voorzieningen Voorzien van elektra
Isolatie Dakisolatie
Aantal 1

Bestemming

Huidig gebruik Woonruimte
Huidige bestemming Woonruimte
Permanente bewoning Ja

Kadaster DRACHTEN C 10502

Oppervlakte 168 m²
Omvang Geheel perceel

Garage

Garage soort Geen garage

Vergelijkbaar in de buurt

...