Menu
Van Stolbergstrjitte 2 Kootstertille - Hoofdafbeelding.jpg
C

Tonen op kaart

Brochure

Verkocht: Van Stolbergstrjitte 2, Kootstertille

Kootstertille Van Stolbergstrjitte 2

90 m² woonoppervlakte

503 m² perceeloppervlakte

4 kamers, waarvan 3 slaapkamers

Verkocht

Geïnteresseerd in dit object?

Vraag eenvoudig een bezichtiging aan!

Interesse in woning

Omschrijving

Welkom bij deze prachtige en goed onderhouden hoekwoning aan de Van Stolbergstrjitte 2 in Kootstertille! Deze instapklare woning biedt alles wat je zoekt en meer. Deze fijne gezinswoning beschikt over drie ruime slaapkamers, een moderne keuken en badkamer (beiden vernieuwd in 2019) en een uitgebouwde bijkeuken. Bovendien heb je hier de luxe van een eigen oprit, een ruime houten garage en een veranda.

De woning beschikt nu over een energielabel C. Met een Intergas HR-ketel uit 2017 is de woning zowel comfortabel als efficiënt. De kozijnen zijn allemaal uitgevoerd in kunststof met HR beglazing in 2020. Dit is uitgevoerd na het maken van het label en is daarin dus niet meegenomen.

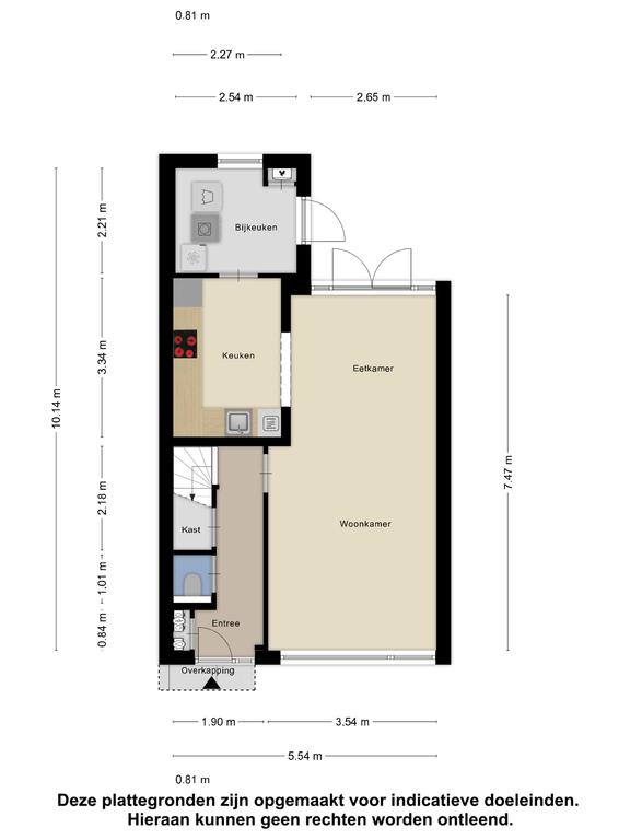
De indeling is als volgt:
Begane grond:
Entree via de voordeur; hal met meterkast, kelderkast en trapopgang; toiletruimte met hangtoilet; woonkamer met openslaande deuren; open keuken met diverse inbouwapparatuur; bijkeuken met achterdeur.

Eerste verdieping:
Overloop; 3 slaapkamers; badkamer met inloopdouche, hangtoilet en wasmeubel.

Tweede verdieping:
Middels vlizotrap bereikbare bergzolder.

Buiten:
Op een royaal perceel van 253 m² eigen grond kun je genieten van een heerlijke tuin waar je volop privacy hebt. De vrijstaande houten garage biedt voldoende opslag- of hobbyruimte en de overkapping is een fijne plek om van het buitenleven te genieten. Auto's parkeer je naast de deur op de eigen oprit. De voortuin is voorzien van onderhoudsarm grind

Het dorp Kootstertille:
Kootstertille is een vriendelijk dorp met een hechte gemeenschap en een breed scala aan voorzieningen waaronder een supermarkt, diverse winkels en bedrijven. Het dorp heeft verder een basisschool en sportfaciliteiten. Bovendien ben je vanuit Kootstertille in een mum van tijd in omliggende dorpen en steden, zoals Buitenpost en Drachten, wat het een ideale locatie maakt voor wie rust zoekt zonder te ver van het stadse leven te willen zijn.

Perfect voor gezinnen, starters of wie op zoek is naar een rustige plek met alle comfort van een moderne woning! Benieuwd naar deze kans? Neem snel contact met ons op en plan je bezichtiging! Onze flexibele makelaars staan voor je klaar!

Kenmerken

Soort Eengezinswoning, Hoekwoning
Vraagprijs Prijs op aanvraag
Aangeboden 1 jaar geleden
Status Verkocht
Aanvaarding In overleg

Bekijk alle kenmerken...

Interesse?

Vraag een bezichtiging aan

Bekijk de omgeving

Ontdek de ligging van deze woning

Alle kenmerken

Bouw

Bouwvorm Bestaande bouw
Bouwjaar 1972
Bouwjaar omschrijving Gebouwd in 1972.
Onderhoud (binnen) Goed
Toelichting De woning is goed onderhouden.
Onderhoud (buiten) Goed
Toelichting De woning is goed onderhouden.
Dak Zadeldak
Dak materialen Bitumineuze dakbedekking
Dak toelichting Zadeldak.

Energie

Energielabel C
Einddatum 2025-02-16
Isolatie Dakisolatie, Muurisolatie, Dubbel glas
Verwarming CV-ketel
Warm water CV-ketel
C.V.-ketel Intergas HRE Gas gestookte combiketel uit 2017 eigendom

Buitenruimte

Ligging Aan rustige weg, In woonwijk
Tuin Achtertuin, Voortuin, Zijtuin, Tuin rondom (NORMAAL)
Tuin oppervlakte 100 m²
Ligging Gelegen op (bereikbaar via achterom)
Parkeren Openbaar parkeren, Op eigen terrein
Parkeren Er is voldoende parkeergelegenheid in de omgeving en op eigen oprit.

Garage

Garage soort Vrijstaand (hout)
Voorzieningen Elektra
Isolatie Geen isolatie
Oppervlakte 38 m² (7.41m diep en 5.07m breed)
Capaciteit 1 auto(s)
Aantal 1

Oppervlakken en inhoud

Perceeloppervlakte 503 m²
Woonoppervlakte 90 m²
Inhoud 322 m³
Oppervlakte externe bergruimte 38 m²
Gebouwgebonden buitenruimte 1 m²

Indeling

Woonlagen 3 woonlagen
Kamers 4 kamers, waarvan 3 slaapkamers
Badkamers 1 badkamer(s) en 1 aparte toilet(ten)
Badkamervoorzieningen Toilet, Douche, Wastafel, Wastafelmeubel, Inloopdouche
Voorzieningen TV-kabel, Buitenzonwering, Natuurlijke ventilatie

Schuur / berging

Schuur / berging soort Vrijstaand (hout)
Voorzieningen Voorzien van elektra
Isolatie Geen isolatie
Aantal 1

Bestemming

Huidig gebruik Woonruimte
Huidige bestemming Woonruimte
Permanente bewoning Ja

Kadaster KOOTEN C 3026

Oppervlakte 253 m²
Omvang Geheel perceel

Vergelijkbaar in de buurt

...