Menu
Vangstraat 25 Wolvega - Hoofdafbeelding.jpg
B

Tonen op kaart

Verkocht: Vangstraat 25, Wolvega

Wolvega Vangstraat 25

131 m² woonoppervlakte

406 m² perceeloppervlakte

6 kamers, waarvan 5 slaapkamers

Verkocht

Geïnteresseerd in dit object?

Vraag eenvoudig een bezichtiging aan!

Interesse in woning

Omschrijving

Te koop in Wolvega: Vangstraat 25! Ontdek deze royale woning in de geliefde woonwijk "De Meulepolle" met maar liefst 5 grote slaapkamers, een vrijstaande garage van ca. 23m² en een vrij uitzicht aan de voorzijde. Met een woonoppervlakte van méér dan ca. 130m² en een energielabel B, belooft dit huis een combinatie van ruimte, comfort en duurzaamheid.

Je zult onder de indruk zijn van de immense ouderslaapkamer, die is ontstaan door het samenvoegen van 2 kamers. De duurzaamheid van de woning is gegarandeerd door dak- en muurisolatie en dubbele beglazing, waarvan een groot deel HR++ glas is. Ook zijn er zonnepanelen aanwezig en is een groot deel van de kozijnen vervangen naar kunststof.

Indeling:
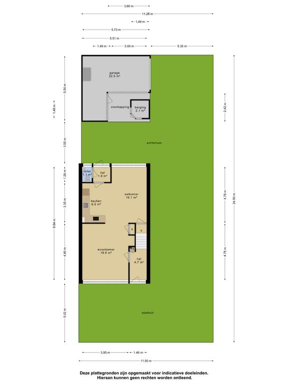
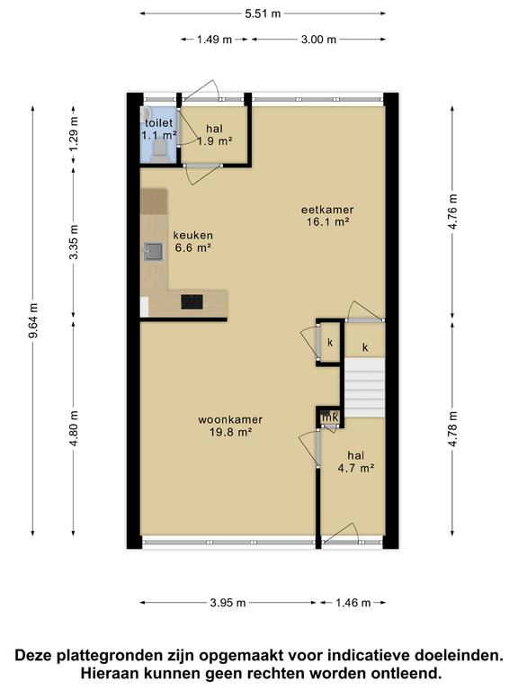
Bij binnenkomst tref je een lichte hal aan met een meterkast. Aansluitend bevindt zich de ruime Z-vormige woonkamer, gecombineerd met een eetkeukenruimte die samen meer dan 40m² beslaan. De woning beschikt ook over een L-vormige inbouwkeuken en 2 grote berg-/provisiekasten. Vanuit de hal aan de achterzijde is de achterdeur naar de zonnige achtertuin en is er toegang tot een toiletruimte met toilet en fontein.

1e etage:
Deze verdieping heeft een overloop met een royale overloopkast. Er zijn 3 slaapkamers, waarvan er oorspronkelijk 4 waren; twee zijn samengevoegd tot een riante ouderslaapkamer. Daarnaast is er een uitgebreide badkamer met een inloopdouche, wandcloset en een dubbele wastafel.

2e etage:
Een vaste trap leidt naar deze volwaardige verdieping. Hier vind je een overloop, twee additionele slaapkamers, een stookruimte en heel veel bergruimte.

Het huis geniet een perfecte ligging in "De Meulepolle", compleet met een ruime oprit. De U-vormige tuin rond de woning biedt een ideale mix van zonnige en schaduwrijke hoekjes. Via de achtertuin bereik je de royale vrijstaande garage, die is voorzien van een privé oprit en achterom. Bovendien beschikt de woning over een extra berging. Een belangrijk detail; de zonnepanelen zijn gehuurd en dienen overgenomen te worden.

Wolvega
Wolvega is de plek waar gemak en natuur samenkomen. Dit sfeervolle dorp biedt alle essentiële voorzieningen: van basis- en voortgezet onderwijs tot bruisende supermarkten en sportfaciliteiten. Slenter door de levendige winkelstraat of dompel je onder in de natuur. Voor de natuurliefhebber liggen adembenemende gebieden zoals de Lindevallei en het Nationaal Park Weerribben-Wieden op steenworp afstand. Hier kun je naar hartenlust wandelen en fietsen.

Wolvega's ligging is een ware troef. Centraal in de Gemeente Weststellingwerf in Zuid-Friesland, biedt het dorp een ideale bereikbaarheid. Of je nu per auto of trein reist, de verbindingen zijn uitstekend. Dankzij de snelle toegang tot de A32 ben je in no-time in steden zoals Heerenveen, Leeuwarden, Steenwijk, Meppel en Zwolle. Zelfs Utrecht en Amsterdam liggen op slechts een uur rijden.

Het uitgebreide winkelcentrum, de talrijke sportfaciliteiten en de culturele bezienswaardigheden van Wolvega liggen allemaal op loopafstand van deze prachtige woning. Echt een ideale ligging.

Als dit alles je aandacht heeft getrokken, wacht dan niet langer en neem contact op met onze flexibele makelaars voor een bezichtiging. Wellicht is de Vangstraat 25 in Wolvega binnenkort jouw droomhuis!

Kenmerken

Soort Eengezinswoning, Eindwoning
Vraagprijs Prijs op aanvraag
Aangeboden 2 jaar geleden
Status Verkocht
Aanvaarding In overleg

Bekijk alle kenmerken...

Interesse?

Vraag een bezichtiging aan

Bekijk de omgeving

Ontdek de ligging van deze woning

Alle kenmerken

Bouw

Bouwvorm Bestaande bouw
Bouwjaar 1973
Onderhoud (binnen) Redelijk tot goed
Onderhoud (buiten) Redelijk tot goed
Dak Zadeldak
Dak materialen Pannen

Energie

Energielabel B
Einddatum 2033-07-13
Isolatie Dakisolatie, Muurisolatie, Dubbel glas, HR-glas
Verwarming CV-ketel
Warm water CV-ketel
C.V.-ketel HR-107 ketel (bouwjaar indicatief) Gas gestookte combiketel uit 2010 eigendom

Buitenruimte

Ligging Aan rustige weg, In woonwijk, Vrij uitzicht, Beschutte ligging, Open ligging, In bosrijke omgeving
Tuin Achtertuin, Voortuin, Zijtuin (NORMAAL)
Tuin oppervlakte 200 m²
Achtertuin 102 m² (9m diep en 11.28m breed)
Ligging Gelegen op ZUIDOOST (bereikbaar via achterom)
Parkeren Openbaar parkeren, Op eigen terrein

Garage

Garage soort Vrijstaand (steen), Parkeerplaats
Voorzieningen Elektra
Isolatie Geen isolatie
Oppervlakte 23 m² (5.5m diep en 5.73m breed)
Capaciteit 1 auto(s)
Aantal 1

Indeling

Woonlagen 3 woonlagen
Kamers 6 kamers, waarvan 5 slaapkamers
Badkamers 1 badkamer(s) en 1 aparte toilet(ten)
Badkamervoorzieningen Toilet, Douche, Dubbele wastafel, Wastafel, Wastafelmeubel, Inloopdouche
Voorzieningen TV-kabel

Oppervlakken en inhoud

Perceeloppervlakte 406 m²
Woonoppervlakte 131 m²
Inhoud 453 m³
Oppervlakte externe bergruimte 25 m²

Schuur / berging

Schuur / berging soort Vrijstaand (hout)
Voorzieningen Voorzien van elektra
Isolatie Geen isolatie
Aantal 1

Bestemming

Huidig gebruik Woonruimte
Huidige bestemming Woonruimte
Permanente bewoning Ja

Kadaster WOLVEGA D 9053

Oppervlakte 286 m²
Omvang Geheel perceel

Vergelijkbaar in de buurt

...