Menu
Veenderij 16 Surhuisterveen - Hoofdafbeelding.jpg
A

Tonen op kaart

Brochure

Verkocht: Veenderij 16, Surhuisterveen

Surhuisterveen Veenderij 16

195 m² woonoppervlakte

374 m² perceeloppervlakte

7 kamers, waarvan 5 slaapkamers

Verkocht

Geïnteresseerd in dit object?

Vraag eenvoudig een bezichtiging aan!

Interesse in woning

Omschrijving

Ruimte, comfort én een toplocatie! Deze riante gezinswoning heeft het allemaal!

Ben je op zoek naar een royale woning met volop leefruimte, een eigen garage, een zonnige tuin en een duurzaam karakter? Dan is dit jouw kans!

Deze buitengewoon ruime geschakelde woning biedt met een woonoppervlakte van circa 195m² en zes (slaap)kamers alle ruimte voor een groot gezin, een efficiënte thuiswerkplek of een combinatie van beiden. De lichte en riante Z-vormige woonkamer van 46m² is het hart van het huis en biedt via een brede schuifpui directe toegang tot de zonnige achtertuin. De keuken is praktisch ingericht en voorzien van inbouwapparatuur, terwijl de bijkeuken extra ruimte biedt voor witgoed en opslag. De inpandige garage van circa 22m² zorgt voor extra gemak en is zowel via de voor- als achterzijde toegankelijk.

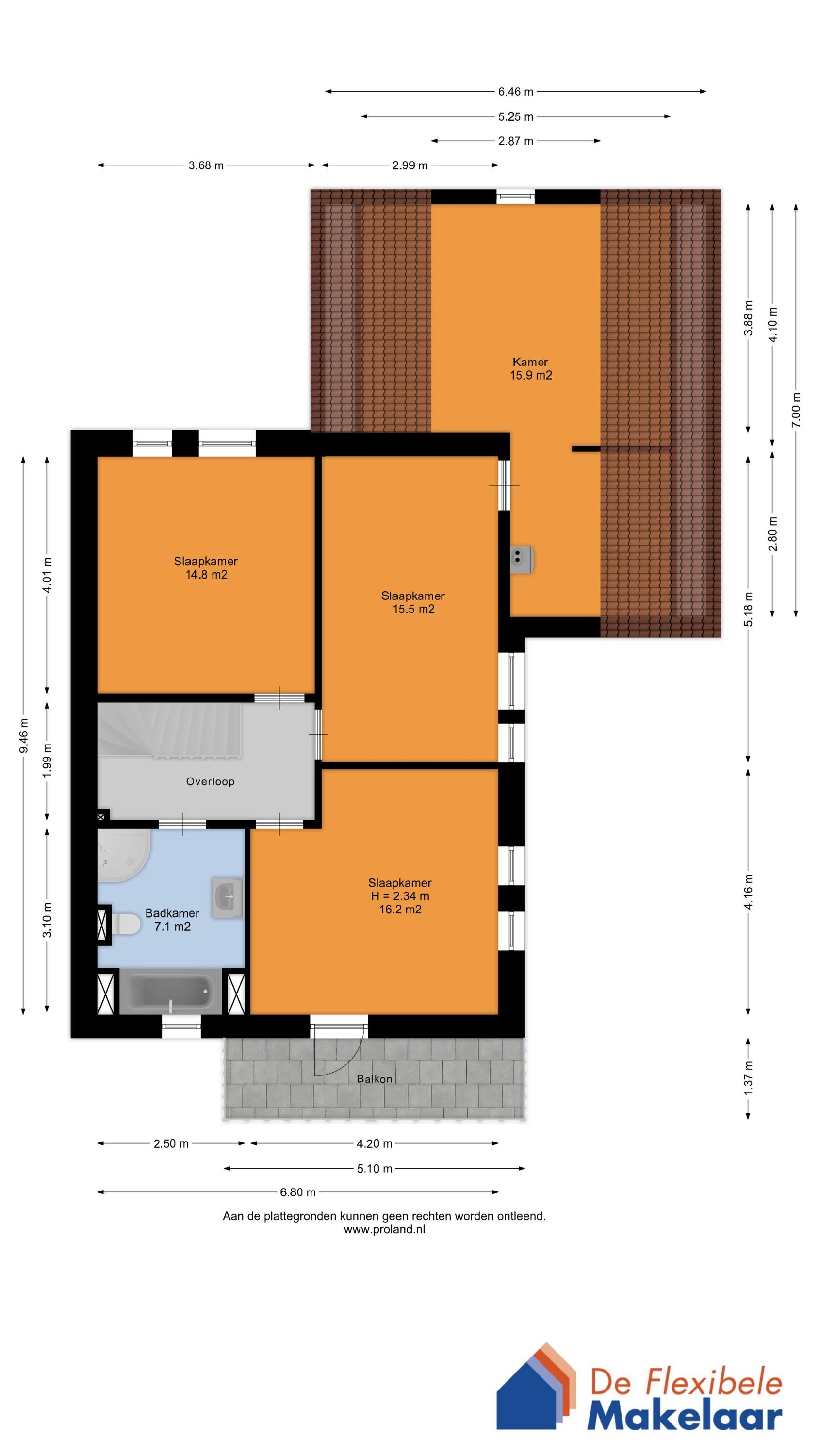
Op de eerste verdieping bevinden zich vier ruime (slaap)kamers, waarvan één met toegang tot een balkon. De moderne badkamer is compleet uitgerust met een ligbad, douchecabine, toilet, designradiator en wastafelmeubel. De tweede verdieping beschikt over nog eens twee volwaardige slaapkamers en extra bergruimte.

Ook aan duurzaamheid is gedacht. Met een gunstig energielabel A, volledige isolatie, een Intergas cv-ketel uit 2023 en maar liefst 15 zonnepanelen profiteer je van optimaal wooncomfort en een lagere energierekening. De voorkant van de woning is voorzien van zonnescreens.

De woning staat op een perceel van circa 374m² en heeft een zonnige achtertuin op het zuidwesten. Hier geniet je in alle rust van privacy en een sfeervolle buitenruimte met meerdere terrassen en een ruim gazon. De voortuin is eveneens fraai aangelegd en de lange oprit biedt voldoende parkeergelegenheid op eigen terrein.

Gelegen in een aantrekkelijke en kindvriendelijke woonwijk, met een groot groenplantsoen en speeltuin direct aan de overkant, is dit een ideale plek om te wonen.

Daarnaast ligt het bruisende centrum van Surhuisterveen op korte afstand. Als grootste dorp in de gemeente Achtkarspelen biedt Surhuisterveen meer dan 100 winkels, vier grote supermarkten, diverse gezondheidsvoorzieningen, scholen en uitgebreide sportfaciliteiten. Met een levendig dag- en avondaanbod in de horeca en de uitstekende verbinding via de snelweg (A7) naar Groningen, Drachten, Heerenveen en Leeuwarden, is deze locatie van alle gemakken voorzien.

Grijp deze unieke kans en ontdek zelf de ruimte en het comfort van jouw droomwoning! Onze flexibele makelaars staan voor je klaar om een bezichtiging te plannen, zodat je in alle rust kunt ervaren hoe fantastisch je hier kunt wonen!

Kenmerken

Soort Eengezinswoning, Geschakelde woning
Vraagprijs Prijs op aanvraag
Aangeboden 11 maanden geleden
Status Verkocht
Aanvaarding In overleg

Bekijk alle kenmerken...

Interesse?

Vraag een bezichtiging aan

Bekijk de omgeving

Ontdek de ligging van deze woning

Alle kenmerken

Bouw

Bouwvorm Bestaande bouw
Bouwjaar 1994
Bouwjaar omschrijving Gerealiseerd in 1994
Onderhoud (binnen) Goed
Toelichting Goed onderhouden staat
Onderhoud (buiten) Goed
Toelichting Goed onderhouden staat
Dak Zadeldak
Dak materialen Pannen
Dak toelichting Zadeldak met pannen gedekt.

Buitenruimte

Ligging Aan rustige weg, In woonwijk
Tuin Achtertuin, Voortuin (VERZORGD)
Tuin oppervlakte 250 m²
Achtertuin 138 m² (12.5m diep en 11m breed)
Ligging Gelegen op ZUIDWEST
Parkeren Openbaar parkeren, Op eigen terrein
Parkeren Voldoende parkeergelegenheid op het eigen terrein en langs de straat.

Energie

Energielabel A
Einddatum 2030-12-23
Isolatie Dakisolatie, Muurisolatie, Vloerisolatie, Dubbel glas, Volledig geïsoleerd
Verwarming CV-ketel, Vloerverwarming (gedeeltelijk)
Warm water CV-ketel
C.V.-ketel Intergas HR combiketel Gas gestookte combiketel uit 2023 eigendom

Garage

Garage soort Aangebouwd (steen)
Voorzieningen Elektra, Water
Isolatie Muurisolatie
Oppervlakte 22 m² (6.76m diep en 3.3m breed)
Capaciteit 1 auto(s)
Aantal 1

Oppervlakken en inhoud

Perceeloppervlakte 374 m²
Woonoppervlakte 195 m²
Overige ruimten 22 m²
Inhoud 786 m³
Gebouwgebonden buitenruimte 10 m²

Indeling

Woonlagen 3 woonlagen
Kamers 7 kamers, waarvan 5 slaapkamers
Badkamers 1 badkamer(s) en 1 aparte toilet(ten)
Badkamervoorzieningen Ligbad, Toilet, Douche, Wastafel, Wastafelmeubel, Vloerverwarming
Voorzieningen Mechanische ventilatie, TV-kabel, Buitenzonwering, Glasvezelkabel, Zonnepanelen, Natuurlijke ventilatie

Bestemming

Huidig gebruik Woonruimte
Huidige bestemming Woonruimte
Permanente bewoning Ja

Kadaster SURHUIZUM B 8107

Oppervlakte 374 m²
Omvang Geheel perceel

Vergelijkbaar in de buurt

...