Menu
Vlasserslaan 21 Ulrum - Hoofdafbeelding.jpg
B

Tonen op kaart

Verkocht: Vlasserslaan 21, Ulrum

Ulrum Vlasserslaan 21

101 m² woonoppervlakte

263 m² perceeloppervlakte

4 kamers, waarvan 3 slaapkamers

Verkocht

Geïnteresseerd in dit object?

Vraag eenvoudig een bezichtiging aan!

Interesse in woning

Omschrijving

Deze sfeervolle geschakelde 2^1kapwoning met garage en zonnige achtertuin is fraai gesitueerd aan de rand van Ulrum op een perceel van ca. 263m² eigen grond. Wil je het beste van beide werelden – moderne comfort en natuurlijke schoonheid? Dan is Vlasserslaan 21 in Ulrum het perfecte huis!

Kenmerkende Kwaliteit
Met een ruim woonoppervlak van 101m², zonnige achtertuin van ca. 100m², en de meest zonnige zonligging op het zuiden, biedt dit huis zowel binnen als buiten ongekende mogelijkheden voor een comfortabel leven. Gebouwd in 1976 maar nadien uitvoerig gemoderniseerd, combineert deze geschakelde 2-onder-1-kapwoning een authentieke charme met moderne gemakken.

Energiezuinig en Duurzaam
Dankzij hoogwaardige dak-, muur-, en vloerisolatie, evenals dubbel HR(++) glas, is dit huis bekroond met een energielabel B. Hier geniet je van een warm en comfortabel huis zonder de hoge energierekeningen. Een Intergas C.V. combiketel uit 2016 zorgt voor zowel verwarming als warm water, en de recent geplaatste 10 zonnepanelen in 2023 zijn de kers op de taart voor uw groene levensstijl.

Ruimtelijke Indeling
Geniet van een ruime L-vormige woonkamer van 33 m² die baadt in natuurlijk licht. De keuken, modern en functioneel, is voorzien van diverse inbouwapparatuur. Daarnaast biedt de woning drie comfortabele slaapkamers en een moderne badkamer uitgerust met inloopdouche, wastafelmeubel, en toilet.

Buitengewoon Buitenleven
De achtertuin is een waar paradijs, ideaal voor tuinliefhebbers en zonaanbidders. De tuin is fraai aangelegd en biedt een extra zonneterras en een luxe overkapping, perfect voor zomerse BBQ's of rustige avonden.

De indeling is als volgt:
Begane grond:
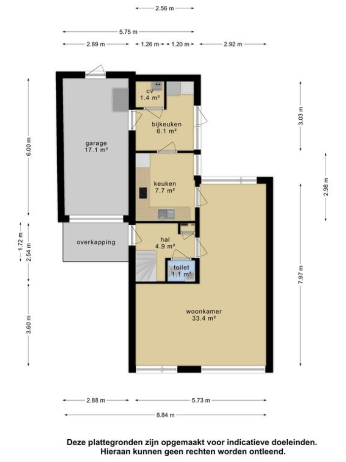
Overdekte zijentree, hal, toilet met fonteintje, royale L-vormige woonkamer van ca. 33m² en aan de voorzijde uitzicht op een groene bomenwal en aan de achterzijde op de achtertuin, de raampartijen zorgen voor veel lichtinval, keuken met inbouwkeuken in hoekopstelling, in een lichte kleurstelling en voorzien van diverse inbouwapparatuur, praktische bijkeuken met toegang tot de achtertuin, witgoedaansluitingen en een c.v. kast, de aangebouwde garage is aan de voorzijde voorzien van een kanteldeur en aan de achterzijde van een loopdeur naar de achtertuin.

Eerste etage:
Overloop met vaste kast, drie slaapkamers variërend in grootte van ca. 8m², 10m² en 11m², door de recht opgetrokken gevel aan de achterzijde heeft de etage een verrassend ruime etage, de moderne badkamer is ingericht met een inloopdouche, tweede toilet, een design radiator en een meubel met vaste wastafel.

Tweede etage:
De vlizotrap geeft toegang tot een zolderberging.

Buitenom:
De prettige achtertuin is werkelijk een oase van rust, biedt volop privacy en is fraai ingericht met zonneterras, weelderige bloementuin en een heerlijke tuinoverkapping. Dit overdekte terras maakt het mogelijk lang en vaak van het buitenzijn en de bloemenpracht te genieten. Een hele grote plus; er is zelfs een extra perceel grond bijgekocht, waardoor de achtertuin nog ruimer en zongerichter is. Ook is hierdoor een grote, luxe overkapping geplaatst
De voortuin is verzorgd aangelegd en de lange oprit biedt voldoende parkeergelegenheid op het eigen terrein. Aan de voorzijde grenst de woning aan de rand van het dorp en heeft het uitzicht op een fraaie en groene bomenwal.

Het dorp Ulrum:
Gelegen aan de rustige Vlasserslaan, grenst dit huis aan een groene bomenwal en biedt het een prachtig vrij uitzicht. Ulrum is een idyllisch dorp met veel te bieden, waaronder diverse recreatie- en wandelgebieden, goede voorzieningen, een basisschool, horeca en een rijk verenigingsleven. In de omliggende dorpen zoals Leens, Winsum en Eenrum zijn goede voorzieningen aanwezig. De stad Groningen is gelegen op ca. 25 autominuten en is ook goed te bereiken met het openbaar vervoer.

Zet de stap!
Twijfel niet en maak een afspraak voor een bezichtiging. Dit is de kans om uw droomhuis in Ulrum te bemachtigen. Onze flexibele makelaars staan klaar om u te verwelkomen in deze ruime, energiezuinige en prachtig gelegen 2-onder-1-kapwoning aan de Vlasserslaan 21 in Ulrum. Grijp deze unieke kans en neem vandaag nog contact met ons op!

Kenmerken

Soort Eengezinswoning, GESCHAKELDE_TWEE_ONDER_EEN_KAPWONING
Vraagprijs Prijs op aanvraag
Aangeboden 2 jaar geleden
Status Verkocht
Aanvaarding In overleg

Bekijk alle kenmerken...

Interesse?

Vraag een bezichtiging aan

Bekijk de omgeving

Ontdek de ligging van deze woning

Alle kenmerken

Bouw

Bouwvorm Bestaande bouw
Bouwjaar 1976
Bouwjaar omschrijving Het oorspronkelijke bouwjaar is 1976
Onderhoud (binnen) Goed
Toelichting Goed onderhouden
Onderhoud (buiten) Goed
Toelichting Goed onderhouden
Dak Samengesteld dak
Dak materialen Pannen, Bitumineuze dakbedekking
Dak toelichting Pannendak en bitumineuze dakbedekkingk

Buitenruimte

Ligging Aan rustige weg, In woonwijk, Vrij uitzicht
Tuin Achtertuin, Voortuin (FRAAI_AANGELEGD)
Tuin oppervlakte 100 m²
Achtertuin 100 m² (10m diep en 8.8m breed)
Ligging Gelegen op ZUID
Parkeren Openbaar parkeren, Op eigen terrein
Parkeren Er is voldoende parkeergelegenheid op het eigen terrein en langs de openbare weg.

Energie

Energielabel B
Einddatum 2033-08-04
Isolatie Dakisolatie, Muurisolatie, Vloerisolatie, Dubbel glas
Verwarming CV-ketel
Warm water CV-ketel
C.V.-ketel Intergas C.V. combiketel kompakt HRE Gas gestookte combiketel uit 2016 eigendom

Garage

Garage soort Aangebouwd (steen)
Voorzieningen Elektra, Water
Isolatie Geen isolatie
Oppervlakte 17 m² (6m diep en 2.88m breed)
Capaciteit 1 auto(s)
Aantal 1

Oppervlakken en inhoud

Perceeloppervlakte 263 m²
Woonoppervlakte 101 m²
Overige ruimten 17 m²
Inhoud 441 m³
Gebouwgebonden buitenruimte 5 m²

Indeling

Woonlagen 3 woonlagen
Kamers 4 kamers, waarvan 3 slaapkamers
Badkamers 1 badkamer(s) en 1 aparte toilet(ten)
Badkamervoorzieningen Toilet, Douche, Wastafel, Wastafelmeubel, Inloopdouche
Voorzieningen TV-kabel, Dakraam, Glasvezelkabel, Zonnepanelen, Natuurlijke ventilatie

Schuur / berging

Schuur / berging soort Vrijstaand (hout)
Voorzieningen Voorzien van elektra
Isolatie Geen isolatie
Aantal 1

Bestemming

Huidig gebruik Woonruimte
Huidige bestemming Woonruimte
Permanente bewoning Ja

Kadaster ULRUM D 1441

Oppervlakte 241 m²
Omvang Geheel perceel

Vergelijkbaar in de buurt

...