Menu
Vossepol 25 Surhuisterveen - Hoofdafbeelding.jpg
C

Tonen op kaart

Brochure

Verkocht: Vossepol 25, Surhuisterveen

Surhuisterveen Vossepol 25

129 m² woonoppervlakte

164 m² perceeloppervlakte

5 kamers, waarvan 4 slaapkamers

Verkocht

Geïnteresseerd in dit object?

Vraag eenvoudig een bezichtiging aan!

Interesse in woning

Omschrijving

Deze royale tussenwoning met vrijstaande stenen berging is gelegen in een ruim opgezette kindvriendelijke woonomgeving op korte afstand van het uitgebreide winkelcentrum van Surhuisterveen. Daarnaast zijn voorzieningen op het gebied van o.a. scholen, sportaccommodaties en openbaar vervoer binnen handbereik.

Het woonhuis is gebouwd in 1972 op een perceel van 164 m². Het is geheel voorzien van isolatieglas. Het dak is deels geïsoleerd. Verwarming vindt plaats door een HR combiketel van AWB uit 2008

De indeling van deze woning is als volgt:
Entree, hal met meterkast, de lichte woonkamer van ca. 20 m², woonkeuken van ca. 21 m² met een nette keukenopstelling voorzien van inbouwapparatuur, achterhal met toilet voorzien van een hangcloset en fontein, witgoed en de achterentree.

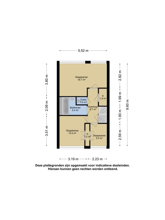
Eerste verdieping: overloop met bergruimte en aansluitend drie slaapkamers, de badkamer met ligbad/douche en vaste wastafel en een separaat toilet.

Tweede verdieping: middels vaste trap te bereiken zolderverdieping met cv-opstelling, witgoedaansluitingen, bergruimte en een ruime slaapkamer van ca. 16 m².

De voor- en achtertuin zijn onderhoudsvriendelijk ingericht. De achtertuin is gelegen op het noordoosten. Achter op het perceel staat de stenen berging met overkapping met achterom.

Er is voldoende parkeergelegenheid in de parkeerhavens van de rustige straat.

Bent u nieuwsgierig geworden naar deze ruime tussenwoning, maak dan een afspraak voor een bezichtiging. Wij zien u graag aan de Vossepol 25 te Surhuisterveen.

Kenmerken

Soort Eengezinswoning, Tussenwoning
Vraagprijs Prijs op aanvraag
Aangeboden 6 jaar geleden
Status Verkocht
Aanvaarding In overleg

Bekijk alle kenmerken...

Interesse?

Vraag een bezichtiging aan

Bekijk de omgeving

Ontdek de ligging van deze woning

Alle kenmerken

Bouw

Bouwvorm Bestaande bouw
Bouwjaar 1971
Onderhoud (binnen) Goed
Onderhoud (buiten) Goed
Dak Zadeldak
Dak materialen Pannen

Energie

Energielabel C
Einddatum 2030-04-20
Isolatie Dakisolatie, Dubbel glas
Verwarming CV-ketel
Warm water CV-ketel
C.V.-ketel AWB HR Gas gestookte combiketel uit 2008 eigendom

Buitenruimte

Ligging Aan rustige weg, In woonwijk
Tuin Achtertuin, Voortuin (NORMAAL)
Tuin oppervlakte 100 m²
Achtertuin 46 m² (8.41m diep en 5.52m breed)
Ligging Gelegen op NOORDOOST (bereikbaar via achterom)
Parkeren Openbaar parkeren

Indeling

Woonlagen 3 woonlagen
Kamers 5 kamers, waarvan 4 slaapkamers
Badkamers 1 badkamer(s) en 2 aparte toilet(ten)
Badkamervoorzieningen Ligbad, Douche, Wastafel
Voorzieningen Mechanische ventilatie, TV-kabel, Dakraam

Oppervlakken en inhoud

Perceeloppervlakte 164 m²
Woonoppervlakte 129 m²
Inhoud 440 m³
Oppervlakte externe bergruimte 9 m²

Schuur / berging

Schuur / berging soort Vrijstaand (steen)
Voorzieningen Voorzien van elektra
Isolatie Geen isolatie
Aantal 1

Bestemming

Huidig gebruik Woonruimte
Huidige bestemming Woonruimte
Permanente bewoning Ja

Kadaster SURHUIZUM B 7995

Oppervlakte 164 m²
Omvang Geheel perceel

Garage

Garage soort Geen garage

Vergelijkbaar in de buurt

...