Menu
Waling Dykstrastrjitte 71 Gytsjerk - Hoofdafbeelding.jpg
C

Tonen op kaart

Verkocht: Waling Dykstrastrjitte 71, Gytsjerk

Gytsjerk Waling Dykstrastrjitte 71

122 m² woonoppervlakte

135 m² perceeloppervlakte

6 kamers, waarvan 4 slaapkamers

Verkocht

Geïnteresseerd in dit object?

Vraag eenvoudig een bezichtiging aan!

Interesse in woning

Omschrijving

Maak kennis met deze charmante tussenwoning aan de Waling Dykstrastrjitte 71 in het mooie Gytsjerk! Deze gezellige woning uit 1975 met maar liefst ca. 122 m2 woonoppervlakte biedt een comfortabel thuis in een rustige woonwijk, omringd door groen en rust.

Deze woning beschikt over vier ruime slaapkamers, waarvan 3 op de eerste verdieping en 1 op de zolderverdieping, en is geheel voorzien van dubbel glas. De woning beschikt over een keurig energielabel C. En met de combiketel van het merk Atag, geïnstalleerd in 2020, ben je altijd verzekerd van een comfortabele en efficiënte verwarming.

De indeling is als volgt:
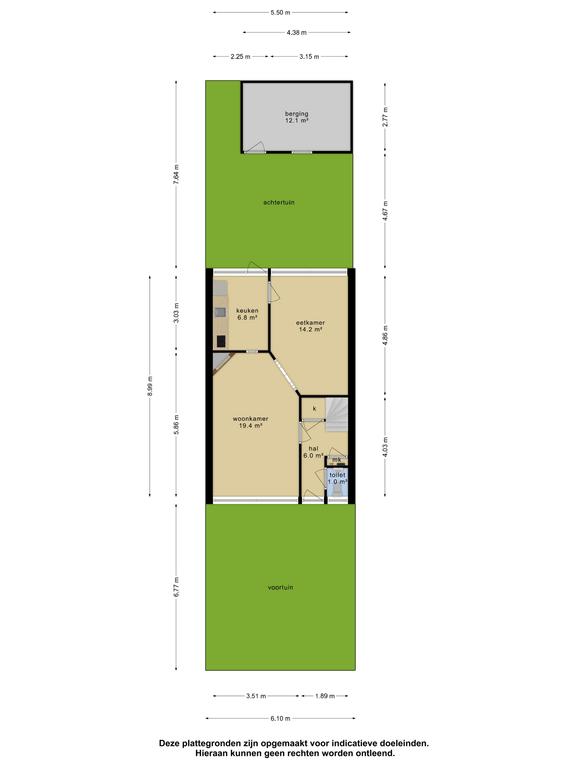
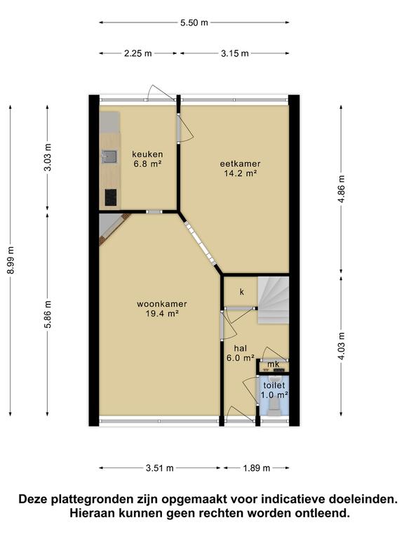
Begane grond:
Entree via de voorzijde van de woning; hal met trapkast; toilet met fontein; ruime Z-vormige woon-/eetkamer met speelse gemetselde boog als overgang; dichte keuken met inbouwapparatuur en witgoedaansluiting; toegang tot de achtertuin.

1e verdieping:
Overloop; 3 ruime slaapkamers waarvan 1 voorzien van wastafel en inbouwkasten; badkamer met ligbad, douche en wastafel.

2e verdieping:
Vaste trap naar 2e verdieping, 1 slaapkamer, bergruimte, witgoedaansluiting, rookkanaal en stookruimte met wasmachineaansluiting.

Buitenom:
De onderhoudsarme achtertuin gelegen op het westen heeft een vrijstaande stenen berging voorzien van elektra. Je kunt gemakkelijk in de tuin komen via een handige achterom. De ruime voortuin, gelegen aan een groenstrook, biedt eveneens voldoende ruimte om van het buitenleven te genieten of uw groene vingers de kost te geven.

Het dorp Gytsjerk:
De woning bevindt zich aan een rustige weg in een vriendelijke buurt, op slechts twee minuten fietsen van verschillende winkels, waaronder een supermarkt. Op warme zomerdagen kun je verfrissing en plezier vinden in het nabijgelegen openluchtzwembad 'Zwembad De Sawn Doarpen', leuk voor jong en oud. Gytsjerk zelf biedt prachtige landschappen en uitgestrekte weilanden om te verkennen en de welbekende Elfsteden Tegeltjesbrug ligt op korte afstand van het dorp. Bovendien is de nabijheid van de N361 handig om steden zoals Leeuwarden gemakkelijk te bereiken voor werk of ontspanning.

Kortom, deze tussenwoning aan de Waling Dykstrastrjitte 71 biedt niet alleen comfortabel wonen, maar ook een perfecte combinatie van rustig dorpsleven en nabijheid van voorzieningen. Aarzel niet om zelf het potentieel van deze geweldige woning in Gytsjerk te ontdekken! Bel snel voor een bezichtiging bij Waling Dykstrastrjitte 71 te Gytsjerk. Onze flexibele makelaars leiden u graag rond!

Kenmerken

Soort Eengezinswoning, Tussenwoning
Vraagprijs Prijs op aanvraag
Aangeboden 2 jaar geleden
Status Verkocht
Aanvaarding In overleg

Bekijk alle kenmerken...

Interesse?

Vraag een bezichtiging aan

Bekijk de omgeving

Ontdek de ligging van deze woning

Alle kenmerken

Bouw

Bouwvorm Bestaande bouw
Bouwjaar 1975
Bouwjaar omschrijving De woning is gebouwd in 1975.
Onderhoud (binnen) Redelijk
Toelichting De woning is van binnen redelijk goed onderhouden.
Onderhoud (buiten) Redelijk tot goed
Toelichting De woning is van buiten redelijk tot goed onderhouden.
Dak Zadeldak
Dak materialen Pannen
Dak toelichting Een met pannen gedekt zadeldak.

Buitenruimte

Ligging Aan rustige weg, In woonwijk
Tuin Achtertuin, Voortuin (NORMAAL)
Tuin oppervlakte 70 m²
Achtertuin 30 m² (7.64m diep en 5.5m breed)
Ligging Gelegen op WEST (bereikbaar via achterom)
Parkeren Openbaar parkeren
Parkeren Er is voldoende parkeergelegenheid in de omgeving en in de parkeerhavens in de straat.

Energie

Energielabel C
Einddatum 2025-01-29
Verwarming CV-ketel
Warm water CV-ketel
C.V.-ketel Atag Gas gestookte combiketel uit 2020 eigendom

Indeling

Woonlagen 3 woonlagen
Kamers 6 kamers, waarvan 4 slaapkamers
Badkamers 1 badkamer(s) en 1 aparte toilet(ten)
Badkamervoorzieningen Ligbad, Douche, Wastafel
Voorzieningen TV-kabel, Buitenzonwering, Rookkanaal, Dakraam

Oppervlakken en inhoud

Perceeloppervlakte 135 m²
Woonoppervlakte 122 m²
Inhoud 403 m³
Oppervlakte externe bergruimte 12 m²

Schuur / berging

Schuur / berging soort Vrijstaand (steen)
Voorzieningen Voorzien van elektra
Isolatie Geen isolatie
Aantal 1

Bestemming

Huidig gebruik Woonruimte
Huidige bestemming Woonruimte
Permanente bewoning Ja

Kadaster GIEKERK C 3544

Oppervlakte 135 m²
Omvang Geheel perceel

Garage

Garage soort Geen garage

Vergelijkbaar in de buurt

...