Menu
Warmoltsstrjitte 46b Harkema - Hoofdafbeelding.jpg
C

Tonen op kaart

Verkocht: Warmoltsstrjitte 46b, Harkema

Harkema Warmoltsstrjitte 46b

181 m² woonoppervlakte

433 m² perceeloppervlakte

7 kamers, waarvan 5 slaapkamers

Verkocht

Geïnteresseerd in dit object?

Vraag eenvoudig een bezichtiging aan!

Interesse in woning

Omschrijving

Heerlijk vrijstaand wonen, met uitgebreide bestemmingsmogelijkheden in Harkema en alle voorzieningen op een korte afstand? Dat kan bij deze vrijstaande woning aan Warmoltsstrjitte 46b te Harkema! Deze ruime en statige woning is gelegen op een royaal perceel van 433m² en heeft een woonoppervlakte van maar liefst 181m² Aan de achterzijde is ca. 5 jaar geleden een royale uitgebouwde serre gerealiseerd, die bij het huis is getrokken. Hierdoor is er extra woonoppervlakte gecreëerd en is er dus extra leefruimte aanwezig. Ook zorgt het voor prachtig lichtinval!

Niet alleen is er veel ruimte te vinden op de begane grond; dit geldt voor het volledige huis. Zo zijn er maar liefst 4 slaapkamers aanwezig op de eerste etage en nog eens 2 extra kamers op de tweede etage. Grote gezinnen kunnen hier daarom uitgebreid vertoeven!

Nog geen ruimte genoeg? Er is ook nog een grote garage/berging aangebouwd van ca. 27m². De woning is dus niet alleen ruim genoeg voor een groot gezin, maar ook voor iemand die op zoek is naar veel (klus)ruimte. Door het aanwezige leidingwerk en de grote extra ruimte, kun je hier ook gemakkelijk een bad- en slaapkamer beneden realiseren.

Als klap op de vuurpijl: de bestemming "gemengd". Dit betreft een woonbestemming, maar dan met meer mogelijkheden. Zo mag je hier wonen, een bedrijf houden of een combinatie hiervan. Ideaal met dit ruimtelijke geheel.

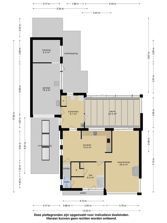
Begane grond:
Royale en lichte hal/entree met garderobenis, bergkast en uitgebreide meterkast; toiletruimte met closet en fontein; keurige keukenruimte voorzien van diverse inbouwapparatuur en uitgebreide eetkamerruimte; lichte doorzonwoonkamer; bijkeuken met witgoedaansluitingen en cv-ketelopstelling (Intergas HRE); royale, lichte en goed geïsoleerde serre van ca. 23m²; grote aangebouwde garage met extra bergruimte, wastafel, elektra, riolering aansluitend een royale overkapping.

Eerste etage:
Overloop met prachtige vide; 4 ruime slaapkamers; badkamer met (inloop)douche; wastafel en closet.

Tweede etage:
Overloop; 5e en 6e slaapkamermogelijkheid.

Buitenom:
De achtertuin is ruim en voorzien van heel veel privacy.

Harkema is een geliefde woonplaats met een breed scala aan goede voorzieningen zoals o.a. een supermarkt, cafetaria, pizzeria, bakkerij, slagerij, bloemenwinkel, pompstation, Chinees restaurant, vele sportclubs en basisscholen. Ook heeft Harkema veel bedrijvigheid op o.a. haar eigen industrieterrein. Tevens ligt het veelzijdige dorp Surhuisterveen, voorzien van een bruisend winkelcentrum, op zeer korte afstand van Harkema.

Ook is Harkema goed bereikbaar, zo heeft Harkema een busverbinding en is Harkema zeer goed bereikbaar middels de uitvalswegen richting Drachten, Groningen en Leeuwarden.

Is de Warmoltsstrjitte 46B in Harkema dé volgende stap in de woningmarkt? Onze flexibele makelaars leiden je graag rond in dit zeer veelzijdige geheel.

Kenmerken

Soort Eengezinswoning, Vrijstaande woning
Vraagprijs Prijs op aanvraag
Aangeboden 2 jaar geleden
Status Verkocht
Aanvaarding In overleg

Bekijk alle kenmerken...

Interesse?

Vraag een bezichtiging aan

Bekijk de omgeving

Ontdek de ligging van deze woning

Alle kenmerken

Bouw

Bouwvorm Bestaande bouw
Bouwjaar 1978
Bouwjaar omschrijving Serre ca. 5 jaar oud
Onderhoud (binnen) Goed
Toelichting Het geheel is goed van binnen onderhouden
Onderhoud (buiten) Goed
Toelichting Het geheel is goed van buiten onderhouden
Dak Samengesteld dak
Dak materialen Pannen, Bitumineuze dakbedekking
Dak toelichting Dit samengestelde dak bestaat uit pannen en bitumen

Buitenruimte

Ligging In centrum, In woonwijk
Tuin Achtertuin, Voortuin, Zijtuin (VERZORGD)
Tuin oppervlakte 252 m²
Achtertuin 212 m² (17.09m diep en 12.42m breed)
Ligging Gelegen op ZUIDOOST (bereikbaar via achterom)
Parkeren Openbaar parkeren, Op eigen terrein
Parkeren Er is meer dan voldoende parkeergelegenheid op de oprit als aan straat

Energie

Energielabel C
Einddatum 2032-07-06
Isolatie Dakisolatie, Muurisolatie, Dubbel glas, Grotendeels dubbel glas, HR-glas
Verwarming CV-ketel
Warm water CV-ketel
C.V.-ketel HR107 Gas gestookte combiketel uit 2019 eigendom

Oppervlakken en inhoud

Perceeloppervlakte 433 m²
Woonoppervlakte 181 m²
Overige ruimten 30 m²
Inhoud 751 m³
Oppervlakte externe bergruimte 10 m²
Gebouwgebonden buitenruimte 48 m²

Indeling

Woonlagen 4 woonlagen
Kamers 7 kamers, waarvan 5 slaapkamers
Badkamers 1 badkamer(s) en 2 aparte toilet(ten)
Badkamervoorzieningen Toilet, Douche, Wastafel, Inloopdouche
Voorzieningen TV-kabel, Rookkanaal, Schuifpui

Garage

Garage soort Aangebouwd (steen), Carport, Parkeerplaats, Garage met carport
Voorzieningen Verwarming, Elektra, Water
Oppervlakte 19 m² (5.93m diep en 3.17m breed)
Capaciteit 1 auto(s)
Aantal 1

Bestemming

Huidig gebruik Woonruimte
Huidige bestemming Woonruimte
Permanente bewoning Ja

Schuur / berging

Schuur / berging soort Aangebouwd (steen)
Voorzieningen Voorzien van elektra
Aantal 1

Kadaster SURHUIZUM C 4540

Oppervlakte 433 m²
Omvang Geheel perceel

Vergelijkbaar in de buurt

...