Menu
Wethouder Iwe Hutstraat 151 Leek - Hoofdafbeelding.jpg

Tonen op kaart

Brochure

Verkocht: Wethouder Iwe Hutstraat 151, Leek

Leek Wethouder Iwe Hutstraat 151

96 m² woonoppervlakte

130 m² perceeloppervlakte

4 kamers, waarvan 3 slaapkamers

Verkocht

Geïnteresseerd in dit object?

Vraag eenvoudig een bezichtiging aan!

Interesse in woning

Omschrijving

LET OP, AFMELDING VOOR VERPLICHTE STATISTIEKEN NVM. WONING IS VERKOCHT!

In een rustige en kindvriendelijke omgeving staat aan een hofje deze hoekwoning met twee houten bergingen op een perceel van 130 m² eigen grond.

De indeling van deze woning is als volgt:
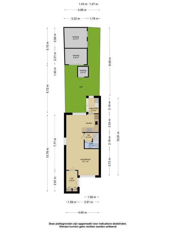
Entree, hal met meterkast en garderobekast, lichte woonkamer met open keuken gezamenlijk ca. 33 m² groot, bijkeuken met witgoedaansluitingen en de achterentree.

Eerste verdieping:
Overloop met aansluitend twee ruime slaapkamers en de badkamer met douchecabine, ligbad, hangcloset en vaste wastafel.

Tweede verdieping: middels vaste trap te bereiken zolderverdieping met overloop, bergruimte en een slaapkamer van ca. 9 m².

De voortuin is ingericht met bestrating en een gazon. De onderhoudsvriendelijke achtertuin is gelegen op het westen en is ingericht met bestrating en de houten bergingen.

Er is voldoende parkeergelegenheid in de parkeerhavens naast de woning.

Is uw interesse voor deze woning gewekt? Maak dan een afspraak voor een bezichtiging om uw indruk compleet te maken.

Kenmerken

Soort Eengezinswoning, Eindwoning
Vraagprijs Prijs op aanvraag
Aangeboden 5 jaar geleden
Status Verkocht
Aanvaarding In overleg

Bekijk alle kenmerken...

Interesse?

Vraag een bezichtiging aan

Bekijk de omgeving

Ontdek de ligging van deze woning

Alle kenmerken

Bouw

Bouwvorm Bestaande bouw
Bouwjaar 1977
Onderhoud (binnen) Redelijk tot goed
Onderhoud (buiten) Redelijk tot goed
Dak Zadeldak
Dak materialen Pannen, Bitumineuze dakbedekking
Dak toelichting De aangebouwde hal heeft een plat dak voorzien van bitumineuze dakbedekking.

Indeling

Woonlagen 3 woonlagen
Kamers 4 kamers, waarvan 3 slaapkamers
Badkamers 1 badkamer(s) en 1 aparte toilet(ten)
Badkamervoorzieningen Ligbad, Toilet, Douche, Wastafel
Voorzieningen TV-kabel

Energie

Isolatie Dakisolatie, Muurisolatie, Vloerisolatie, Gedeeltelijk dubbel glas
Verwarming CV-ketel
Warm water CV-ketel
C.V.-ketel intergas Gas gestookte combiketel uit 2011 lease

Oppervlakken en inhoud

Perceeloppervlakte 130 m²
Woonoppervlakte 96 m²
Inhoud 360 m³
Oppervlakte externe bergruimte 18 m²

Buitenruimte

Ligging Aan rustige weg, In woonwijk
Achtertuin 48 m² (9.59m diep en 4.96m breed)
Ligging Gelegen op WEST (bereikbaar via achterom)
Parkeren Openbaar parkeren

Bestemming

Huidig gebruik Woonruimte
Huidige bestemming Woonruimte
Permanente bewoning Ja

Schuur / berging

Schuur / berging soort Vrijstaand (hout)
Isolatie Geen isolatie
Aantal 2

Kadaster LEEK H 3687

Oppervlakte 130 m²
Omvang Geheel perceel

Garage

Garage soort Geen garage

Vergelijkbaar in de buurt

...