Menu
Wildveld 23 Surhuisterveen - Hoofdafbeelding.jpg
G

Tonen op kaart

Brochure

Verkocht: Wildveld 23, Surhuisterveen

Surhuisterveen Wildveld 23

92 m² woonoppervlakte

1.660 m² perceeloppervlakte

5 kamers, waarvan 3 slaapkamers

Verkocht

Geïnteresseerd in dit object?

Vraag eenvoudig een bezichtiging aan!

Interesse in woning

Omschrijving

Altijd al willen wonen in Surhuisterveen, maar toch in heerlijke vrijheid, rust, ruimte en de open ligging van het buitengebied?

Deze op prachtlocatie gelegen kluswoning is dan echt iets voor u! Het geheel is gelegen op een ruim perceel van ca. 11.760 m² eigen grond.

De woning wordt verwarmt middels gaskachels en de verwarming van water is door middel van een geiser.

Het geheel wordt aangeboden voor de vraagprijs van: €225.000,- k.k., maar het is ook mogelijk om alleen de woning met opstallen, op een een perceel van ca. 1.660 m² eigen grond aan te kopen voor een vraagprijs van €175.000,- k.k..

Het betreft een vrijstaande woning met aangebouwde garage, schuurruimte en vrijstaande schuurruimte met kapschuur. Dit prachtige plekje gelegen te midden van landerijen en op slechts enkele autominuten van het centrum van Surhuisterveen.

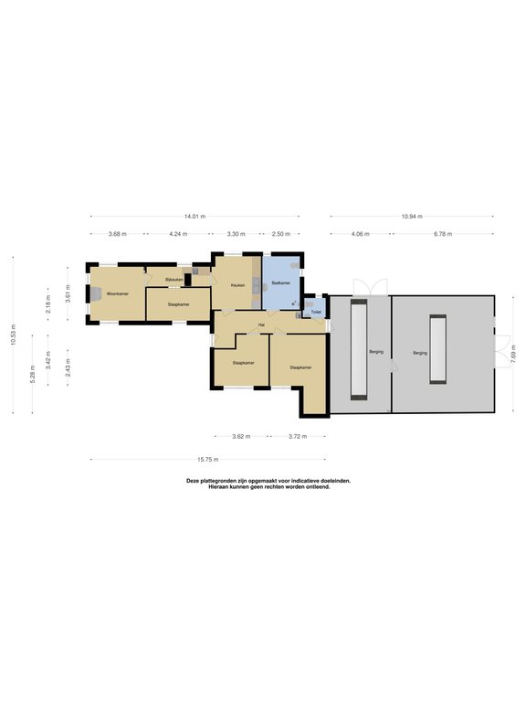
Indeling: entree, hal, woonkamer, keuken, slaapkamer, badkamer met douche, toilet en een vaste wastafel, toilet met fontein, slaapkamer, aangebouwde dubbele garage en stalruimte.

Eerste etage: Vliering.

Bent u nieuwsgierig geworden naar dit heerlijke vrije plekje? Neemt u dan gerust contact met ons op, waarna u deze prachtige plaats aan het Wildveld te Surhuisterveen eens rustig kunt bewonderen.

Kenmerken

Soort Eengezinswoning, Vrijstaande woning
Vraagprijs Prijs op aanvraag
Aangeboden 6 jaar geleden
Status Verkocht
Aanvaarding In overleg

Bekijk alle kenmerken...

Interesse?

Vraag een bezichtiging aan

Bekijk de omgeving

Ontdek de ligging van deze woning

Alle kenmerken

Bouw

Bouwvorm Bestaande bouw
Bouwjaar 1905
Onderhoud (binnen) SLECHT_TOT_MATIG
Onderhoud (buiten) SLECHT_TOT_MATIG
Dak Samengesteld dak
Dak materialen Asbest, Pannen
Dak toelichting Zadeldak

Buitenruimte

Ligging Aan rustige weg, Open ligging, Buiten bebouwde kom, Landelijk gelegen
Tuin Tuin rondom (AAN_TE_LEGGEN)
Tuin oppervlakte 11.500 m²
Ligging Gelegen op (bereikbaar via achterom)
Parkeren Openbaar parkeren, Op eigen terrein
Parkeren Ruim voldoende

Garage

Garage soort Aangebouwd (steen), Aangebouwd (hout), Parkeerplaats, Garage met carport
Voorzieningen Elektra
Isolatie Geen isolatie
Oppervlakte 84 m² (10.94m diep en 7.69m breed)
Capaciteit 1 auto(s)
Aantal 5

Indeling

Woonlagen 2 woonlagen
Kamers 5 kamers, waarvan 3 slaapkamers
Badkamers 1 badkamer(s) en 1 aparte toilet(ten)
Badkamervoorzieningen Toilet, Douche, Wastafel
Voorzieningen TV-kabel

Energie

Energielabel G
Einddatum 2029-08-08
Isolatie Geen isolatie
Verwarming Gaskachels

Oppervlakken en inhoud

Perceeloppervlakte 1.660 m²
Woonoppervlakte 92 m²
Inhoud 360 m³
Oppervlakte externe bergruimte 97 m²

Bestemming

Huidig gebruik Woonruimte
Huidige bestemming Woonruimte
Permanente bewoning Ja

Schuur / berging

Schuur / berging soort Vrijstaand (hout)
Isolatie Geen isolatie
Aantal 1

Kadaster SURHUIZUM B 7147

Oppervlakte 1.660 m²
Omvang Geheel perceel

Vergelijkbaar in de buurt

...