Menu
Wilgenstraat 16 Grootegast - Hoofdafbeelding.jpg
C

Tonen op kaart

Verkocht: Wilgenstraat 16, Grootegast

Grootegast Wilgenstraat 16

160 m² woonoppervlakte

267 m² perceeloppervlakte

6 kamers, waarvan 5 slaapkamers

Verkocht

Geïnteresseerd in dit object?

Vraag eenvoudig een bezichtiging aan!

Interesse in woning

Omschrijving

Deze goed onderhouden rolstoelvriendelijke hoekwoning met vijf slaapkamers is gelegen op loopafstand van de voorzieningen die het centrum van Grootegast u biedt. Karakteristiek? Jazeker, deze woning is namelijk in 1999 aan de achterzijde uitgebouwd, waardoor het een grote fijne leefkeuken heeft.

In 2008 is deze woning aan de zijkant vergroot met een slaapkamer en badkamer, waardoor het geheel ook nog eens levensloopbestendig is. Het heeft dan ook een woonoppervlak van maar liefst 160 m²!

De woning is traditioneel gebouwd in 1976 en is voorzien van vloerisolatie, gevelisolatie, dakisolatie en dubbele beglazing. De eerste verdieping is voorzien van kunststof kozijnen met dubbele beglazing en in kunststof uitgevoerde gevelbekleding. Het geheel wordt verwarmd door een HR combiketel van Remeha uit 2010.

De indeling van deze woning is als volgt:
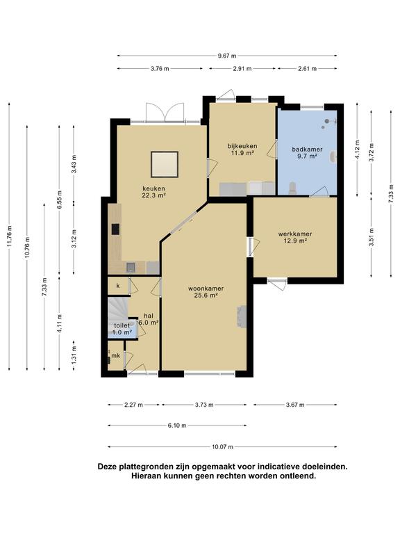
Entree, hal met meterkast, inbouwkast, trapkast, een modern toilet met wandcloset en fontein, de lichte woonkamer van ca. 26 m2 die is voorzien van een duurzame frans eiken kloostervloer en een sfeervolle gashaard. De tuingerichte woonkeuken van ca. 22 m2 met vloerverwarming, een nette keukenopstelling in een landelijke stijl voorzien van inbouwapparatuur en openslaande deuren naar de tuin, een slaapkamer van ca. 13 m2 met aansluitend een badkamer met douche, wandcloset en een wastafelmeubel, de bijkeuken met witgoedaansluitingen en achterentree.

Eerste verdieping:
Overloop met aansluitend drie slaapkamers en de nette badkamer met ligbad, douche en wastafelmeubel.

Tweede verdieping: middels vast trap te bereiken zolderverdieping met overloop, bergruimte, de cv-opstelling en een extra slaap/hobbykamer van ca. 12 m2.

De voor- en achtertuin zijn onderhoudsvriendelijk ingericht. De besloten achtertuin is gelegen op het zonnige zuiden en is ingericht met een terras, borders, een houten berging en een achterom.

De voor- en zijkant van de woning bieden voldoende parkeergelegenheid op eigen terrein. De achterzijde van woning grenst aan een parkeerplaats, zodat u ook aan de achterzijde gemakkelijk kunt parkeren.

Een karakteristieke woning die niet elke dag wordt aangeboden, zo nabij het centrum van het dorp! Hierdoor zijn alle voorzieningen zoals onder andere winkels, horeca, het gemeentehuis en het openbaar vervoer op korte afstand gelegen. De ‘Notoaristuun’, het ‘Kolonelsbos’ en de aangrenzende natuurgebieden geven u volop mogelijkheden om heerlijk te wandelen of te fietsen in deze prachtige gebieden.

Bent u toe aan een volgende stap in de woningmarkt? Maak dan een afspraak voor een bezichtiging aan de Wilgenstraat 16 te Grootegast!

Kenmerken

Soort Eengezinswoning, Hoekwoning
Vraagprijs Prijs op aanvraag
Aangeboden 3 jaar geleden
Status Verkocht
Aanvaarding In overleg

Bekijk alle kenmerken...

Interesse?

Vraag een bezichtiging aan

Bekijk de omgeving

Ontdek de ligging van deze woning

Alle kenmerken

Bouw

Bouwvorm Bestaande bouw
Bouwjaar 1976
Onderhoud (binnen) Goed
Toelichting Het woonhuis is van binnen goed onderhouden
Onderhoud (buiten) Goed
Toelichting Het woonhuis is van buiten goed onderhouden
Dak Zadeldak
Dak materialen Pannen, Bitumineuze dakbedekking
Dak toelichting De platte daken zijn gedekt met bitumineuze dakbedekking.

Buitenruimte

Ligging Aan rustige weg, In woonwijk
Tuin Achtertuin, Voortuin (NORMAAL)
Tuin oppervlakte 100 m²
Achtertuin 75 m² (7.5m diep en 10m breed)
Ligging Gelegen op ZUID (bereikbaar via achterom)
Parkeren Openbaar parkeren, Op eigen terrein
Parkeren Voldoende parkeergelegeheid op eigen terrein

Energie

Energielabel C
Einddatum 2028-03-29
Isolatie Dakisolatie, Muurisolatie, Vloerisolatie, Dubbel glas
Verwarming CV-ketel
Warm water CV-ketel
C.V.-ketel HR combi Remeha Gas gestookte combiketel uit 2010 eigendom

Indeling

Woonlagen 3 woonlagen
Kamers 6 kamers, waarvan 5 slaapkamers
Badkamers 2 badkamer(s) en 1 aparte toilet(ten)
Badkamervoorzieningen Toilet, Wastafel, Ligbad, Wastafelmeubel, Douches 2
Voorzieningen TV-kabel, Natuurlijke ventilatie

Oppervlakken en inhoud

Perceeloppervlakte 267 m²
Woonoppervlakte 160 m²
Inhoud 536 m³
Oppervlakte externe bergruimte 11 m²

Bestemming

Huidig gebruik Woonruimte
Huidige bestemming Woonruimte
Permanente bewoning Ja

Schuur / berging

Schuur / berging soort Vrijstaand (hout)
Isolatie Geen isolatie
Aantal 1

Kadaster GROOTEGAST D 4038

Oppervlakte 267 m²
Omvang Geheel perceel

Garage

Garage soort Geen garage

Vergelijkbaar in de buurt

...