Menu
Zandumerweg 58 Oldekerk - Hoofdafbeelding.jpg
C

Tonen op kaart

Brochure

Verkocht: Zandumerweg 58, Oldekerk

Oldekerk Zandumerweg 58

129 m² woonoppervlakte

15.000 m² perceeloppervlakte

3 kamers, waarvan 2 slaapkamers

Verkocht
Referentie door verkoper: "Zeker een aanrader en met name Arend Bakker kan niks anders zeggen die verdient een dikke 10. Wij zijn zeer tevreden."
Geschreven op 13-03-2026

Deskundigheid9

Prijs/kwaliteit8

Marktkennis9

Service10

Meer reviews bekijken op Funda

Geïnteresseerd in dit object?

Vraag eenvoudig een bezichtiging aan!

Interesse in woning

Omschrijving

Liefhebbers van het houden van paarden of ander vee, opgelet!
Te midden van een prachtig coulisselandschap staat deze gezellige vrijstaande woning met een grote schuur, voorzien van acht paardenboxen, een gedraineerde buitenbak en weiland op een royaal perceel van maar liefst 15.000 m².

Het object is uitermate geschikt voor het beoefenen van een hobbymatige dierenhouderij. Voor onder andere de liefhebber van het paardenleven vormt dit eigendom een droom die werkelijkheid wordt. Zo is er een royale paardenbak van 40 bij 20 meter aanwezig en biedt het omringende land volop ruimte voor ontspanning en trainingen in de frisse buitenlucht. Geniet bovendien van het vrije uitzicht over de (eigen) landerijen, zowel aan de voor- als achterzijde van de woning, en spot de dieren die hier graag vertoeven: van vogels en hazen tot soms zelfs een hert.

De woning zelf is voorzien van diverse moderne gemakken en is daarvoor bekroond met een C-energielabel. Zo beschikt het huis over acht zonnepanelen, een cv-ketel uit 2022, kunststof kozijnen en airconditioning. De woning is bovendien gelijkvloers bewoonbaar, dankzij de aanwezigheid van een slaapkamer en badkamer op de begane grond. De grote inpandige schuur biedt volop mogelijkheden voor het realiseren van extra (slaap)kamers of het inrichten van een hobbyruimte. Op de bovenverdieping bevindt zich daarnaast nog een ruime slaapkamer.

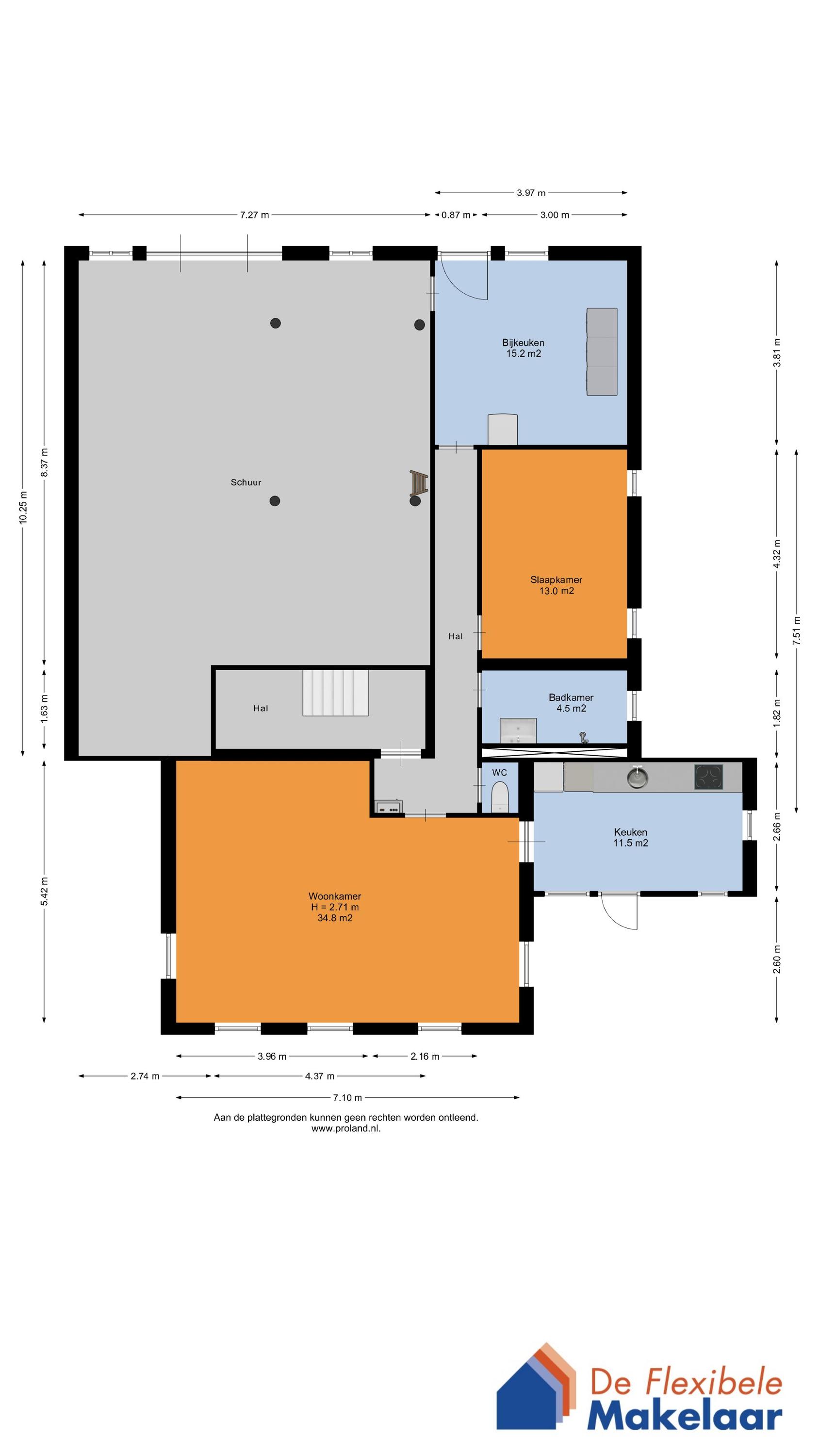
De indeling is als volgt:
Begane grond:
Royale woon-/eetkamer aan de voorzijde van de woning; keukenruimte met keuken, welke is voorzien van diverse inbouwapparatuur en een deur naar buiten; lange hal/gang met meterkast en toegang tot alle omliggende vertrekken, zoals de toiletruimte; de badkamer met wasmeubel en douche; een ruime tweepersoonsslaapkamer; bijkeuken met witgoedaansluitingen, achterdeur en inpandige toegangsdeur naar de royale schuur, welke eveneens buitenom bereikbaar is; hal met trapopgang naar de 1e verdieping.

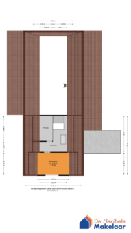
Eerste verdieping:
Op de eerste verdieping bevindt zich een overloop met berging en een tweepersoonsslaapkamer.

Buiten:
Via de lange oprijlaan langs het eigen weiland voor de woning bereik je het huis. Achter de woning bevindt zich de stal, welke is voorzien van acht boxen, met direct daarachter de paardenbak van 20 x 40 meter. Het geheel is omringd door (eigen) weilanden en ligt daardoor heerlijk vrij tussen de landerijen. Deze plek heeft je zoveel te bieden!

Het dorp Oldekerk:
Oldekerk is een gemoedelijk dorp met goede voorzieningen en een gunstige ligging. Je bent zo in voorzieningenrijke dorpen zoals Grootegast, Zuidhorn of de stad Groningen, terwijl je toch kunt genieten van de rust en ruimte van het buitenleven.

Zandumerweg 58 in Oldekerk is een plek waar iedere natuur- en dierenliefhebber zijn hart sneller voelt kloppen. Benieuwd of dat voor jou ook geldt? Neem snel contact op met één van onze flexibele makelaars voor een bezichtiging. Zij laten je deze bijzondere plek graag zien!

Kenmerken

Soort Woonboerderij, Vrijstaande woning
Vraagprijs Prijs op aanvraag
Aangeboden 3 maanden geleden
Status Verkocht
Aanvaarding In overleg

Bekijk alle kenmerken...

Interesse?

Vraag een bezichtiging aan

Bekijk de omgeving

Ontdek de ligging van deze woning

Alle kenmerken

Bouw

Bouwvorm Bestaande bouw
Bouwjaar 1910
Bouwjaar omschrijving Bouwjaar volgens BAG.
Onderhoud (binnen) Goed
Toelichting Het woonhuis is goed onderhouden.
Onderhoud (buiten) Goed
Toelichting Het woonhuis is goed onderhouden.
Dak Zadeldak
Dak materialen Pannen, Metaal
Dak toelichting Deels met pannen gedekt. Deels geisoleerde dakplaten

Energie

Energielabel C
Einddatum 2035-10-10
Isolatie Dakisolatie, Muurisolatie, Vloerisolatie
Verwarming CV-ketel
Warm water CV-ketel
C.V.-ketel HR combiketel Nefit Gas gestookte combiketel uit 2021 eigendom

Garage

Garage soort Vrijstaand (steen)
Voorzieningen Elektra
Isolatie Geen isolatie
Oppervlakte 23 m² (7.83m diep en 2.92m breed)
Capaciteit 1 auto(s)
Aantal 1

Oppervlakken en inhoud

Perceeloppervlakte 15.000 m²
Woonoppervlakte 129 m²
Overige ruimten 66 m²
Inhoud 834 m³
Oppervlakte externe bergruimte 135 m²

Indeling

Woonlagen 2 woonlagen
Kamers 3 kamers, waarvan 2 slaapkamers
Badkamers 1 badkamer(s) en 1 aparte toilet(ten)
Badkamervoorzieningen Douche, Wastafel, Wastafelmeubel
Voorzieningen Zonnepanelen, Natuurlijke ventilatie

Buitenruimte

Ligging Aan rustige weg, Vrij uitzicht, Open ligging, Buiten bebouwde kom, Landelijk gelegen
Ligging Gelegen op (bereikbaar via achterom)
Parkeren Openbaar parkeren, Op eigen terrein
Parkeren Ruim voldoende parkeergelegenheid op eigen terrein.

Schuur / berging

Schuur / berging soort Aangebouwd (steen)
Voorzieningen Voorzien van elektra, Voorzien van water
Isolatie Geen isolatie
Aantal 1

Bestemming

Huidig gebruik Woonruimte
Huidige bestemming Woonruimte
Permanente bewoning Ja

Kadaster OLDEKERK D 2187

Oppervlakte 15.000 m²
Omvang Geheel perceel

Vergelijkbaar in de buurt

...