Menu
Zuiderkluft 2 Niekerk - Hoofdafbeelding.jpg
B

Tonen op kaart

Verkocht: Zuiderkluft 2, Niekerk

Niekerk Zuiderkluft 2

145 m² woonoppervlakte

703 m² perceeloppervlakte

5 kamers, waarvan 4 slaapkamers

Verkocht

Geïnteresseerd in dit object?

Vraag eenvoudig een bezichtiging aan!

Interesse in woning

Omschrijving

Vrijstaand, tuin rondom, veel privacy, levensloopbestendig, dit alles en meer vindt u op Zuiderkluft 2 te Niekerk (gemeente Westerkwartier). Deze goed onderhouden royale woning met 4 slaapkamers en een aangebouwde stenen garage is gelegen in een rustige woonwijk.

De woning is levensloopbestendig ingericht doormiddel van een slaapkamer met ruime badkamer gesitueerd op de begane grond. Deze kamer is ook geschikt om dienst te kunnen doen als praktijkruimte/werkkamer. De woning is zeer degelijk gebouwd in 1989 op één van de mooiste plekjes van Niekerk en staat op een perceel van 703 m².

Indeling
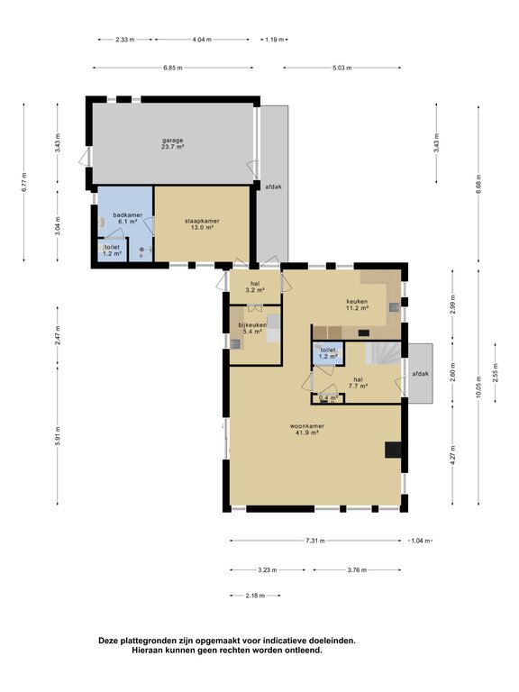
Begane grond:
Hal/entree; toiletruimte met staand toilet en fontein; eetkamer met schuifpui naar het royale terras en tuin en welke is verbonden aan de ruime, lichte woonkamer met houtkachel, die is voorzien van veel ramen waardoor er overal een verbinding is met de tuin. Ruime keuken met diverse inbouwapparatuur; 2e hal/entree met een toegang tot de bijkeuken. Hier staan alle witgoed apparaten en heeft een 2e keukenblok. Aansluitend aan deze 2e hal is de 1e slaapkamer van 13 m²; badkamer met separaat toilet, wastafel, wastafelmeubel en douche.

Eerste verdieping:
Overloop; 3 ruime slaapkamers met diverse inbouwkasten waarvan de grootste slaapkamer ca. 17 m²; de 2 andere slaapkamers zijn voorzien van een openslaande deur naar het balkon met vrij zicht op de landerijen. Toiletruimte met staand toilet; badkamer met wastafel, wastafelmeubel en lig/zitbad en douche. Leuk detail is het wastafelmeubel, waarin een stortkoker naar de bijkeuken voor het wasgoed.

Tweede verdieping:
Ruime zolder, te bereiken middels een vlizotrap.

Hoewel de woning is gesitueerd in een woonwijk, zorgt de tuin die rondom het geheel ligt voor veel rust en privacy.
De onder architectuur fraai aangelegde tuin rondom het huis bevat grote borders, gazon, diverse terrassen en een mooie vijver. Tussen deze oase van flora en fauna, bloemen en bomen is het heerlijk vertoeven. De zuidwest zijde van de woning heeft vrij uitzicht op de plaatselijke ijsbaan, met daarachter sportvelden, tennisbaan, sporthal en overdekt zwembad, alles op loopafstand.

Het energielabel B betreft een voorlopig energielabel. Het definitieve energielabel is in aanvraag en kan hiervan afwijken.

Niekerk is een saamhorig, gezellig en actief dorp met een rijk verenigingsleven en goede voorzieningen waaronder winkels, scholen, goede busverbindingen en eerder genoemde sportaccommodaties. Niekerk is gelegen op ca. 20 minuten van Groningen en Drachten.

Enthousiast geworden naar deze keurige vrijstaande woning? Neem dan snel contact met ons op voor een bezichtiging. Wij leiden u graag rond!

Kenmerken

Soort Eengezinswoning, Vrijstaande woning
Vraagprijs Prijs op aanvraag
Aangeboden 4 jaar geleden
Status Verkocht
Aanvaarding In overleg

Bekijk alle kenmerken...

Interesse?

Vraag een bezichtiging aan

Bekijk de omgeving

Ontdek de ligging van deze woning

Alle kenmerken

Bouw

Bouwvorm Bestaande bouw
Bouwjaar 1989
Bouwjaar omschrijving De woning is gebouwd in 1989.
Onderhoud (binnen) Goed
Toelichting Het onderhoud van binnen is goed.
Onderhoud (buiten) Goed
Toelichting Het onderhoud van buiten is goed.
Dak Samengesteld dak
Dak materialen Pannen, Bitumineuze dakbedekking
Dak toelichting Dit samengestelde dak bestaat uit pannen en een bitumineuze dakbedekking

Energie

Energielabel B
Einddatum 2031-06-16
Isolatie Dakisolatie, Muurisolatie, Dubbel glas
Verwarming CV-ketel
Warm water CV-ketel
C.V.-ketel Rehema Quinta Gas gestookte combiketel uit 2004 eigendom

Buitenruimte

Ligging Aan rustige weg, In woonwijk, Vrij uitzicht, Beschutte ligging
Tuin Tuin rondom (VERZORGD)
Tuin oppervlakte 570 m²
Ligging Gelegen op
Parkeren Openbaar parkeren, Op eigen terrein
Parkeren Er is voldoende parkeergelegenheid op eigen terrein als aan de straat

Garage

Garage soort Aangebouwd (steen)
Voorzieningen Elektra
Isolatie Geen isolatie
Oppervlakte 23 m² (6.85m diep en 3.43m breed)
Capaciteit 1 auto(s)
Aantal 1

Oppervlakken en inhoud

Perceeloppervlakte 703 m²
Woonoppervlakte 145 m²
Overige ruimten 23 m²
Inhoud 624 m³
Gebouwgebonden buitenruimte 15 m²

Indeling

Woonlagen 3 woonlagen
Kamers 5 kamers, waarvan 4 slaapkamers
Badkamers 2 badkamer(s) en 2 aparte toilet(ten)
Badkamervoorzieningen Ligbad, Zitbad, Wastafel, Wastafelmeubel, Toilet, Douche, Inloopdouche
Voorzieningen Alarminstallatie, TV-kabel, Buitenzonwering, Rookkanaal, Schuifpui, Dakraam, Natuurlijke ventilatie

Bestemming

Huidig gebruik Woonruimte
Huidige bestemming Woonruimte
Permanente bewoning Ja

Kadaster OLDEKERK B 2575

Oppervlakte 703 m²
Omvang Geheel perceel

Vergelijkbaar in de buurt

...