Menu
Zwitserlaan 32 Surhuisterveen - Hoofdafbeelding.jpg
B

Tonen op kaart

Brochure

Verkocht: Zwitserlaan 32, Surhuisterveen

Surhuisterveen Zwitserlaan 32

105 m² woonoppervlakte

342 m² perceeloppervlakte

4 kamers, waarvan 3 slaapkamers

Verkocht

Geïnteresseerd in dit object?

Vraag eenvoudig een bezichtiging aan!

Interesse in woning

Omschrijving

Wonen op een prachtige plek zonder directe overburen in Surhuisterveen? Zwitserlaan 32 in Surhuisterveen is een solide hoekwoning met eindeloos veel mogelijkheden. Gelegen tegenover een groene speelweide met een speeltuin en voetbalveldje, is dit de ideale plek voor jou en je gezin als je veel leefruimte en een kindvriendelijke omgeving zoekt. Let op, de woning is groter dan dat hij oogt; de 2e etage is namelijk door zijn inrichting nog niet meegenomen als woonoppervlakte!

Open Huis:
De woning wordt verkocht in opdracht van Stichting Woningbouw Achtkarspelen. Daarom is er een vaste notaris betrokken en wordt de woning openbaar aangeboden. Een snelle overdracht behoort tot de mogelijkheden, wat perfect is als je op korte termijn wilt verhuizen. De overdracht zal plaatsvinden bij Sekuer Notarissen in Surhuisterveen. Je bent van harte welkom om de woning te bezichtigen tijdens het open huis op donderdag 19 december 2024 van 15.00 tot 16.00 uur en op zaterdag 21 december 2024 tussen 12.00 en 13.00 uur.

Het ruime perceel van 342m² biedt een heerlijke achtertuin op het zuiden, waar je tot laat van de zon kunt genieten. Bovendien beschikt de woning over een vrijstaande houten garage, perfect voor opslag of hobby’s.

Wie deze woningen kent, weet dat ze opvallen door hun verrassend ruime opzet. Op de eerste verdieping vind je drie royale slaapkamers, en de tweede verdieping biedt nog volop mogelijkheden om extra (slaap)kamers te creëren. Dit huis biedt niet alleen ruimte voor je hele gezin, maar ook alle kansen om het helemaal naar je eigen wens te maken.

Indeling:
Begane grond:
Voorentree met hal; woonkamer met vaste kasten; woonkeuken met trapkast; de open keuken is voorzien van een inbouwkeuken in lichte kleurstelling; hal met achteringang; toilet met fonteintje.

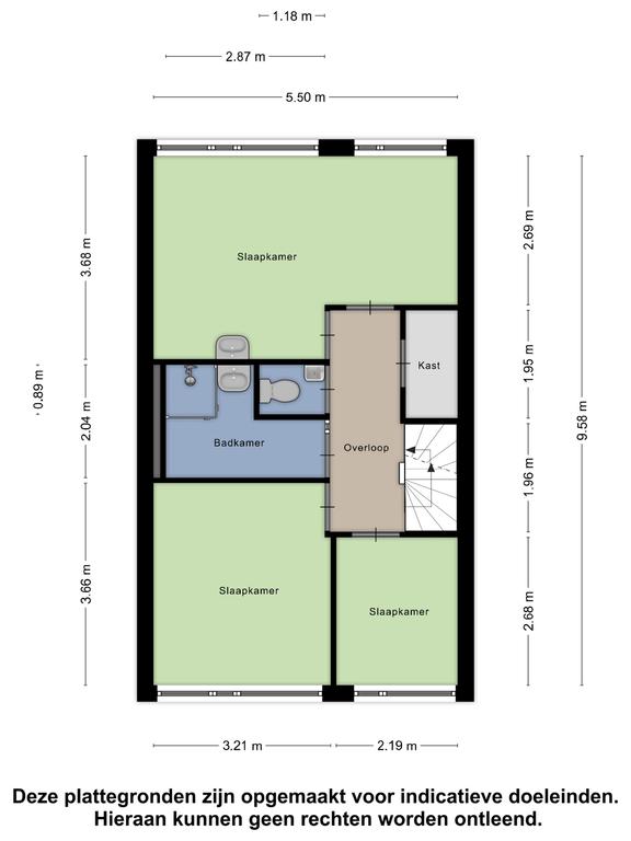
Eerste etage:
Overloop; inloopkast; 3 slaapkamers; toilet met fonteintje; badkamer met douche, wastafel en een aansluiting voor de wasmachine.

Tweede etage:
Vaste trap naar de tweede verdieping met c.v.-opstelling en een grote open ruimte met mogelijkheid voor extra slaapkamer(s).

Buiten:
In de groene en zonnige achtertuin vind je een vrijstaande houten garage, perfect voor opslag of als hobbyruimte. Het gazon is strak en uitnodigend, omringd door sierborders die de tuin een sfeervolle uitstraling geven. Daarnaast biedt de oprit de mogelijkheid om je auto op eigen erf te parkeren. Handig!

Aan de voorzijde geniet je van een vrij uitzicht over een speelveld, omgeven door veel groen. Ideaal voor kinderen om te spelen, of om zelf te genieten van het open gevoel en de natuurlijke omgeving.

Het dorp Surhuisterveen:
Surhuisterveen is een levendig dorp dat bekendstaat om zijn veelzijdige voorzieningen, waardoor het een aantrekkelijke woonplek is voor jong en oud. Het dorp herbergt een indrukwekkend scala aan winkels, met meer dan 100 variërende opties, van unieke lokale boetieks tot landelijk bekende winkelketens. Naast het winkelaanbod beschikt Surhuisterveen over een uitgebreid aanbod aan horecagelegenheden, diverse onderwijsinstellingen (inclusief basis- en voortgezet onderwijs), kerken, sportfaciliteiten, gezondheidszorgdiensten en gemeenschapsorganisaties voor senioren. De ligging van Surhuisterveen, direct aan de A7 tussen Groningen en Heerenveen, is eveneens gunstig te noemen.

Zelfbewoningsclausule:
Voor deze woning geldt een zelfbewoningsclausule. Dit betekent dat je verplicht bent de woning zelf te bewonen en deze niet mag verhuren. De woning wordt verkocht in opdracht van Stichting Woningbouw Achtkarspelen. Daarom is er een vaste notaris betrokken en wordt de woning openbaar aangeboden. Een snelle overdracht behoort tot de mogelijkheden, wat perfect is als je op korte termijn wilt verhuizen. De overdracht zal plaatsvinden bij Sekuer Notarissen in Surhuisterveen.

Zwitserlaan 32 in Surhuisterveen combineert een rustige en groene ligging met alle voorzieningen van Surhuisterveen op korte afstand. Kom zonder afspraak met onze flexibele makelaars kijken tijdens het open huis en laat je verrassen door wat deze woning te bieden heeft!

Kenmerken

Soort Eengezinswoning, Hoekwoning
Vraagprijs Prijs op aanvraag
Aangeboden 1 jaar geleden
Status Verkocht
Aanvaarding In overleg

Bekijk alle kenmerken...

Interesse?

Vraag een bezichtiging aan

Bekijk de omgeving

Ontdek de ligging van deze woning

Alle kenmerken

Bouw

Bouwvorm Bestaande bouw
Bouwjaar 1972
Bouwjaar omschrijving Gebouwd in 1972
Onderhoud (binnen) Redelijk tot goed
Toelichting Redelijk tot goede staat van onderhoud
Onderhoud (buiten) Redelijk tot goed
Toelichting Redelijk tot goede staat van onderhoud
Dak Zadeldak
Dak materialen Pannen
Dak toelichting Zadeldak gedekt met pannen

Buitenruimte

Ligging In woonwijk
Tuin Achtertuin (NORMAAL)
Tuin oppervlakte 250 m²
Achtertuin 154 m² (14m diep en 11m breed)
Ligging Gelegen op ZUID (bereikbaar via achterom)
Parkeren Openbaar parkeren, Op eigen terrein
Parkeren Er is voldoende parkeergelegenheid op het eigen terrein en in de straat

Energie

Energielabel B
Einddatum 2034-10-31
Isolatie Dakisolatie, Muurisolatie, Dubbel glas, HR-glas
Verwarming CV-ketel
Warm water CV-ketel
C.V.-ketel Intergas c.v. combi ketel Gas gestookte combiketel uit 2014 eigendom

Garage

Garage soort Vrijstaand (hout)
Voorzieningen Elektra
Isolatie Geen isolatie
Oppervlakte 18 m²
Capaciteit 1 auto(s)
Aantal 1

Oppervlakken en inhoud

Perceeloppervlakte 342 m²
Woonoppervlakte 105 m²
Overige ruimten 26 m²
Inhoud 468 m³
Oppervlakte externe bergruimte 18 m²

Indeling

Woonlagen 3 woonlagen
Kamers 4 kamers, waarvan 3 slaapkamers
Badkamers 1 badkamer(s) en 2 aparte toilet(ten)
Badkamervoorzieningen Douche, Wastafel, Wasmachineaansluiting
Voorzieningen TV-kabel, Dakraam, Natuurlijke ventilatie

Schuur / berging

Schuur / berging soort Vrijstaand (steen)
Voorzieningen Voorzien van elektra
Isolatie Geen isolatie
Aantal 1

Bestemming

Huidig gebruik Woonruimte
Huidige bestemming Woonruimte
Permanente bewoning Ja

Kadaster SURHUIZUM B 8199

Oppervlakte 342 m²
Omvang Geheel perceel

Vergelijkbaar in de buurt

...