Menu
Zwitserlaan 47 Surhuisterveen - Hoofdafbeelding.jpg
C

Tonen op kaart

Verkocht: Zwitserlaan 47, Surhuisterveen

Surhuisterveen Zwitserlaan 47

103 m² woonoppervlakte

171 m² perceeloppervlakte

5 kamers, waarvan 4 slaapkamers

Verkocht

Geïnteresseerd in dit object?

Vraag eenvoudig een bezichtiging aan!

Interesse in woning

Omschrijving

Wat een ruimte met deze 4 slaapkamers en stenen berging. Dichtbij de vele voorzieningen die Surhuisterveen te bieden heeft, zoals het bruisende winkelcentrum, de scholen en de vele sportaccommodaties.

De goed onderhouden tussenwoning staat op een eigen kavel van ca. 171m². De woning wordt verwarmd door middel van radiatoren met behulp van een Atag P25C combiketel uit 2021. Deels is de woning voorzien van isolatieglas.

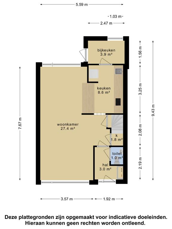
Indeling:
Voorentree, hal met plavuizenvloer, toilet met fonteintje, vaste kast, opgang naar de eerste etage, doorzon woonkamer met een vrij uitzicht over de straat, aan de voorzijde een elektrisch te bedienen zonnescherm en laminaatvloer, halfopen keuken met bargedeelte naar de woonkamer, plavuizenvloer en moderne inbouwkeuken (2013) voorzien van inbouwapparatuur (oven, gaskookplaat, afzuigkap, vaatwasser en spoelbak), houten aanbouw aan de achterzijde met achter entree.

Eerste etage :
Overloop, drie slaapkamers waarvan één met een vaste wastafel, gemoderniseerde badkamer met douchecabine, toilet en meubel met wastafel.

Tweede etage:
Vaste trap naar 2e verdieping met overloop, bergruimte met c.v. opstelling en een royale 4e slaapkamer met dakraam.

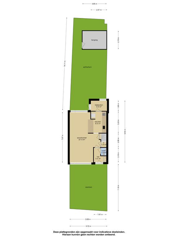
Verzorgde voor- en achtertuin, de achtertuin biedt veel privacy en is voorzien van terras en borders. Tevens voorzien van een stenen berging en een achterom via een brede steeg (achterom). Er is voldoende parkeergelegenheid in de straat en op korte afstand ligt een speelweide.

Surhuisterveen; het ondernemende Surhuisterveen is het regiodorp van de omgeving met o.a. meer dan 100 winkels, 4 supermarkten, een groot zwembad, vele horecagelegenheden, musea, een bibliotheek, basisscholen en voortgezet onderwijs.

Het dorp Surhuisterveen is zeer goed bereikbaar aan de A7 en heeft goede openbaarvervoersvoorzieningen. Een uitstekend vestigingsklimaat dus!

Is uw interesse voor deze royale en prachtig gelegen tussenwoning aan de Zwitserlaan 47 te Surhuisterveen gewekt, of heeft u aanvullende vragen? Onze flexibele makelaars helpen u graag verder en verwelkomen u graag bij dit zeer complete geheel in Surhuisterveen!

Kenmerken

Soort Eengezinswoning, Tussenwoning
Vraagprijs Prijs op aanvraag
Aangeboden 3 jaar geleden
Status Verkocht
Aanvaarding In overleg

Bekijk alle kenmerken...

Interesse?

Vraag een bezichtiging aan

Bekijk de omgeving

Ontdek de ligging van deze woning

Alle kenmerken

Bouw

Bouwvorm Bestaande bouw
Bouwjaar 1972
Onderhoud (binnen) Goed
Onderhoud (buiten) Goed
Dak Samengesteld dak
Dak materialen Pannen, Bitumineuze dakbedekking
Dak toelichting dwarskap, plat dak

Energie

Energielabel C
Energieindex 1.77
Einddatum 2025-09-18
Isolatie Dakisolatie, Muurisolatie, Dubbel glas, Gedeeltelijk dubbel glas
Verwarming CV-ketel
Warm water CV-ketel
C.V.-ketel Atag P25C Gas gestookte combiketel uit 2021 eigendom

Buitenruimte

Ligging Aan rustige weg, In woonwijk, Vrij uitzicht
Tuin Achtertuin, Voortuin (NORMAAL)
Tuin oppervlakte 120 m²
Achtertuin 79 m² (14.11m diep en 5.59m breed)
Ligging Gelegen op NOORDOOST (bereikbaar via achterom)
Parkeren Openbaar parkeren
Parkeren Ruim voldoende parkeergelegenheid

Oppervlakken en inhoud

Perceeloppervlakte 171 m²
Woonoppervlakte 103 m²
Overige ruimten 7 m²
Inhoud 375 m³
Oppervlakte externe bergruimte 10 m²

Indeling

Woonlagen 3 woonlagen
Kamers 5 kamers, waarvan 4 slaapkamers
Badkamers 1 badkamer(s) en 1 aparte toilet(ten)
Badkamervoorzieningen Toilet, Douche, Wastafel, Wastafelmeubel
Voorzieningen TV-kabel, Buitenzonwering

Schuur / berging

Schuur / berging soort Vrijstaand (steen)
Voorzieningen Voorzien van elektra
Isolatie Geen isolatie
Aantal 1

Bestemming

Huidig gebruik Woonruimte
Huidige bestemming Woonruimte
Permanente bewoning Ja

Kadaster SURHUIZUM B 7159

Oppervlakte 171 m²
Omvang Geheel perceel

Garage

Garage soort Geen garage

Vergelijkbaar in de buurt

...