Menu
Gorredijksterweg 61 Jubbega - Hoofdafbeelding.jpg
F

Tonen op kaart

Brochure

Verkocht: Gorredijksterweg 61, Jubbega

Jubbega Gorredijksterweg 61

158 m² woonoppervlakte

322 m² perceeloppervlakte

6 kamers, waarvan 3 slaapkamers

Verkocht

Geïnteresseerd in dit object?

Vraag eenvoudig een bezichtiging aan!

Interesse in woning

Omschrijving

Aan de rand van Jubbega en nabij Gorredijk vindt u deze karakteristieke gemoderniseerde en vrijstaande woning op een perceel van 322 m² eigen grond.

Het woonhuis gebouwd in 1935 was vroeger een belangrijke ontmoetingsplaats in het dorp en van oorsprong een woonhuis met verlof (dorpscafe). De voorgaande eigenaren hebben de woning geheel gerenoveerd en gemoderniseerd. Een aantal blikvangers zijn in ere hersteld: de aanwezigheid van onder andere hoge ramen met brede vensterbanken, het balkenplafond in het woongedeelte, de lambrisering rondom de binnenmuren op de begane grond, de kozijnen met sierlijsten, de cementtegels in de hal, de trap met spijlen naar de eerste verdieping en de paneeldeuren. Het is voorzien van dubbele beglazing. Het geheel wordt verwarmd door een HR combiketel van Intergas uit 2012. In 2019 is het voorzien van nieuw schilderwerk.

INDELING
Begane grond: Bij binnenkomst proef je gelijk de gezellige en warme sfeer die je door de gehele woning voelt. In de hal komt dit door de aanwezigheid van karakteristieke details van o.a. de cementtegels op de vloer en de lambrisering. Daarnaast vind je in de hal de meterkast, de kruipruimte, het toilet en toegang tot de royale woonkeuken en de garage.
Een echte eyecatcher in de woonkeuken is de hand gemaakte keuken met kookeiland op maat. De Jatoba hardhouten vloer die zowel in de woonkeuken als woonkamer ligt, geeft een warme en duurzame uitstraling. Evenzo is het heerlijk vertoeven bij de sfeervolle houtkachel. Aan de voorzijde zijn shutters geplaatst waardoor je mooi kunt spelen met de lichtinval en privacy. Aan de achterzijde is de knusse woonkamer aanwezig die voorzien is van erker met veel raamwerk waardoor er veel licht de ruimte binnenkomt en een terrasdeur met toegang naar de achtertuin. Vanuit de woonkeuken kom je in de bijkeuken met de kelder, ruimte voor de witgoedaansluitingen, een grote inbouwkast, trap naar eerste verdieping en buitendeur naar achtertuin.

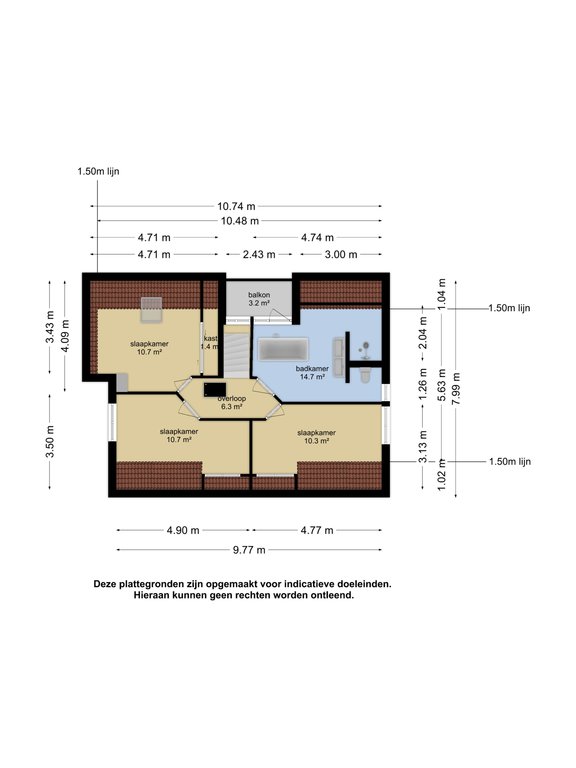
Eerste verdieping: Overloop met aansluitend 3 gezellige ingerichte slaapkamers met op de kinderkamer sfeervolle luiken aan de binnenkant van de ramen als raambekleding en op de masterbedroom een royale inbouwkast met schuifdeuren. De badkamer is voorzien van een ligbad met whirlpool, luxe dubbele wastafel, een handdoekenradiator, mechanische ventilatie. Het hangend toilet en de ruime douchegelegenheid met regendouche zijn geplaatst achter een muurtje. Daarnaast heb je vanuit de badkamer toegang tot het balkon.

Tweede verdieping: Ruime bergzolder met cv-opstelling te bereiken via een vlizotrap.

Tuin: De achtertuin biedt veel privacy en is keurig en onderhoudsarm aangelegd. Door de aanwezigheid van verschillende terrassen en de tuin gericht op het zuidwesten kun je de gehele dag volop genieten van de zon. Eén van de zitjes met verhoogd terras, een houtkachel en een buitenkeuken in aanbouw is in de veranda die aangebouwd is aan de garage. De garage biedt onderdak voor 1 auto en ook de oprit heeft parkeergelegenheid voor 1 auto. Daarnaast is op de garagezolder opbergruimte gecreëerd.

Is uw interesse voor deze karakteristieke woning gewekt? Maak dan een afspraak voor een bezichtiging om uw indruk compleet te maken. Wij heten u alvast van harte welkom aan de Gorredijksterweg 61 te Jubbega.

Kenmerken

Soort Eengezinswoning, Vrijstaande woning
Vraagprijs Prijs op aanvraag
Aangeboden 6 jaar geleden
Status Verkocht
Aanvaarding In overleg

Bekijk alle kenmerken...

Interesse?

Vraag een bezichtiging aan

Bekijk de omgeving

Ontdek de ligging van deze woning

Alle kenmerken

Bouw

Bouwvorm Bestaande bouw
Bouwjaar 1935
Onderhoud (binnen) Goed
Onderhoud (buiten) Goed
Dak Samengesteld dak
Dak materialen Pannen

Energie

Energielabel F
Einddatum 2028-11-27
Isolatie Vloerisolatie, Dubbel glas
Verwarming CV-ketel
Warm water CV-ketel
C.V.-ketel Intergas HR Gas gestookte combiketel uit 2012 eigendom

Oppervlakken en inhoud

Perceeloppervlakte 322 m²
Woonoppervlakte 158 m²
Overige ruimten 23 m²
Inhoud 558 m³
Oppervlakte externe bergruimte 33 m²
Gebouwgebonden buitenruimte 11 m²

Garage

Garage soort Aangebouwd (steen)
Voorzieningen Elektra, Vliering
Isolatie Geen isolatie
Oppervlakte 33 m² (8.46m diep en 3.92m breed)
Capaciteit 1 auto(s)
Aantal 1

Indeling

Woonlagen 4 woonlagen
Kamers 6 kamers, waarvan 3 slaapkamers
Badkamers 1 badkamer(s) en 1 aparte toilet(ten)
Badkamervoorzieningen Ligbad, Toilet, Douche, Dubbele wastafel
Voorzieningen Mechanische ventilatie, TV-kabel, Rookkanaal

Buitenruimte

Ligging Aan drukke weg, Beschutte ligging, Buiten bebouwde kom
Achtertuin 175 m² (10.35m diep en 16.95m breed)
Ligging Gelegen op ZUIDWEST (bereikbaar via achterom)
Parkeren Openbaar parkeren, Op eigen terrein

Bestemming

Huidig gebruik Woonruimte
Huidige bestemming Woonruimte
Permanente bewoning Ja

Kadaster MILDAM J 1095

Oppervlakte 322 m²
Omvang Geheel perceel

Vergelijkbaar in de buurt

...